Sustainable Family Home Design: A Deep Dive into Cascade House by John Ellway Architect
Exploring Cascade House's blend of sustainable architecture and family-friendly design in Paddington, Australia, by John Ellway Architect.
In the heart of Paddington, Australia, sits Cascade House, a testament to the possibilities of sustainable family home design. Crafted by John Ellway Architect, this early 1900s timber cottage has been transformed into a modern, eco-friendly space without losing its historical charm. This article explores how Cascade House stands as a model for families seeking a balance between contemporary living and environmental consciousness.


Embracing the Site's Natural Topography
The Challenge of Sloping Sites
One of the most distinctive features of Cascade House is its location on a sloping site. This geographical challenge became the cornerstone of the design, leading to innovative solutions for connecting the home to its natural surroundings. The architects employed a series of split levels to navigate the four-meter level change across the site, allowing for spaces where family members can pause and connect with nature.




Outdoor Living Spaces
Central to the ethos of sustainable family home design is the connection to the outdoors. Cascade House features a grassy courtyard and garden designed to serve as an extension of the living space. Screened doors slide away, merging indoor and outdoor areas and facilitating a lifestyle that is in tune with the natural rhythm of the day and seasons.


Sustainability Features
Solar Panels and Energy Efficiency
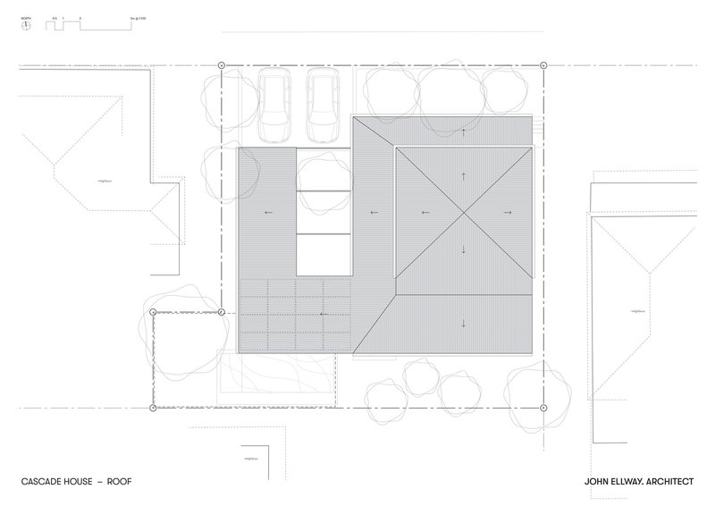
A pivotal aspect of the project was the incorporation of solar panels on the roof. This not only provides the household with a renewable energy source but also protects the living spaces from the harsh afternoon sun. The use of solar energy underscores the commitment to reducing the environmental footprint of the home.


Material Conservation
In rebuilding the rear 'lean-to', the architects decided to retain the hardwood fabric that was still in good condition. This decision reflects a broader commitment to material conservation and waste reduction. By repurposing existing materials and choosing sustainable new materials, the project minimizes its environmental impact.


Interior Design and Spatial Efficiency
The Heart of the Home
At the core of Cascade House is the lounge, designed as the new center of family life. The use of built-in seating and strategic spatial planning allows for a reduction in the building's footprint. This design philosophy asks, "What is the minimum dimension a room can be?" thereby reducing material use and maximizing the connection to the landscape beyond.



Kitchen and Dining
The kitchen and dining area epitomize the home's ethos of sustainability and family-centric design. Positioned to overlook the pool and with direct access to the courtyard, these spaces facilitate supervision and social connection, blending functionality with the joy of communal meals.

A Blueprint for Sustainable Family Living
Cascade House by John Ellway Architect represents a harmonious blend of heritage preservation, environmental sustainability, and family-friendly design. By embracing the site's natural topography, incorporating energy-efficient solutions, and fostering a strong connection to outdoor spaces, this project serves as a beacon for sustainable family home design. For families looking to navigate the challenges of modern living while committing to an eco-friendly lifestyle, Cascade House offers inspiration and a tangible blueprint for what is possible.


All photographs are work of Toby Scott
Popular Articles
Popular articles from the community
Gads Hill Early Learning Center by JGMA: Adaptive Reuse Shaping Community-Focused Educational Architecture
Adaptive reuse transforms fragmented structure into vibrant early learning center with playful façade, natural light, and community-focused sustainable design.
On the Brooks House by Monsoon Collective – A Contemporary Kerala Home Rooted in Tradition
Kerala home blending tradition and modernity with water-inspired design, brick architecture, courtyard planning, and sustainable rainwater harvesting strategies.
Louis Malle Cinema: A Limestone Cultural Landmark Revitalizing Community Life in Prayssac
Limestone cinema extension with public forecourt, blending heritage and modern design to create flexible cultural spaces and strengthen community interaction.
Solar Steam: A Climate-Responsive Architecture That Redefines the Monument
A climate-responsive memorial architecture that transforms heat, decay, and time into a living system reflecting humanity’s ecological impact.
Similar Reads
You might also enjoy these articles
The Ken Roberts Memorial Delineation Competition (Krob)
As the most senior architectural drawing competition currently in operation anywhere in the world, it draws hundreds of entries each year, awarding the very best submissions in a series of medium-based categories.
Waterfront Redevelopment and Urban Revitalization in Mumbai: Forging a New Dawn for Darukhana
A transformative waterfront redevelopment project reimagining Darukhana’s shipbreaking heritage into an inclusive urban future.
OUT-OF-MAP: A Call for Postcards on Feminist Narratives of Public Space
Rhizoma Design and Research Lab invites artists, designers, architects, researchers, and students to reflect on how feminist perspectives can reshape public space. Selected works will be exhibited in Barcelona, October 2026. Submissions open until 15 April 2026.
Documentation Work on Buddhist Wooden Temple
Architectural syncretism and cultural hybridity: A comparative study of the Buddhist temples in Chattogram Hill tracks
Explore Architecture Competitions
Discover active competitions in this discipline
The International Standard for Design Portfolios
The Global Benchmark for Architecture Dissertation Awards
The Global Benchmark for Graduation Excellence
Challenge to design mud housing for contemporary communities
Comments (0)
Please login or sign up to add comments
No comments yet. Be the first to comment!