Sustainable Home Design in Chile: Las Vertientes House by Lucas Maino Fernandez
An exploration of Las Vertientes House by Lucas Maino Fernandez, highlighting its sustainable design, innovative layout, and integration with nature.
Las Vertientes House, designed by Lucas Maino Fernandez, is a remarkable example of sustainable home design in Chile. Nestled in the sector of 'Las Vertientes' in the commune of Rocas de Santo Domingo, this innovative residential project offers a harmonious blend of contemporary aesthetics and environmental consciousness.


Location and Context
Located in the Fifth Region of Chile, Las Vertientes House is set at the back of a plot, away from the coast and surrounded by eucalyptus trees on its southern boundary. This strategic positioning not only provides privacy but also leverages the natural landscape to enhance the home's sustainability.


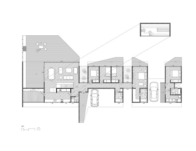
Architectural Concept
Long-Term Family Living
The house is designed to serve as a long-term residence for a family, with careful consideration of how spaces will be used in the future. The architectural concept revolves around the idea of separating and fragmenting spaces into different units, connected through intermediate courtyards. This approach allows for flexibility and adaptability as the family's needs evolve over time.



Design and Layout
Common and Private Spaces
The layout of Las Vertientes House is thoughtfully organized into distinct zones. Common areas, including the kitchen, dining room, and living room, are placed centrally. This central block is followed by children's and guest bedrooms, and finally, the master bedroom. An additional guest apartment completes the overall volume, ensuring ample space for visitors.


Integrated Workspace
A notable feature of the house is the integrated office space, located within the block of common areas but separated in a loft accessed by a sculptural staircase. The roof rises at this point, with an inclination that contrasts with the rest of the volume, optimizing indirect light for the office.



Sustainable Design Elements
Material Choices
The exterior facades of Las Vertientes House utilize a combination of black micro-corrugated zinc and impregnated pine with a natural finish. This material interplay not only enhances the visual appeal but also contributes to the building's sustainability. The use of diagonals and geometries in the cladding creates a dynamic aesthetic while ensuring better contact with the ground, enhancing stability and integration with the landscape.


Orientation and Natural Light
All main rooms are oriented to the north, establishing a direct connection between the interior spaces and the garden. This orientation maximizes natural light, reducing the need for artificial lighting and improving energy efficiency. Wet rooms, such as bathrooms and the kitchen, are strategically placed on the south side, optimizing the overall thermal performance of the house.
Las Vertientes House by Lucas Maino Fernandez is a testament to sustainable home design in Chile. Through its innovative layout, thoughtful use of materials, and strategic orientation, the house offers a model for environmentally conscious living. It showcases how contemporary architecture can harmoniously integrate with nature, providing a functional and aesthetically pleasing home for modern families.
By focusing on sustainable home design principles and leveraging the unique aspects of its location, Las Vertientes House stands out as a premier example of sustainable residential architecture in Chile.



All the photographs are work of MArcos Zegers
Popular Articles
Popular articles from the community
Magic Box Office Barcelona Innovative Sustainable Workplace Design
Innovative sustainable office design featuring triangular form, ceramic façade, flexible interiors, natural light optimization, and creative workspace for modern work culture.
Alton Cliff House: A Harmonious Retreat by f2a Architecture in Lake Country, Canada
Alton Cliff House blends corten steel, prefabrication, and sustainable design, creating a luxurious, energy-efficient retreat perched on Canadian cliffs.
TGK Nirasaki Plant: A Smart Factory Blending Technology, Landscape, and Wellness
Smart factory in Japan blending IoT manufacturing, scenic trail design, natural ventilation, and landscape integration to enhance user experience and sustainability.
Similar Reads
You might also enjoy these articles
Filtering Space: A Gradual Spatial Experience
From urban intensity to spatial calm.
The Ken Roberts Memorial Delineation Competition (Krob)
As the most senior architectural drawing competition currently in operation anywhere in the world, it draws hundreds of entries each year, awarding the very best submissions in a series of medium-based categories.
Waterfront Redevelopment and Urban Revitalization in Mumbai: Forging a New Dawn for Darukhana
A transformative waterfront redevelopment project reimagining Darukhana’s shipbreaking heritage into an inclusive urban future.
OUT-OF-MAP: A Call for Postcards on Feminist Narratives of Public Space
Rhizoma Design and Research Lab invites artists, designers, architects, researchers, and students to reflect on how feminist perspectives can reshape public space. Selected works will be exhibited in Barcelona, October 2026. Submissions open until 15 April 2026.
Explore Architecture Competitions
Discover active competitions in this discipline
The International Standard for Design Portfolios
The Global Benchmark for Architecture Dissertation Awards
The Global Benchmark for Graduation Excellence
Challenge to reimagine the Iron Throne
Comments (0)
Please login or sign up to add comments
No comments yet. Be the first to comment!