Sustainable Home Renovation in Ghent: House BRUS by Luchtschip Architectuur
This article explores House BRUS, a vibrant and sustainable home renovation in Ghent, designed by its architect-owners with bold creativity.
Reimagining a 1938 Townhouse for Modern Sustainable Living
House BRUS is a standout example of sustainable home renovation in Ghent, Belgium, crafted by architects Ruben Rottiers and Emily Pescod of Luchtschip Architectuur. Situated in a quiet neighborhood near the city center, the 130-square-meter residence was transformed from a dated interwar house into a vibrant, sustainable home. While retaining the authentic 1938 façade, the architects implemented a thoughtful design that prioritizes ecological responsibility, spatial fluidity, and expressive materiality.



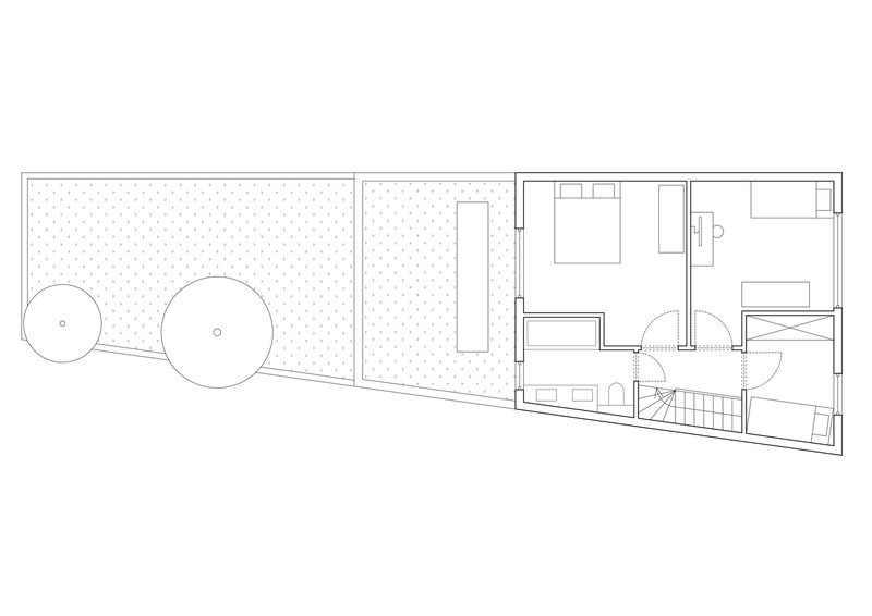
Inverting the Traditional Floor Plan for Natural Light and Connection
The original layout followed a conventional setup with a rear kitchen extension and a front-facing living area. This arrangement was reversed, placing the kitchen at the front under the street-facing window, and relocating the living space to the back, seamlessly connecting it to the south-facing garden. This reconfiguration not only improved the natural lighting and spatial flow but also allowed the garden to become an extension of the living space, enhancing the indoor-outdoor relationship that defines contemporary residential design.


Timber Expansion and Exposed Structural Elements
The outdated extension at the rear was removed and replaced with a new timber-framed volume. The Oregon ceiling beams and the structural timber framework were left exposed, celebrating the material honesty of the renovation. A striking feature is the rear façade, designed as a fully glazed wooden curtain wall that draws natural light deep into the interior. This architectural move emphasizes transparency, warmth, and the blend between nature and domestic space.


Bold Use of Color as an Architectural Statement
House BRUS is marked by a daring and joyful use of color. The interior is punctuated with a red gypsum granulate cast floor, a blue kitchen, a yellow tiled wall, and green joinery. The ceiling in the living space was painted dark blue, while the surrounding walls were finished in hues of yellow and green. These vibrant accents add depth and character, creating a dynamic atmosphere that reflects the personality of its architect-residents. Color becomes not just decoration, but an integral layer of the design narrative.



Embracing the Past Through Contemporary Craft
Though many features of the original house had lost their value over time, the architects made a conscious decision to preserve and reinterpret elements from the home's interwar origins. The ceiling moldings, rounded arches, and traditional wainscoting were reimagined in a contemporary manner, bridging the historical and modern. This careful integration of old and new adds a timeless quality to the renovation, respecting the building’s history while projecting it forward.


A Model for Budget-Friendly Sustainable Architecture
Despite a limited budget, House BRUS exemplifies how intelligent choices can lead to high-quality, sustainable results. The renovation emphasized preservation over demolition. The original staircase, intermediate wooden floors, and structural walls were maintained wherever feasible. The selective demolition process ensured minimal waste, and the reuse of existing components contributed to the project’s sustainable ethos.

Advanced insulation was installed throughout the building envelope, and all exterior joinery was replaced with energy-efficient alternatives. The house incorporates alternative heating methods and features an intensive green roof that enhances insulation and supports urban biodiversity. These measures not only reduce the home's environmental footprint but also provide long-term energy savings.

Future-Ready and Adaptable Design
The home is designed with the potential for vertical expansion. An additional floor can be added in the future, aligning with the neighboring facades. This forward-thinking approach ensures that the house remains adaptable to the evolving needs of its occupants without compromising its architectural integrity.



A Personal, Hands-On Architectural Endeavor
House BRUS is also a personal project, reflecting the lived experience of its creators. By handling much of the work themselves, Rottiers and Pescod not only reduced construction costs but also imbued the home with a handcrafted quality that resonates throughout the space. The renovation stands as a heartfelt, practical, and inspiring model of what’s possible when architects design for themselves with care, purpose, and vision.

All photographs are works of Johnny Umans
Popular Articles
Popular articles from the community
TGK Nirasaki Plant: A Smart Factory Blending Technology, Landscape, and Wellness
Smart factory in Japan blending IoT manufacturing, scenic trail design, natural ventilation, and landscape integration to enhance user experience and sustainability.
Magic Box Office Barcelona Innovative Sustainable Workplace Design
Innovative sustainable office design featuring triangular form, ceramic façade, flexible interiors, natural light optimization, and creative workspace for modern work culture.
20 Most Popular Commercial Architecture Projects of 2025
From sustainable market concepts to heritage factories, the commercial buildings and proposals that drew the most attention on uni.xyz this year.
Split House: A Compact Urban Home Blending Privacy, Light, and Flexible Living in Japan
Compact Japanese home featuring DOMA space, flexible café potential, passive lighting, privacy zoning, and sustainable urban living design.
Similar Reads
You might also enjoy these articles
Bamboo Housing Challenge 2026: Design Affordable, Sustainable Homes Using Bamboo
An international design competition by Bamboo U and IBUKU inviting architects and designers to reimagine affordable housing using bamboo — with the winning design built full-scale in Bali.
Computational Design & Education: Beegraphy Design Awards Introduces 7th Category (Featuring Jiyun's Innovative Approach)
Dive into Beegraphy’s 7th Design Awards category, where computational design meets education to create immersive, interactive learning tools, inspired by Jiyun’s work.
From Parametric Lighting to Urban Furniture: Join the 2nd Workshop in Beegraphy’s Computational Design Series
Dive into Cutting-Edge Design Techniques and Practical Applications with Industry Experts
Explore Architecture Competitions
Discover active competitions in this discipline
The International Standard for Design Portfolios
The Global Benchmark for Architecture Dissertation Awards
The Global Benchmark for Graduation Excellence
Challenge to reimagine the Iron Throne
Comments (0)
Please login or sign up to add comments
No comments yet. Be the first to comment!