Studio 163 Architects Turns a Dark London Flat into a Clay-Clad Garden Home
A ground-floor flat in Kentish Town sheds its damp, cramped layout for breathable materials and a courtyard that pulls light deep into the plan.
Ground-floor flats in London terraces are a particular kind of architectural puzzle. They tend to be dark, prone to damp, hemmed in by party walls and the weight of the building above, and often laid out in ways that made sense a century ago but feel punishing now. Clay House, completed in 2024 by Studio 163 Architects, sits on Falkland Road in Kentish Town and suffered from all of these conditions. The original one-bedroom unit placed its living space at the street side and forced residents to walk through the bedroom to reach a garden they could barely connect with. Mold crept through walls, the bathroom lacked natural ventilation, and the whole rear portion of the flat felt like it was slowly being reclaimed by moisture.
What makes the project worth studying is not the scale of the intervention, which is modest, but the precision of the thinking behind it. Studio 163 flipped the entire internal arrangement, pushed a side extension into the footprint to unlock an open-plan rear, and used a vocabulary of clay plaster, oak joinery, and microcement to create a home that breathes. The result is a two-bedroom flat that feels substantially larger and calmer than its predecessor, with a courtyard garden that does real work pulling daylight into the heart of the plan. In a conservation area with tight planning restrictions, the architects found room for ambition without overreach.
Flipping the Plan



The single most consequential decision here was reversing the layout. Where the original flat placed its living room at the front, facing the street, Studio 163 relocated it to the rear, facing the garden. Bedrooms now occupy the front of the plan, closer to the quieter conditions that sleeping actually requires. The move sounds obvious on paper, but it required significant steelwork to support the flats above while creating the open spans needed at the back. That steel was threaded within the existing ceiling level to avoid drop-down bulkheads, keeping the ceiling plane clean and continuous.
At the center of the plan, a microcement wetroom and a separate WC sit as two freestanding pods flanking the main circulation route. Separating the bathroom from the WC is a small luxury in a flat this size, and it means neither space blocks light or movement through the core. Pocket doors are used throughout, a detail that matters enormously in compact London flats where every swing arc of a hinged door eats into usable floor area.
Clay, Brick, and the Logic of Breathability



The project takes its name from the Clayworks clay plaster used on the exterior of the new extension. Against the existing London stock brick, the pale rendered surface reads as a deliberate contrast, contemporary but not aggressive. Three piers and a horizontal band above the ground-floor openings are picked out in different tones, quietly marking the boundary between the new work and the upper flat. It is the kind of detail that registers subconsciously rather than announcing itself.
Beyond aesthetics, clay plaster is doing real environmental work here. The material is naturally porous, regulating humidity and improving the breathability of a building skin that was trapping moisture before the renovation. The entire flat was internally insulated to modern standards, the extension was tanked to prevent rising damp, and underfloor heating was installed in the new extension and bathrooms. None of this is flashy, but it addresses the actual pathology of the original flat: a building that was slowly making itself sick.
A Courtyard That Earns Its Keep


The gravel courtyard is not ornamental. It is an environmental device. Positioned between the extension and the garden boundary, it pulls daylight deep into the plan through a large pivot door and a sawtooth rooflight that washes the dining area with diffused light from above. The courtyard also creates a buffer zone that softens the transition between interior and exterior, a welcome compression before the release of the garden itself.
Studio 163 handled the landscape design in-house, dividing the garden into distinct zones with layered plantings that frame views from the kitchen and dining area. Gravel paths and clay-plastered planters carry the material language of the architecture outward, giving the whole composition a quiet coherence. The references to zen gardens are present but restrained. There is no koi pond. Just careful attention to what you see when you look up from the table.
Timber Joinery as Infrastructure


The bespoke oak joinery wall that runs along one side of the living and dining area is doing more than providing shelves. It conceals the boiler, hides utility infrastructure, and creates a continuous surface that unifies the room. The warm tone of the oak establishes a visual link to the garden beyond and provides a material counterpoint to the cooler microcement and clay plaster elsewhere. A central recess accommodates a screen, set into the wall so it reads as a void in the timber rather than an appliance bolted to it.
Exposed ceiling rafters above the dining table reinforce the sense that this is an honest interior, one where structure is allowed to show. The palette of timber, soft sage greens, and off-white tones avoids the all-white minimalism that has become the default for London renovations. It feels warmer and more specific, with color choices that relate to the planting visible through the doors.
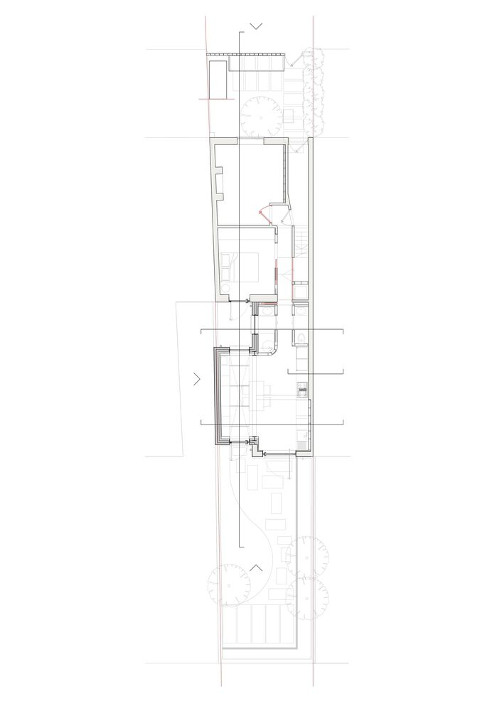
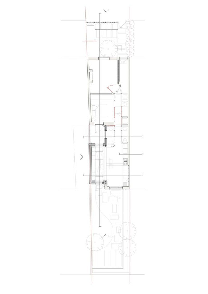
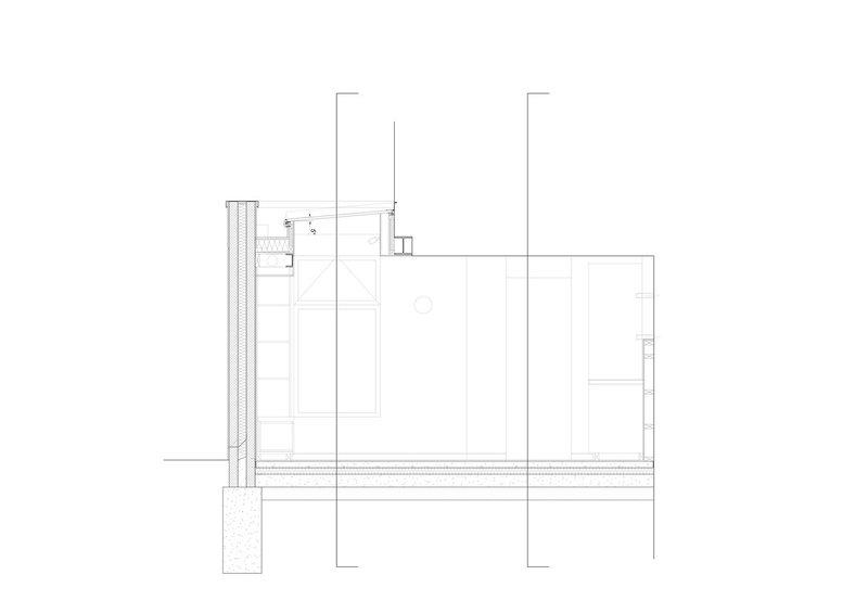
Plans and Drawings






The floor plan reveals the narrow, linear logic of the layout: rooms stacked in sequence along the party wall, with the courtyard acting as a hinge between the domestic interior and the garden. The section drawing shows how the new extension tucks below the existing building, its chamfered roofline creating space for the sawtooth light that illuminates the dining area. The detail section is particularly instructive, showing how the timber-lined external structure meets the interior joinery in a precise, layered connection. The elevation drawing documents the careful relationship between the brick facade above and the new timber-framed ground floor below, a conversation between eras that the project handles with tact.
Why This Project Matters
Clay House is not a showcase project. It will not appear on shortlists for its formal daring or its photogenic spectacle. What it demonstrates, more usefully, is that the unglamorous work of upgrading London's existing housing stock can be done with genuine architectural intelligence. The problems it solves, damp, poor ventilation, disconnection from outdoor space, cramped layouts, are endemic across the city's ground-floor flats. The tools it deploys, breathable materials, plan inversion, courtyard light, bespoke joinery, are replicable.
Studio 163 completed the construction between December 2022 and July 2024, delivering a flat that went from one bedroom to two while also improving thermal performance, indoor air quality, and daily livability. In a housing market where most people cannot build new but must instead make the best of what already exists, this is the kind of project that points a way forward. It asks a useful question: what if we treated the renovation of a ground-floor flat with the same care and ambition we reserve for new builds?
Clay House by Studio 163 Architects, Falkland Road, Kentish Town, London, United Kingdom. Completed 2024. Photography by Peter Molloy.
About the Studio
Share Your Own Work on uni.xyz
If projects like this are the kind of work you want to make, uni.xyz is a place to publish your own, find collaborators, and enter design competitions.
Popular Articles
Popular articles from the community
Fausto Terán and Toro Fuse Japanese Craft with Mexican Tradition in a Lakeside Retreat
Nakamura House pairs Shou-Sugi-Ban charred pine with handmade clay tile at the foot of Atlangatepec Lagoon in Mexico.
YOAP Architects Round a Corner in Yeongcheon with a Cylindrical Community Hub
A 197-square-meter brick and ribbed-clad tower turns a forgotten alley corner in South Korea into a public garden with a low threshold.
Rojkind Arquitectos and Think Parametric Build a Glueless Pavilion from 67 Interlocking Panels
A serpentine fiber-cement installation in Chapultepec Park celebrates a decade of architectural media in Mexico City.
RDTH architekti Rips Out Nearly Every Wall in a Prague Apartment and Replaces Them with Furniture
A 101-square-meter post-war flat in Prague trades rigid partitions for a single rotated furniture block, curtains, and glass concrete.
Similar Reads
You might also enjoy these articles
Olio Towers: A Mid-Rise for Performers That Fuses Housing, Rehearsal, and Stage
Located blocks from Houston's Theater District, this modular tower stacks living units around a central performance atrium.
Oasis: Modular Green Housing Carved into Dhaka's Urban Fabric
A shortlisted Plugin Housing entry reclaims unauthorized settlements in Dhaka with stepped concrete volumes, green roofs, and ventilation-driven design.
Black Hole: A Floating Megastructure for the Post-Physical Era
Emiliano Mazzarotto envisions a spherical, self-scaling arena where e-sports, digital hotels, and holographic stadiums replace traditional public space.
Compact & Sustainable Living in Piraeus: A Four-Level Family Home Built Around Light and Air
A narrow townhouse in one of Greece's densest port cities uses a central atrium and passive strategies to house three generations under one roof.
Explore Architecture Competitions
Discover active competitions in this discipline
The International Standard for Design Portfolios
The Global Benchmark for Architecture Dissertation Awards
The Global Benchmark for Graduation Excellence
Challenge to reimagine the Iron Throne
Comments (0)
Please login or sign up to add comments
No comments yet. Be the first to comment!