Sustainable Kindergarten Architecture: Roland Baldi Architects’ Design for Kiens
A beautifully designed sustainable kindergarten fostering learning, play, and environmental responsibility in the heart of Kiens, Italy.
A New Standard in Sustainable Kindergarten Architecture
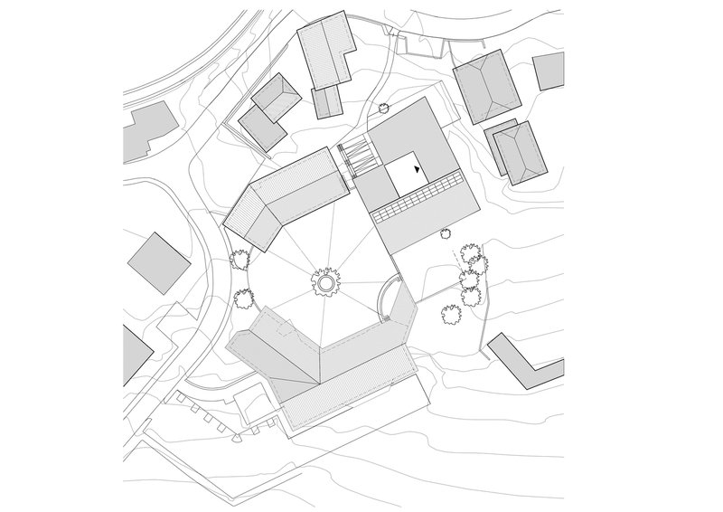
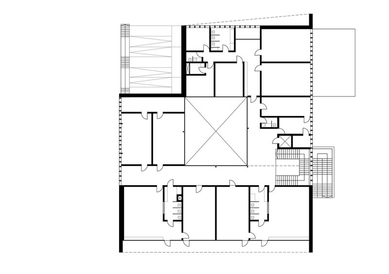
The Kindergarten and Daycare Center by Roland Baldi Architects in Kiens, Italy, is a remarkable example of sustainable kindergarten architecture that prioritizes children’s well-being, environmental responsibility, and seamless integration into the local context. Designed to replace an older facility, this two-story timber building now accommodates two kindergarten groups and provides daycare services for up to 20 children.



Thoughtful Design for Learning and Play
The architects crafted a clear design language that centers on light, openness, and flexibility. Inside, light-filled group rooms and various studios open directly to the garden, creating an inviting atmosphere that encourages exploration, creativity, and social interaction. The layout fosters a sense of community and offers children diverse spaces to learn and play, reflecting the core principles of sustainable kindergarten architecture.





A Harmonious Dialogue with the Village
The building’s reddish-brown wooden façade draws inspiration from the neighboring church tower, allowing it to blend harmoniously into the townscape. This sensitive approach respects the architectural heritage of Kiens while introducing a contemporary design that feels both fresh and familiar. A zigzag ramp connects the upper floor and serves as a playful yet practical feature, providing step-free access and linking the building to the upper part of the village.





Sustainability at the Heart of the Project
Achieving the Klimahaus / CasaClima A standard, the project integrates sustainable technologies and construction methods. An air-to-water heat pump ensures efficient energy use, while photovoltaic modules on the green roof harness renewable energy. The timber structure, with its low-carbon footprint and warm aesthetic, reinforces the project’s commitment to sustainability and climate-conscious design. This blend of environmental stewardship and child-centered architecture makes the building a model of sustainable kindergarten architecture.




A Dream Space for Children
The new kindergarten is more than just a building; it is a carefully designed environment where children can thrive. It offers a safe, nurturing, and stimulating setting that supports early childhood development while embodying the values of sustainability, inclusivity, and design excellence. With its integration of renewable energy systems, eco-friendly materials, and thoughtful spatial planning, this project sets a benchmark for future educational facilities.







All the photographs are works of Oskar Da Riz
Popular Articles
Popular articles from the community
Fifth NRE Jazz Club – De Bever Architecten: Eindhoven’s Revitalized Cultural Hub
Historic gas factory transformed into Fifth NRE Jazz Club blending modern sustainability, jazz culture, dining, and heritage architecture seamlessly.
Solar Steam: A Climate-Responsive Architecture That Redefines the Monument
A climate-responsive memorial architecture that transforms heat, decay, and time into a living system reflecting humanity’s ecological impact.
Gads Hill Early Learning Center by JGMA: Adaptive Reuse Shaping Community-Focused Educational Architecture
Adaptive reuse transforms fragmented structure into vibrant early learning center with playful façade, natural light, and community-focused sustainable design.
The Ken Roberts Memorial Delineation Competition (Krob)
As the most senior architectural drawing competition currently in operation anywhere in the world, it draws hundreds of entries each year, awarding the very best submissions in a series of medium-based categories.
Similar Reads
You might also enjoy these articles
Free Architecture Competitions You Can Enter Right Now
No entry fees, real prizes. Here are the best free architecture competitions open for submissions in 2026.
Top 15 Architecture Competitions to Enter in 2026
From student-friendly idea competitions to prestigious international awards, here are the best architecture competitions open for entries in 2026. Updated regularly.
DIY & Engineering in Computational Design : Enter the BeeGraphy Design Awards
Showcase Your Creativity with Computational Design and Open Source Projects

Innovative Design Solutions: Award-Winning Projects from Recent Architecture Competitions
Exploring award-winning architectural projects shaping the future of design, sustainability, and community.
Explore Architecture Competitions
Discover active competitions in this discipline
The International Standard for Design Portfolios
The Global Benchmark for Architecture Dissertation Awards
The Global Benchmark for Graduation Excellence
Challenge to reimagine the Iron Throne
Comments (0)
Please login or sign up to add comments
No comments yet. Be the first to comment!