Sustainable Modern Homes in Portugal: Donavan House by PIMAA
The Donavan House by PIMAA reimagines Comporta's vernacular architecture, blending ecological sensitivity with contemporary design amidst a serene pine forest.
Nestled in the tranquil pine forests of Comporta, Portugal, the Donavan House by PIMAA is a masterful reinterpretation of the region’s architectural heritage. Inspired by the traditional wooden huts of local fishermen and Comporta's serene landscapes, the project seamlessly merges ecological responsibility with contemporary design principles, creating a sanctuary deeply rooted in its natural surroundings.


Architectural Harmony with Nature
The Donavan House takes its cues from the rugged beauty of Comporta, ensuring minimal disruption to the environment. The architects prioritized ecological preservation by designing the home around the existing pine trees, allowing the natural landscape to guide the layout and placement of the structures.

The project utilizes a palette of natural materials—wood, cement, and plaster—emphasizing sustainability and simplicity. This choice reflects the principle of “truth to materials,” grounding the design in authenticity and ensuring a timeless aesthetic.

A Composition of Volumes
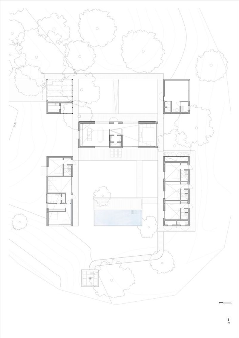
The architectural design is articulated through five distinct volumes, each serving specific functions. These volumes are connected by elevated wooden walkways that preserve the forest floor, reinforcing the dialogue between architecture and nature. The interconnected layout emphasizes spatial fluidity, creating a cohesive relationship between the built environment and its surroundings.


The Day Area
At the core of the design lies the central volume, housing the day area. This multifunctional space consolidates the living room, dining area, and kitchen under a single roof. Expansive glazing blurs the boundaries between indoor and outdoor spaces, offering unobstructed views of the surrounding forest and nearby rice fields.



Auxiliary Volumes
Two auxiliary volumes complement the central day area. The western volume is a gym, perfectly positioned to capture the golden hues of the setting sun, fostering relaxation and physical well-being. To the east, an open garage marks the entrance to the property, blending practicality with understated architectural elegance.

The Night Area
Privacy is a defining feature of the night area, distributed across two distinct volumes. The first volume accommodates the master bedroom and an ensuite guest room, with direct access to the exterior walkways for a seamless connection to nature. The second volume offers additional bedrooms designed for adaptability, ensuring comfort while maintaining harmony with the overall design.

A Courtyard Anchored in Contemplation
The swimming pool patio, situated at the heart of the composition, serves as the project’s centerpiece. This open-air courtyard is framed by the surrounding volumes, creating a dynamic yet tranquil environment for daily life to unfold. The interplay of water, light, and natural materials transforms the courtyard into a meditative retreat, further integrating the home with its natural surroundings.

Vernacular Reinterpretation
The design reimagines the humble wooden huts of Carrasqueira's local dock, blending traditional elements with modern architecture. Elevated walkways, minimalist aesthetics, and the use of natural materials honor the vernacular heritage while adapting it to contemporary living standards.

Sustainable Design for a Modern Sanctuary
PIMAA’s commitment to sustainability is evident throughout the project. By preserving the natural voids of the forest, minimizing land clearing, and using eco-friendly materials, the Donavan House exemplifies ecological sensitivity. The elevated walkways not only reduce environmental impact but also enhance the architectural experience, allowing residents to navigate the home while immersed in nature.


The Donavan House is a striking example of how contemporary architecture can respect and celebrate its natural and cultural context. By reinterpreting Comporta’s architectural heritage through a sustainable and modern lens, PIMAA has created a home that is as much a retreat as it is an architectural statement. This project stands as a testament to the harmony that can exist between human habitation and the environment, setting a benchmark for sustainable modern homes in Portugal.


Popular Articles
Popular articles from the community
Split House: A Compact Urban Home Blending Privacy, Light, and Flexible Living in Japan
Compact Japanese home featuring DOMA space, flexible café potential, passive lighting, privacy zoning, and sustainable urban living design.
The Ken Roberts Memorial Delineation Competition (Krob)
As the most senior architectural drawing competition currently in operation anywhere in the world, it draws hundreds of entries each year, awarding the very best submissions in a series of medium-based categories.
Inverted Architecture Installation by Studio Link-Arc: Exploring the Intersection of Architecture and Living Organisms
Inverted Architecture Installation by Studio Link-Arc blends mycelium, sustainability, inverted design, ecological cycles, and urban adaptive architecture in Shenzhen.
Atelier Macri Concept Store Interior Design by CASE-REAL
Atelier Macri store features a "ko" counter, walnut wood details, cork displays, blending retail, gallery, and seamless customer experiences.
Similar Reads
You might also enjoy these articles
The Ken Roberts Memorial Delineation Competition (Krob)
As the most senior architectural drawing competition currently in operation anywhere in the world, it draws hundreds of entries each year, awarding the very best submissions in a series of medium-based categories.
Waterfront Redevelopment and Urban Revitalization in Mumbai: Forging a New Dawn for Darukhana
A transformative waterfront redevelopment project reimagining Darukhana’s shipbreaking heritage into an inclusive urban future.
OUT-OF-MAP: A Call for Postcards on Feminist Narratives of Public Space
Rhizoma Design and Research Lab invites artists, designers, architects, researchers, and students to reflect on how feminist perspectives can reshape public space. Selected works will be exhibited in Barcelona, October 2026. Submissions open until 15 April 2026.
Documentation Work on Buddhist Wooden Temple
Architectural syncretism and cultural hybridity: A comparative study of the Buddhist temples in Chattogram Hill tracks
Explore Architecture Competitions
Discover active competitions in this discipline
The International Standard for Design Portfolios
The Global Benchmark for Architecture Dissertation Awards
The Global Benchmark for Graduation Excellence
Challenge to reimagine the Iron Throne
Comments (0)
Please login or sign up to add comments
No comments yet. Be the first to comment!