Sustainable Mountain Architecture: The House at 9,000 Feet by MacKay-Lyons Sweetapple Architects
The article showcases the House at 9,000 Feet, a prime example of sustainable mountain architecture by MacKay-Lyons Sweetapple Architects.
Nestled in the Intermountain Region of the United States, the House at 9,000 Feet exemplifies cutting-edge sustainable mountain architecture. Designed by the renowned firm MacKay-Lyons Sweetapple Architects, this remarkable residence showcases how innovative design harmonizes with extreme mountain environments. Spanning an area of 511 m², this project completed in 2022, stands as a testament to architecture that respects and responds to its natural surroundings.

The Challenge of Building at High Altitudes
The House at 9,000 Feet is perched atop a mountain, facing the challenges of a 30 percent slope and an annual snowfall reaching 40 feet. These extreme conditions demanded a unique approach: elevating the structure on stilts and creating access via a bridge. This strategy not only addresses the site's slope but also minimizes the building's footprint, a principle core to sustainable mountain architecture.


Southern Exposure and Passive Solar Strategy
Taking advantage of its southern exposure, the house offers breathtaking views of the valley below and nearby mountaintops. This orientation also serves a critical function in the home's passive solar heating strategy, crucial for managing the wide temperature variances in the high desert climate. The design carefully considers heat gain, particularly in winter when low sun angles and reflective snow can significantly increase interior temperatures.


Wind Loads and Structural Design
Located in one of the United States' windiest regions, the house's design also had to withstand extraordinary wind loads. The solution was a steel-framed structure, reminiscent of a bridge, that could endure these forces while minimizing the use of concrete to lessen the environmental impact.


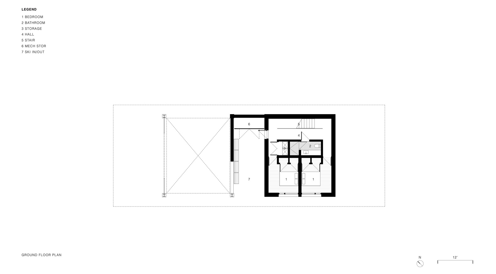
Inside the House at 9,000 Feet
The interior of this five-bedroom ski house, covering 4400 square feet of living space plus additional areas for garage and mechanical functions, reflects the ethos of sustainable mountain architecture. Upon arrival, visitors are greeted by a transparent stairway leading down from a bridge entry, emphasizing the connection between the structure and its environment.

The Great Room: A Monumental Space
At the heart of the home is the great room, crowned with a curved cedar ceiling that echoes the surrounding landscape's contours. An 88-foot-long window seat on the south side not only provides a cozy vantage point to admire the views but also incorporates passive solar design elements to control heat gain. The room is anchored by a 24-foot-long soapstone hearth and kitchen island, blending functionality with natural beauty.

Bedrooms and Amenities
The master bedroom and media room are strategically placed at the east end of the house, offering privacy and tranquility. The concrete 'core' houses four guest bedrooms, spreading them across two levels to maximize space and views. The ski-in/ski-out feature on the ground level adds a luxurious yet practical touch to this mountain retreat.

Environmental Ethic in Design
Adhering to the principle of "touching the land lightly," the House at 9,000 Feet stands as a paragon of sustainable mountain architecture. Its materials, including red cedar and clear white ash, were selected for their durability and minimal environmental impact. This project underscores the possibility of creating luxurious, livable spaces that deeply respect and integrate with their natural settings.


The House at 9,000 Feet by MacKay-Lyons Sweetapple Architects is more than a residence; it's a benchmark in sustainable mountain architecture. It demonstrates how design can overcome environmental challenges, provide comfort and luxury, and remain conscientious of its ecological footprint. This project not only adds to the discourse on sustainable building practices but also inspires us to consider how our homes can better fit within the natural world.


All the photographs are work of Nic Lehoux
Popular Articles
Popular articles from the community
Paco Oria Estudio Rebuilds a 1949 Valencian Town House Around Timber, Terracotta, and a New Interior Patio
In Godella, Spain, a semi-detached house from the postwar era is stripped to its party walls and rebuilt with wood and ceramics.
20 Most Popular Office Building Projects of 2025
From biophilic workspaces in India to net-positive energy offices in New Delhi, 20 office building projects that defined architecture in 2025.
Biophilic Architecture and Regenerative Stadium Design: Biophilia Lagos by Rachel George
A regenerative stadium in Lagos transforms landfill into a living ecosystem through biophilic architecture, waste reuse, and environmental healing.
boq architekti Fits a Gabled Family House onto a Tiny Moravian Hillside Plot with No Room for a Garden
A 115 square meter home in South Moravia trades a garden for a rooftop terrace and a fully glazed facade facing the village below.
Similar Reads
You might also enjoy these articles
Maya Harvest: A Cacao Resort Village Rooted in Mayan Tradition and Local Craft
Situated within a Tabasco cacao plantation, this shortlisted resort proposal merges vernacular materials with hands-on cultural immersion.
Harmonia: A River-Shaped Community That Grows Over Decades in Boa Vista
Curved pathways and modular grid structures along the Branco River create a phased settlement designed to evolve from 2030 to 2050.
The Architecture of Bathing: A Mughal Hammam Reimagined Across the Yamuna
Charlotte May's honorable mention entry for The Black Taj reinterprets Agra's bathing rituals through red sandstone, water, and framed views of the Taj Mah
Om-1: A Wall-Hung System That Moves Your Workspace Off the Desk
Modular plywood boards, magnetic pegs, and utility elements migrate clutter from the horizontal surface to the vertical plane.
Explore Housing Competitions
Discover active competitions in this discipline
The International Standard for Design Portfolios
The Global Benchmark for Architecture Dissertation Awards
The Global Benchmark for Graduation Excellence
Challenge to reimagine the Iron Throne
Comments (0)
Please login or sign up to add comments
No comments yet. Be the first to comment!