Sustainable School Architecture Design: Groupe Scolaire Claudie Haigneré by ValletdeMartinis Architectes
A deep dive into the sustainable design of Groupe Scolaire Claudie Haigneré, emphasizing ecological principles and innovative educational architecture.
Located in Brétigny-sur-Orge, France, the Groupe Scolaire Claudie Haigneré is an exemplary model of sustainable school architecture. Designed by ValletdeMartinis Architectes, this multifunctional educational complex harmonizes ecological principles with innovative design. The 3,781-square-meter project includes a nursery school, elementary school, catering center, and daycare, each thoughtfully integrated into its urban eco-neighborhood context. Completed in 2023, the school represents a new benchmark for combining functionality, aesthetics, and sustainability in educational architecture.




Context and Urban Integration
The school is situated within a dynamic fabric of urban and natural elements, bordered by small houses, multi-family housing projects, and green spaces like the Joncs Marins and Jardin de Traverse. The architects embraced the challenge of fitting the complex into this environment by creating a cohesive yet distinct architectural language. The design features three volumes on the main façade, representing the separate entities of the school group, while the layered volumetric landscape ensures the structure integrates seamlessly into the eco-neighborhood.
Each façade is treated uniquely based on its orientation, allowing the building to respond dynamically to its surroundings. The timber-framed façade with a wooden spine grid on a concrete base reveals the structural logic of the design, while natural materials like brick provide a nuanced treatment of light and shadow throughout the day.



Spatial Organization and Functionality
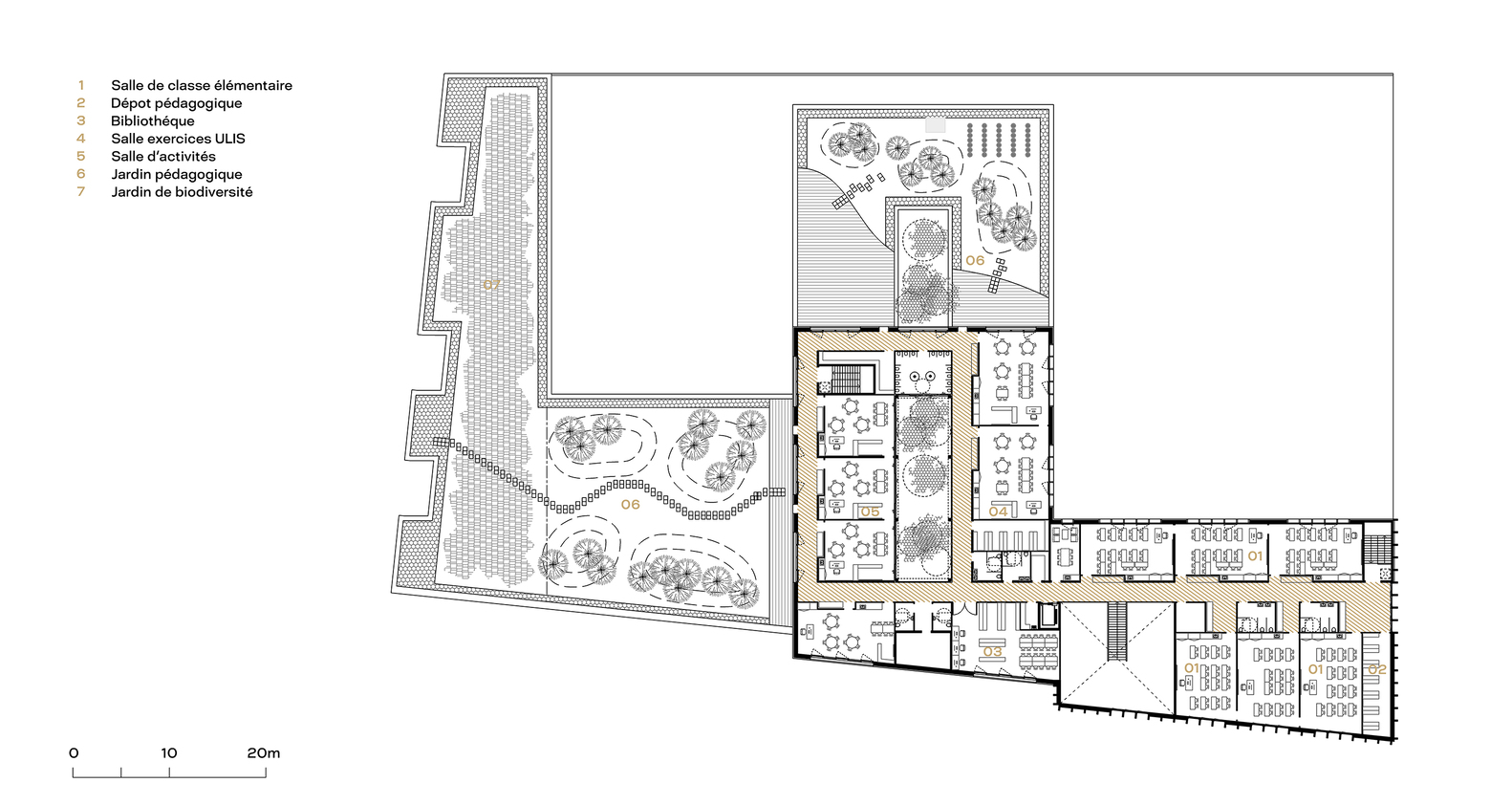
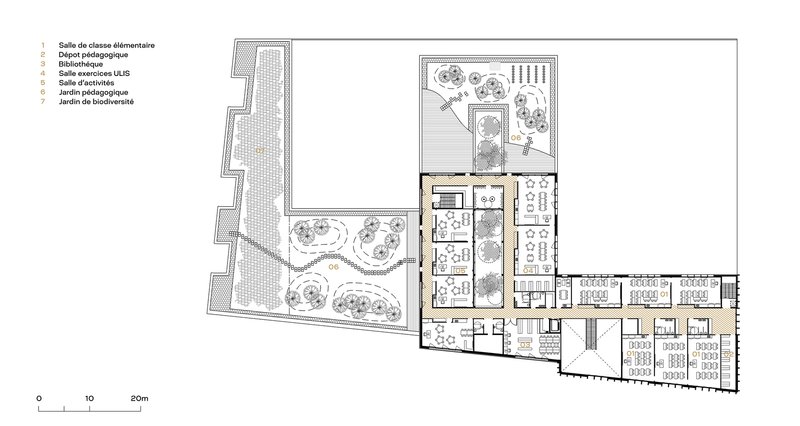
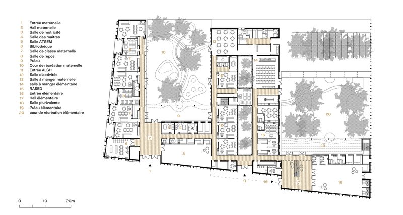
The school complex is arranged in a comb-like layout, with distinct areas for the kindergarten, elementary school, and communal facilities. This organization ensures autonomy for each educational entity while promoting easy navigation. The kindergarten occupies a single floor, while the elementary school spans two levels, with classrooms and adult facilities located on the upper floor. Central to the design are two playgrounds and a 110-square-meter patio, which foster interaction and outdoor engagement.
The design emphasizes the relationship between indoor and outdoor spaces. The kindergarten features a cloister-like courtyard with peripheral circulation, while the elementary school connects directly to the forest, creating distinct atmospheres for each age group. Planted terraces, educational gardens, and a vegetable patch further enhance the ecological value of the site, reducing the urban heat island effect and providing opportunities for hands-on learning.


Integration of Natural Materials
A key feature of the Groupe Scolaire Claudie Haigneré is its extensive use of natural materials. Mud brick, wood, and wood fiber acoustic insulation contribute to a warm and calm atmosphere conducive to learning and development. These materials ensure durability while reducing the environmental impact of the construction.
The interior design reinforces the connection between nature and education. Wide corridors act as transitional spaces, fostering a sense of community and ownership among students. Wooden benches, coat racks, and personal lockers provide functional yet inviting areas for students to interact and personalize their environment. Large glass frames above coat hooks ensure visibility and transparency, allowing natural light to permeate classrooms throughout the day.



Fostering a Child-Centered Learning Environment
The architectural design prioritizes the well-being and development of students. Restrooms and activity rooms are oriented to maximize natural views and sunlight, creating a harmonious relationship with the surrounding Jardin de Traverse. The interplay of light, materials, and spatial organization encourages a nurturing and engaging atmosphere.
Playgrounds are thoughtfully designed to complement the interior spaces, offering diverse environments for recreation and learning. The kindergarten courtyard is intimate and sheltered, while the elementary school playground opens up to expansive forest views, allowing children to connect with nature in meaningful ways.


A Model for Sustainable Educational Design
The Groupe Scolaire Claudie Haigneré demonstrates how sustainable design principles can enhance educational architecture. By integrating natural materials, optimizing light and ventilation, and fostering a strong connection between indoor and outdoor spaces, ValletdeMartinis Architectes have created a space that is not only functional but also inspiring. The school stands as a testament to the transformative power of architecture in shaping future generations' experiences and relationships with their environment.



All Photographs are work of Charly Broyez
Popular Articles
Popular articles from the community
Atelier Macri Concept Store Interior Design by CASE-REAL
Atelier Macri store features a "ko" counter, walnut wood details, cork displays, blending retail, gallery, and seamless customer experiences.
Alton Cliff House: A Harmonious Retreat by f2a Architecture in Lake Country, Canada
Alton Cliff House blends corten steel, prefabrication, and sustainable design, creating a luxurious, energy-efficient retreat perched on Canadian cliffs.
Free Architecture Competitions You Can Enter Right Now
No entry fees, real prizes. Here are the best free architecture competitions open for submissions in 2026.
The Ken Roberts Memorial Delineation Competition (Krob)
As the most senior architectural drawing competition currently in operation anywhere in the world, it draws hundreds of entries each year, awarding the very best submissions in a series of medium-based categories.
Similar Reads
You might also enjoy these articles
The Ken Roberts Memorial Delineation Competition (Krob)
As the most senior architectural drawing competition currently in operation anywhere in the world, it draws hundreds of entries each year, awarding the very best submissions in a series of medium-based categories.
Waterfront Redevelopment and Urban Revitalization in Mumbai: Forging a New Dawn for Darukhana
A transformative waterfront redevelopment project reimagining Darukhana’s shipbreaking heritage into an inclusive urban future.
OUT-OF-MAP: A Call for Postcards on Feminist Narratives of Public Space
Rhizoma Design and Research Lab invites artists, designers, architects, researchers, and students to reflect on how feminist perspectives can reshape public space. Selected works will be exhibited in Barcelona, October 2026. Submissions open until 15 April 2026.
Documentation Work on Buddhist Wooden Temple
Architectural syncretism and cultural hybridity: A comparative study of the Buddhist temples in Chattogram Hill tracks
Explore Architecture Competitions
Discover active competitions in this discipline
The International Standard for Design Portfolios
The Global Benchmark for Architecture Dissertation Awards
The Global Benchmark for Graduation Excellence
Challenge to design public laboratory
Comments (0)
Please login or sign up to add comments
No comments yet. Be the first to comment!