Sustainable School Design for Special Education: Sai Kirupa Special School by Biome Environmental Solutions
Sai Kirupa Special School combines sustainable architecture and user-focused design to create an inclusive learning environment for special education.
Sai Kirupa Special School, located in Tiruppur, India, represents an inspiring blend of thoughtful architectural design, sustainability, and a deep understanding of the needs of children with Autism Spectrum Disorder (ASD) and other learning disabilities. Designed by Biome Environmental Solutions, the school’s campus reflects a commitment to fostering holistic development in students while addressing their unique sensory, cognitive, and physical needs.





A Vision for Inclusive and Sustainable Education
Sai Kirupa Special School was conceived as a center for specialized education and vocational training aimed at promoting independence and self-reliance among its students. Operated by a charitable trust, the project was designed to accommodate phased construction, ensuring flexibility and incremental development based on funding availability.
The school’s phased approach also allowed real-time feedback from users, enabling refinements that directly respond to the evolving needs of its students and staff. The result is a functional, inclusive, and ecologically responsible campus that nurtures growth and creativity.





Climate-Responsive Design
The architectural design is closely aligned with the local climate of Tiruppur. To mitigate the intense heat of the region, the building’s layout optimizes its north and south facades, minimizing solar heat gain while maximizing ventilation. Shaded courtyards and tensile fabric shade sails create comfortable outdoor spaces for recreation and therapy.
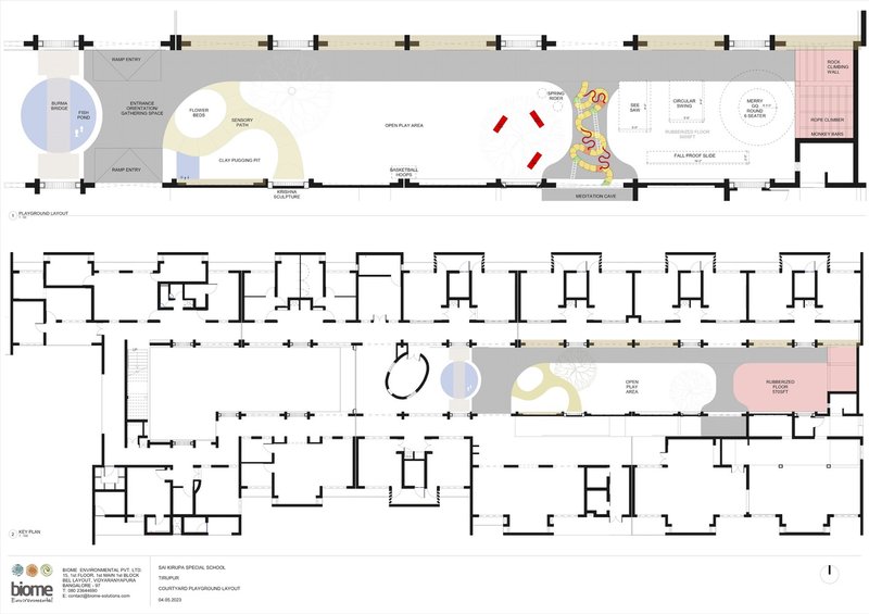
The rectangular layout of the building is organized around a central courtyard, which is further divided into smaller sections by a bridge. This configuration not only aids navigation but also provides functional spaces such as an amphitheater and therapy zones.



Spaces Tailored for Special Education
The school’s layout is meticulously crafted to cater to the sensory and functional needs of its students. On the ground floor, distinct zones house classrooms, therapy rooms, and caretaker spaces. Classrooms feature integrated toilet facilities and adjoining changing rooms, reflecting the specific requirements of students with ASD.

Transition spaces such as arcaded passages and alcoves provide areas for students to pause, engage, or observe activities. These thoughtful design elements ensure that the environment remains inclusive and calming.


On the first floor, residential dormitories and classrooms accommodate students with lesser dependency needs, ensuring a smooth integration of academic and personal care facilities.

Sensory and Experiential Learning Features
The design incorporates experiential elements that promote sensory engagement and motor skill development. Colored tile inserts in circulation paths serve as visual cues, encouraging movement through activities like hopping and skipping. Classroom entrances feature vibrant Tangram-patterned pause points and tactile surfaces, enhancing navigation and creating memorable spatial markers.
The outdoor areas are equally engaging, with sensory paths, shaded play zones, and a bridge over a pond that doubles as a tool for balance and coordination exercises.


Sustainable Construction and Materials
The school’s design emphasizes sustainability, utilizing locally sourced and environmentally friendly materials. Stones and boulders from the site form the foundation, while handmade adobe blocks crafted from on-site gravel create the exposed masonry. These materials not only reduce the building’s carbon footprint but also provide an earthy, textured aesthetic that complements the natural surroundings.


The rough-textured walls and jack arch ceilings help minimize ambient noise, creating a sensory-friendly environment conducive to learning. This focus on sustainability extends to the landscaping, which incorporates native plant species that thrive in the local climate.

A Holistic Approach to Education
Sai Kirupa Special School’s design is more than a collection of physical spaces—it is a nurturing environment that supports the holistic development of its students. By addressing sensory needs, fostering creativity, and promoting sustainable practices, the campus serves as a model for inclusive educational design.


The integration of thoughtful architecture, ecological responsibility, and user-centric solutions demonstrates how schools can go beyond traditional learning environments to empower students and enhance their quality of life.

All Photographs are work of Link Studio
Popular Articles
Popular articles from the community
The Ken Roberts Memorial Delineation Competition (Krob)
As the most senior architectural drawing competition currently in operation anywhere in the world, it draws hundreds of entries each year, awarding the very best submissions in a series of medium-based categories.
An Miên Lumière Cafe by xưởng xép, Ho Chi Minh City, Vietnam
An industrial-inspired café where layered steel and warm light create a dynamic, immersive environment shaped by reflection, depth, and perception.
A Contemporary Take on Iranian Residential Architecture
A modern interior design in Mashhad that reinterprets brick, light, and spatial flow to create a warm, contemporary residential architecture.
Flamboyant House by Juliana Camargo + Prumo Projetos
Modern Brazilian house integrating existing tree, pool, and volumes with glass, wood, and transitional spaces blending interior, exterior, and landscape seamlessly.
Similar Reads
You might also enjoy these articles
The Ken Roberts Memorial Delineation Competition (Krob)
As the most senior architectural drawing competition currently in operation anywhere in the world, it draws hundreds of entries each year, awarding the very best submissions in a series of medium-based categories.
Waterfront Redevelopment and Urban Revitalization in Mumbai: Forging a New Dawn for Darukhana
A transformative waterfront redevelopment project reimagining Darukhana’s shipbreaking heritage into an inclusive urban future.
OUT-OF-MAP: A Call for Postcards on Feminist Narratives of Public Space
Rhizoma Design and Research Lab invites artists, designers, architects, researchers, and students to reflect on how feminist perspectives can reshape public space. Selected works will be exhibited in Barcelona, October 2026. Submissions open until 15 April 2026.
Documentation Work on Buddhist Wooden Temple
Architectural syncretism and cultural hybridity: A comparative study of the Buddhist temples in Chattogram Hill tracks
Explore Architecture Competitions
Discover active competitions in this discipline
The International Standard for Design Portfolios
The Global Benchmark for Architecture Dissertation Awards
The Global Benchmark for Graduation Excellence
Challenge to design public laboratory
Comments (0)
Please login or sign up to add comments
No comments yet. Be the first to comment!