Sustainable Skyscraper Design: AGE 360 Building by ARCHITECTS OFFICE and Triptyque
AGE 360 showcases sustainable skyscraper design, integrating biophilia, structural innovation, and wellness to redefine modern urban living.
The AGE 360 building, designed by ARCHITECTS OFFICE and Triptyque, is a 124-meter residential tower in Curitiba, Brazil. Completed in 2024, this architectural masterpiece redefines sustainable skyscraper design by integrating structural innovation, biophilia, and wellness into a vertical urban icon. Its unique exoskeleton, elevated communal spaces, and abundant vegetation set a new standard for modern living and environmental responsibility.





An Urban Icon in Curitiba
Located in the Ecoville neighborhood, AGE 360 stands as a striking addition to Curitiba’s skyline. The building’s dynamic chamfered design ensures visibility from various parts of the city while harmonizing with its natural surroundings, particularly the nearby Barigui Park. The project’s evolution involved 48 volumetric studies, with the final form balancing structural regulations, urban perspectives, and aesthetic identity.





Structural Innovation and Flexibility
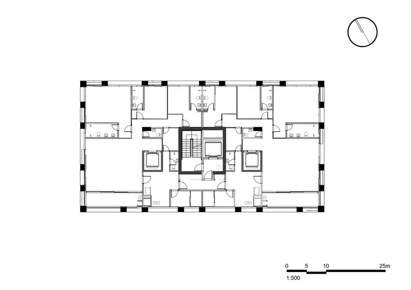
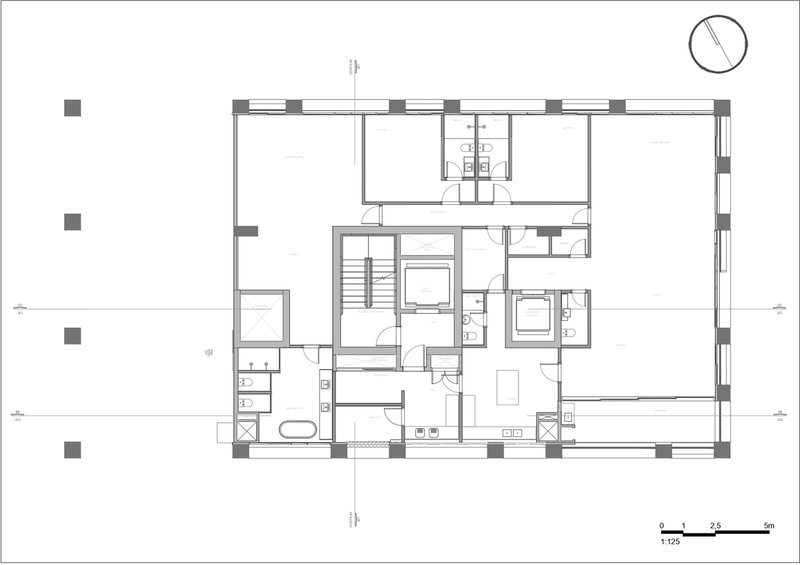
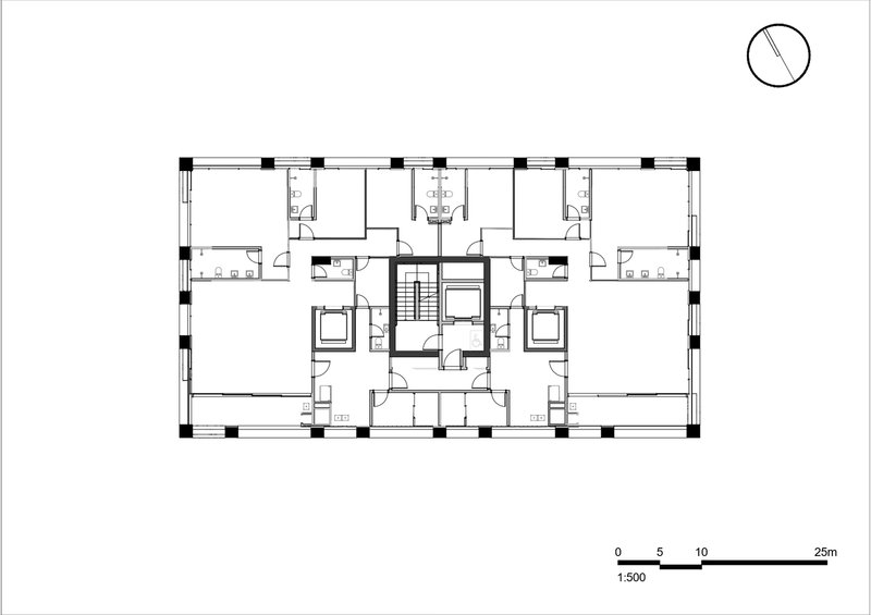
The design incorporates a concrete exoskeleton, freeing the interiors from columns and maximizing flexibility in apartment layouts. This innovative structural approach enhances the building’s aesthetic appeal, emphasizing verticality while allowing residents unobstructed panoramic views. The exoskeleton also reflects the architectural concept of lightness, transforming the building into a beacon of modern engineering and design.





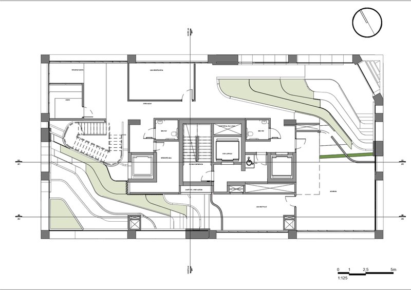
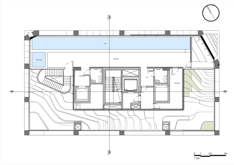
Elevated Wellness and Community Spaces
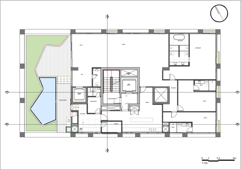
Unlike traditional skyscrapers, AGE 360 places its communal amenities within the tower itself rather than on the ground floor. These spaces include a pool, spa, and elevated gardens that foster a sense of community while offering sweeping city views. Natural wood, exposed concrete, and lush greenery create a serene environment, promoting well-being and relaxation.


The elevated design of these amenities not only optimizes the use of space but also enhances the experience of urban living, connecting residents with both the cityscape and nature.


Biophilia and Sustainable Living
Vegetation plays a central role in AGE 360’s design, embodying the principles of biophilia and sustainability. Planters embedded in terraces form continuous vertical gardens, filled with wind-resistant and low-maintenance plant species. The contrast between the concrete structure and lush greenery creates a harmonious balance, seamlessly integrating the building with its environment.


The project’s commitment to sustainability extends beyond aesthetics. The integration of green elements reduces urban heat island effects, improves air quality, and fosters a closer connection between residents and nature.


Recognitions and Impact
AGE 360 has garnered global acclaim, earning prestigious awards like the iF Design Award, Rethinking the Future seal, and Fitwel certification for health-focused design. These accolades highlight the building’s innovative approach to sustainability, functionality, and well-being, cementing its status as a benchmark for contemporary architecture.

Redefining Sustainable Skyscraper Design
AGE 360 is more than just a residential building—it is a paradigm for how architecture can shape future urban landscapes. By blending structural pragmatism with architectural poetics, the project enriches Curitiba’s real estate market and cultural context.





Through its innovative exoskeleton, biophilic design, and elevated amenities, AGE 360 offers a new vision for skyscrapers—one where functionality meets sustainability and community thrives in vertical spaces. This project serves as a testament to the transformative power of architecture in enhancing urban living and connecting people with their surroundings.




All Photographs are works of Joana França
Popular Articles
Popular articles from the community
Atelier Macri Concept Store Interior Design by CASE-REAL
Atelier Macri store features a "ko" counter, walnut wood details, cork displays, blending retail, gallery, and seamless customer experiences.
Free Architecture Competitions You Can Enter Right Now
No entry fees, real prizes. Here are the best free architecture competitions open for submissions in 2026.
Solar Steam: A Climate-Responsive Architecture That Redefines the Monument
A climate-responsive memorial architecture that transforms heat, decay, and time into a living system reflecting humanity’s ecological impact.
Similar Reads
You might also enjoy these articles
The Ken Roberts Memorial Delineation Competition (Krob)
As the most senior architectural drawing competition currently in operation anywhere in the world, it draws hundreds of entries each year, awarding the very best submissions in a series of medium-based categories.
Waterfront Redevelopment and Urban Revitalization in Mumbai: Forging a New Dawn for Darukhana
A transformative waterfront redevelopment project reimagining Darukhana’s shipbreaking heritage into an inclusive urban future.
OUT-OF-MAP: A Call for Postcards on Feminist Narratives of Public Space
Rhizoma Design and Research Lab invites artists, designers, architects, researchers, and students to reflect on how feminist perspectives can reshape public space. Selected works will be exhibited in Barcelona, October 2026. Submissions open until 15 April 2026.
Documentation Work on Buddhist Wooden Temple
Architectural syncretism and cultural hybridity: A comparative study of the Buddhist temples in Chattogram Hill tracks
Explore Architecture Competitions
Discover active competitions in this discipline
The International Standard for Design Portfolios
The Global Benchmark for Architecture Dissertation Awards
The Global Benchmark for Graduation Excellence
Challenge to design mud housing for contemporary communities
Comments (0)
Please login or sign up to add comments
No comments yet. Be the first to comment!