Sustainable Timber House Extension at Newton Park Place by ROAR Architects
A sustainable timber house extension at Newton Park Place blends contemporary design with heritage preservation and environmental responsibility.
Sustainable timber house extensions are reshaping residential architecture in the United Kingdom, combining environmental consciousness with contemporary design. The transformation of Newton Park Place in Chislehurst, South East London, by ROAR Architects exemplifies this growing trend. The project seamlessly integrates a modern oak-framed extension with a historic Victorian property, demonstrating how sustainability and architectural innovation can coexist.


The Historical Context of Newton Park Place
Newton Park Place is a Grade II Listed Victorian property designed by renowned architect Ernest Newton. The house, located within the Chislehurst Conservation Area, showcases the Vernacular Revival style characterized by an asymmetrical plan and irregular fenestration. Over the years, various alterations sought to replicate the original architectural style, particularly during a 2007 renovation. However, when homeowner Kelly Johnson sought to extend the house, ROAR Architects proposed a departure from imitation, choosing instead to introduce a modern sustainable timber house extension.


The Vision for a Contemporary Sustainable Extension
Kelly Johnson approached ROAR Architects after discovering their work through the renowned "Don’t Move, Improve!" initiative. Her initial brief requested a traditional brick extension with Crittall windows, aligning with common design choices for London homes. However, the architects envisioned a more innovative and eco-friendly solution. They advocated for a sustainable timber house extension that would not only reduce the building’s environmental footprint but also complement the contemporary garden.


Oak was selected as the primary material due to its low embodied carbon, durability, and natural beauty. Wood fiber insulation further enhanced the extension’s thermal efficiency, underscoring the commitment to environmentally responsible construction. ROAR collaborated with specialist joiner Tim Gaudin to fabricate the timber frame in a workshop in Devon before dismantling and reassembling it on-site in London.


Interior Design and Spatial Arrangement
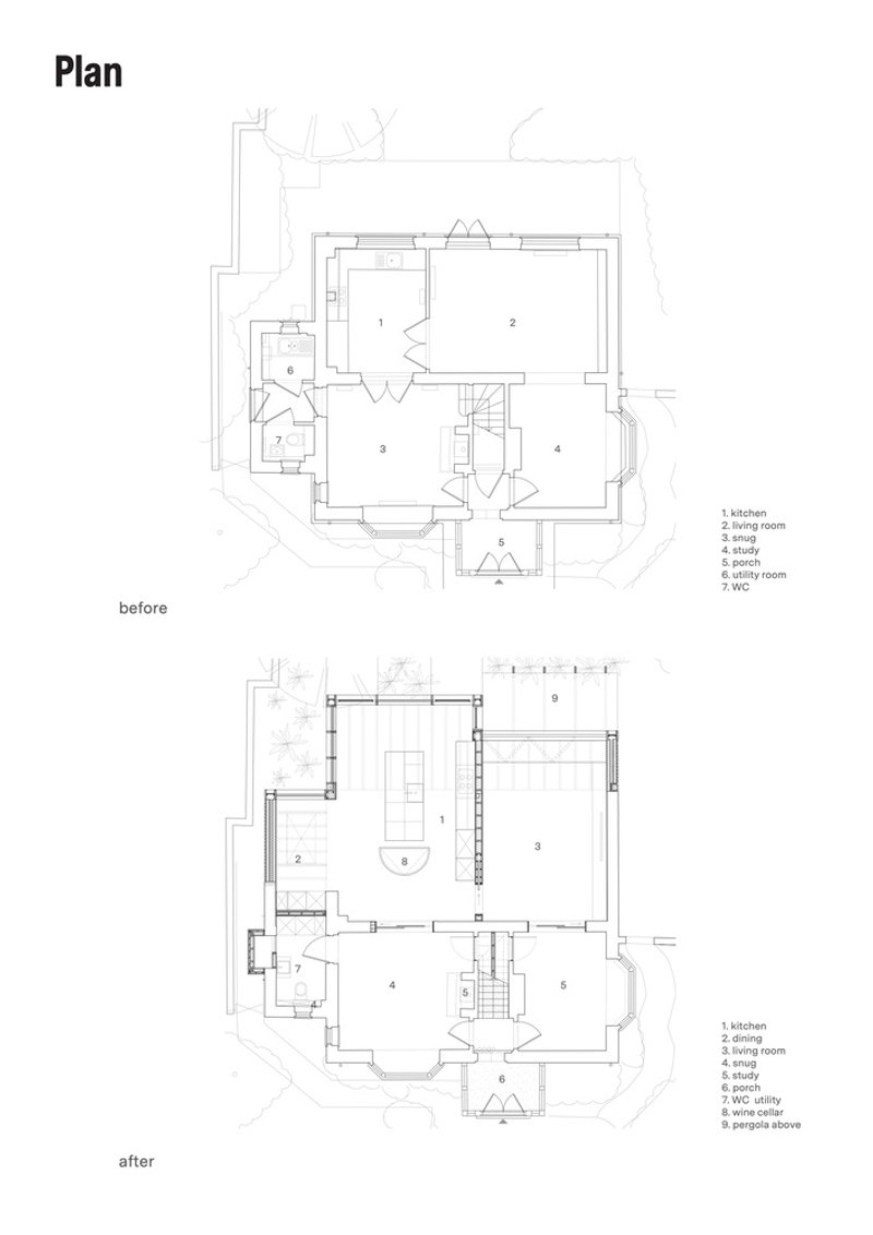
The interior design of the sustainable timber house extension diverges from the open-plan layouts typically favored in London. Homeowner Kelly Johnson expressed a desire for distinct zones within the rear extension to accommodate both kitchen and dining, as well as a separate living room. This brief led to the creation of two carefully designed spaces, each defined by oak framing and enriched with natural light.

The dining area is conceived as a cozy nook connected to the kitchen. A large picture window and overhead skylight illuminate the space, creating a warm and inviting atmosphere. Red string pendant lighting serves as a focal point, while the exposed oak joists and soffits contribute to the extension’s tactile quality.

The living area is characterized by a seamless connection to the outdoors. Full-width bi-folding doors, spanning four meters, open onto the garden, blurring the boundary between interior and exterior spaces. An integrated window seat provides a comfortable vantage point to enjoy the view. The oak structure extends outward into a pergola, further reinforcing the relationship between the house and the landscape.

Innovative Garden Integration
Garden designer Lily Gomm collaborated with ROAR Architects to ensure the outdoor spaces complemented the architectural intervention. The garden design extends the architectural lines of the extension into the landscape. Bespoke large-format paving slabs align with the door opening, guiding movement from the interior toward two distinct outdoor areas.

One section features a pond surrounded by bench seating, offering a tranquil retreat to observe wildlife. The second area is an open seating zone defined by comfortable chairs and feature tree planting. Edging details crafted from clay pavers frame the spaces, while self-binding gravel provides a textured contrast to the paved surfaces.

Sustainable Features and Green Roof Innovation
Sustainability remained a core principle throughout the design and construction of the timber house extension. Solar panels were discreetly installed on the roof of the main house, reducing energy consumption without compromising the heritage aesthetics. The extension itself is crowned with a wildflower green roof, enhancing biodiversity and contributing to the thermal insulation of the structure.

The green roof serves as both a practical and visual asset. From the master bedroom, the rooftop resembles a private meadow, transforming the view into a natural landscape. This biophilic approach reinforces the extension’s connection to nature while softening the appearance of the new structure.

Craftsmanship and Materiality
The success of the sustainable timber house extension lies in the meticulous attention to craftsmanship and materiality. Oak, as the primary structural and finishing material, lends warmth and authenticity to the interiors. Exposed timber joists celebrate the honesty of construction, while the precision of the joinery reflects the skill involved in the frame’s off-site fabrication.

The wine cellar exemplifies the marriage of functionality and design. Engineered limestone concrete was used to craft a three-meter-deep spiral wine cellar, providing a bespoke storage solution that seamlessly integrates into the extension’s layout.

Enhancing the Indoor-Outdoor Connection
The bi-folding doors and pergola emphasize the fluidity between indoor and outdoor spaces. During the summer months, the doors can be fully opened, transforming the living room into an extension of the garden. Planters incorporated into the pergola offer privacy screening while creating a green canopy that evolves with the seasons.

This intentional blending of architecture and landscape is a hallmark of modern sustainable timber house extensions. It fosters a sense of openness while ensuring that the extension complements the natural environment.

The sustainable timber house extension at Newton Park Place by ROAR Architects represents a paradigm shift in residential architecture. By embracing oak as the primary material and prioritizing ecological design principles, the project harmonizes contemporary living with heritage preservation. The result is a timeless extension that not only enhances the functionality of the home but also serves as an exemplar of sustainable architecture.

This project underscores the potential of sustainable timber house extensions to redefine the architectural language of heritage properties. It demonstrates that environmental responsibility and modern design can coexist, offering homeowners a path toward a more sustainable and beautiful future.

All Photographs are works of Craig Wharton
Popular Articles
Popular articles from the community
Fifth NRE Jazz Club – De Bever Architecten: Eindhoven’s Revitalized Cultural Hub
Historic gas factory transformed into Fifth NRE Jazz Club blending modern sustainability, jazz culture, dining, and heritage architecture seamlessly.
Atelier Macri Concept Store Interior Design by CASE-REAL
Atelier Macri store features a "ko" counter, walnut wood details, cork displays, blending retail, gallery, and seamless customer experiences.
Alton Cliff House: A Harmonious Retreat by f2a Architecture in Lake Country, Canada
Alton Cliff House blends corten steel, prefabrication, and sustainable design, creating a luxurious, energy-efficient retreat perched on Canadian cliffs.
Similar Reads
You might also enjoy these articles
The Ken Roberts Memorial Delineation Competition (Krob)
As the most senior architectural drawing competition currently in operation anywhere in the world, it draws hundreds of entries each year, awarding the very best submissions in a series of medium-based categories.
Waterfront Redevelopment and Urban Revitalization in Mumbai: Forging a New Dawn for Darukhana
A transformative waterfront redevelopment project reimagining Darukhana’s shipbreaking heritage into an inclusive urban future.
OUT-OF-MAP: A Call for Postcards on Feminist Narratives of Public Space
Rhizoma Design and Research Lab invites artists, designers, architects, researchers, and students to reflect on how feminist perspectives can reshape public space. Selected works will be exhibited in Barcelona, October 2026. Submissions open until 15 April 2026.
Documentation Work on Buddhist Wooden Temple
Architectural syncretism and cultural hybridity: A comparative study of the Buddhist temples in Chattogram Hill tracks
Explore Architecture Competitions
Discover active competitions in this discipline
The International Standard for Design Portfolios
The Global Benchmark for Architecture Dissertation Awards
The Global Benchmark for Graduation Excellence
Challenge to reimagine the Iron Throne
Comments (0)
Please login or sign up to add comments
No comments yet. Be the first to comment!