Swiss School Gymnasium Architecture: A Modern Multi-Use Solution
The article explores the innovative design of the Swiss School Gymnasium, blending functionality, flexibility, and architectural integration with the campus.
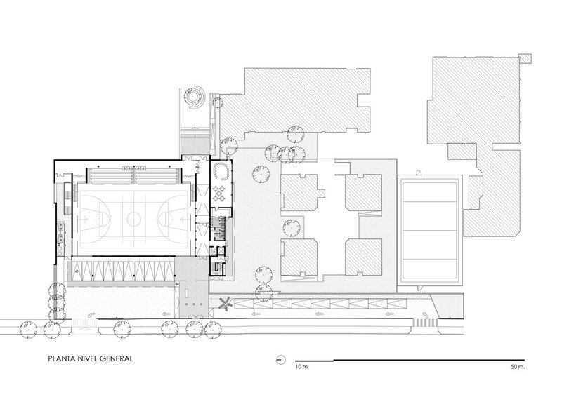
The Swiss School Gymnasium in Ñuñoa, Santiago, designed by Lambiasi + Westenenk Arquitectos, Eliash Arquitectos, and Marcela Schmauk, is an exemplary project of modern school architecture. The gymnasium is more than just a sports facility—it serves as a flexible, multi-purpose space that addresses various needs of the Swiss School, including the creation of a new entrance, preschool classrooms, and a solution to the traffic congestion that plagued the area. This article explores the architectural design of the Swiss School Gymnasium, highlighting its innovation, functionality, and the seamless integration with the surrounding urban context.


A Comprehensive Architectural Expansion
The request for the Swiss School’s expansion was multifaceted. The school needed a covered sports space, new preschool classrooms, and a better solution for school traffic. The design team took on the challenge by creating a structure that accommodates all these requirements while maintaining harmony with the existing buildings.
Key Features of the Swiss School Gymnasium:
- A Flexible Multi-Use Space The gymnasium was designed with flexibility in mind. Not only does it accommodate sports activities, but it can also be used for year-end events, presentations, and meetings, making it a valuable asset for the entire school community.
- Underground Sports Facility One of the most innovative aspects of the design is the use of an underground level to house the multi-court sports facility. This decision allowed the architects to maintain the urban scale of the neighborhood while maximizing the available space above ground for other functions.
- Integration with the Existing School The new building respects the scale and layout of the existing campus. The architects strategically positioned the new volume to integrate with the school's existing circulation paths and minimize disruptions to the daily flow of students and staff.


Architectural Design Elements
The Swiss School Gymnasium is designed to stand out while blending seamlessly with its surroundings. The architects employed several key design elements to create a visually striking and functional building.
Red Color Scheme
The choice of a red color for the exterior is a nod to Switzerland’s national identity, giving the gymnasium a distinct presence on Campo de Deportes Street. This bold color choice helps the building stand out while also contributing to the school's sense of pride and heritage.
Transparent Facade for Natural Light
The gymnasium features translucent vertical limits on the first level, which allows natural light to filter into the main space. This not only creates a bright and airy atmosphere but also helps visually integrate the sports area with the rest of the school, making it less of an isolated facility and more of a central part of the school experience.
Flexibility and Multi-Use Design
A key aspect of the building’s design is its flexibility. The gymnasium is equipped to serve as a venue for various school events, such as year-end presentations and meetings. This adaptability makes the gymnasium a versatile addition to the school, enhancing the learning environment beyond just sports.
Efficient Traffic Solutions
Another major consideration in the design was addressing the traffic congestion surrounding the school. To alleviate this, the architects designed a new vehicular drop-off zone along with underground parking to accommodate future increases in student and staff numbers. The new entrance is strategically positioned to optimize traffic flow and reduce bottlenecks during peak hours.



Strategic Placement of Preschool Classrooms and Outdoor Spaces
The new building also accommodates preschool classrooms on the first level, which are situated at the south facade. Between the existing building and the new structure, a new outdoor playground was introduced, creating a seamless connection between the learning spaces for younger students and the wider school community.


A Masterclass in School Architecture
The Swiss School Gymnasium is an exemplary model of modern school architecture, blending aesthetic appeal, functionality, and environmental considerations. By providing a flexible multi-use space that addresses the school’s needs while respecting its urban context, the architects have created a building that is not only a gymnasium but a dynamic space for community engagement and student development.
This project exemplifies how thoughtful architectural design can elevate a school environment, providing students and staff with the spaces they need to grow and learn while maintaining a strong connection to their community and heritage.



All photographs are work of Tomas Westenenk Orrego
Popular Articles
Popular articles from the community
The Ken Roberts Memorial Delineation Competition (Krob)
As the most senior architectural drawing competition currently in operation anywhere in the world, it draws hundreds of entries each year, awarding the very best submissions in a series of medium-based categories.
Split House: A Compact Urban Home Blending Privacy, Light, and Flexible Living in Japan
Compact Japanese home featuring DOMA space, flexible café potential, passive lighting, privacy zoning, and sustainable urban living design.
Gads Hill Early Learning Center by JGMA: Adaptive Reuse Shaping Community-Focused Educational Architecture
Adaptive reuse transforms fragmented structure into vibrant early learning center with playful façade, natural light, and community-focused sustainable design.
Similar Reads
You might also enjoy these articles
The Ken Roberts Memorial Delineation Competition (Krob)
As the most senior architectural drawing competition currently in operation anywhere in the world, it draws hundreds of entries each year, awarding the very best submissions in a series of medium-based categories.
Waterfront Redevelopment and Urban Revitalization in Mumbai: Forging a New Dawn for Darukhana
A transformative waterfront redevelopment project reimagining Darukhana’s shipbreaking heritage into an inclusive urban future.
OUT-OF-MAP: A Call for Postcards on Feminist Narratives of Public Space
Rhizoma Design and Research Lab invites artists, designers, architects, researchers, and students to reflect on how feminist perspectives can reshape public space. Selected works will be exhibited in Barcelona, October 2026. Submissions open until 15 April 2026.
Documentation Work on Buddhist Wooden Temple
Architectural syncretism and cultural hybridity: A comparative study of the Buddhist temples in Chattogram Hill tracks
Explore Architecture Competitions
Discover active competitions in this discipline
The International Standard for Design Portfolios
The Global Benchmark for Architecture Dissertation Awards
The Global Benchmark for Graduation Excellence
Challenge to reimagine the Iron Throne
Comments (0)
Please login or sign up to add comments
No comments yet. Be the first to comment!