Tam Dao Retreat House by Idee Architects: A Nature-Integrated Mountain Sanctuary in Vietnam
A serene forest retreat in Tam Dao, blending minimalist architecture, glass volumes, and natural materials to create a tranquil, landscape-immersed escape.
Nestled on a 2,000 m² hillside in Tam Dao, Vietnam, the Tam Dao Retreat House by Idee Architects is a serene architectural escape designed to harmonize modern living with untouched natural beauty. Surrounded by a cool mountain microclimate and a lush, mature pine forest, this contemporary retreat embraces a context-driven design philosophy that allows the landscape to shape the architecture—not the other way around.

Sustainable Architecture Rooted in Nature
The project site originally housed 52 mature pine trees, all of which were meticulously preserved. These trees form a natural structural grid that guided the layout of the retreat, ensuring minimal impact on the environment. The house is carefully nestled into the hillside, respecting existing contours and enhancing the feeling of living within nature.


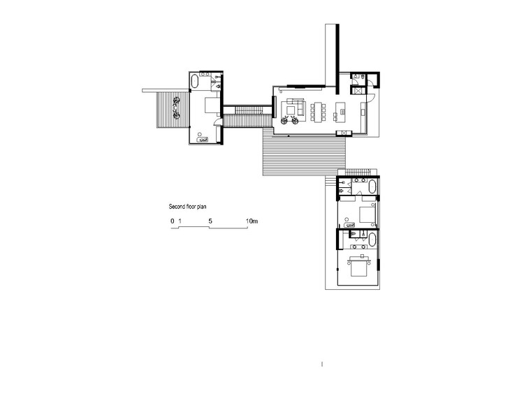
Three Floating Volumes Connected by Glass Bridges
The retreat comprises three detached architectural volumes strategically positioned within natural openings of the forest canopy and arranged along the slope. This includes:
- One two-storey block
- Two single-storey blocks
- Lightweight steel-and-glass bridges that connect the structures
These bridges maintain visual transparency, allowing uninterrupted views of the pine forest and reinforcing the seamless relationship between indoor interiors and the surrounding natural environment.


Minimalist Design Inspired by Clarity and Restraint
Idee Architects adopt a minimalist, non-intrusive architectural language that blends the home effortlessly into its forest setting. Key design features include:
- Two-sided corner glazing, creating “cornerless rooms” that dissolve boundaries between inside and outside
- Large glass surfaces shaded naturally by the towering pine canopy
- Raw concrete and locally sourced grey stone, grounding the structure to the terrain
This material palette ensures durability while maintaining an organic harmony with the rugged hillside landscape.


Immersive Outdoor Living Spaces
The retreat prioritizes a lifestyle deeply connected to nature. Wide terraces, open balconies, and covered transitional spaces offer multiple vantage points for forest views. Notably, a 50 m² infinity pool sits at the lower end of the slope, providing an immersive forest-bathing experience and enhancing the retreat’s tranquil atmosphere.


Functional Zoning to Preserve the Landscape
The main living cluster, including the living room, kitchen, and four bedrooms, occupies the upper elevation to maximize panoramic views of the mountains and forest. Meanwhile, service areas and landscape elements are placed lower on the slope, minimizing disruption to the natural topography.



A Context-Driven Mountain Retreat
The Tam Dao Retreat House stands as a testament to architecture guided by environment. Rather than imposing on the forest, the home quietly settles into its surroundings, offering a peaceful sanctuary that celebrates Vietnam’s natural beauty—while demonstrating thoughtful environmental stewardship.




All the photographs are works of Trieu Chien
Popular Articles
Popular articles from the community
The Ken Roberts Memorial Delineation Competition (Krob)
As the most senior architectural drawing competition currently in operation anywhere in the world, it draws hundreds of entries each year, awarding the very best submissions in a series of medium-based categories.
Atelier Macri Concept Store Interior Design by CASE-REAL
Atelier Macri store features a "ko" counter, walnut wood details, cork displays, blending retail, gallery, and seamless customer experiences.
Inverted Architecture Installation by Studio Link-Arc: Exploring the Intersection of Architecture and Living Organisms
Inverted Architecture Installation by Studio Link-Arc blends mycelium, sustainability, inverted design, ecological cycles, and urban adaptive architecture in Shenzhen.
Fifth NRE Jazz Club – De Bever Architecten: Eindhoven’s Revitalized Cultural Hub
Historic gas factory transformed into Fifth NRE Jazz Club blending modern sustainability, jazz culture, dining, and heritage architecture seamlessly.
Similar Reads
You might also enjoy these articles
The Ken Roberts Memorial Delineation Competition (Krob)
As the most senior architectural drawing competition currently in operation anywhere in the world, it draws hundreds of entries each year, awarding the very best submissions in a series of medium-based categories.
Waterfront Redevelopment and Urban Revitalization in Mumbai: Forging a New Dawn for Darukhana
A transformative waterfront redevelopment project reimagining Darukhana’s shipbreaking heritage into an inclusive urban future.
OUT-OF-MAP: A Call for Postcards on Feminist Narratives of Public Space
Rhizoma Design and Research Lab invites artists, designers, architects, researchers, and students to reflect on how feminist perspectives can reshape public space. Selected works will be exhibited in Barcelona, October 2026. Submissions open until 15 April 2026.
Documentation Work on Buddhist Wooden Temple
Architectural syncretism and cultural hybridity: A comparative study of the Buddhist temples in Chattogram Hill tracks
Explore Architecture Competitions
Discover active competitions in this discipline
The International Standard for Design Portfolios
The Global Benchmark for Architecture Dissertation Awards
The Global Benchmark for Graduation Excellence
Challenge to reimagine the Iron Throne
Comments (0)
Please login or sign up to add comments
No comments yet. Be the first to comment!