Tamarindo House by Taller Estilo Arquitectura: A Contemporary Hacienda Rooted in Nature
Tamarindo House embraces a tamarind tree at its core, blending architecture and nature with timeless, organic materials and design.
Where Architecture Embraces Nature, Not Erases It
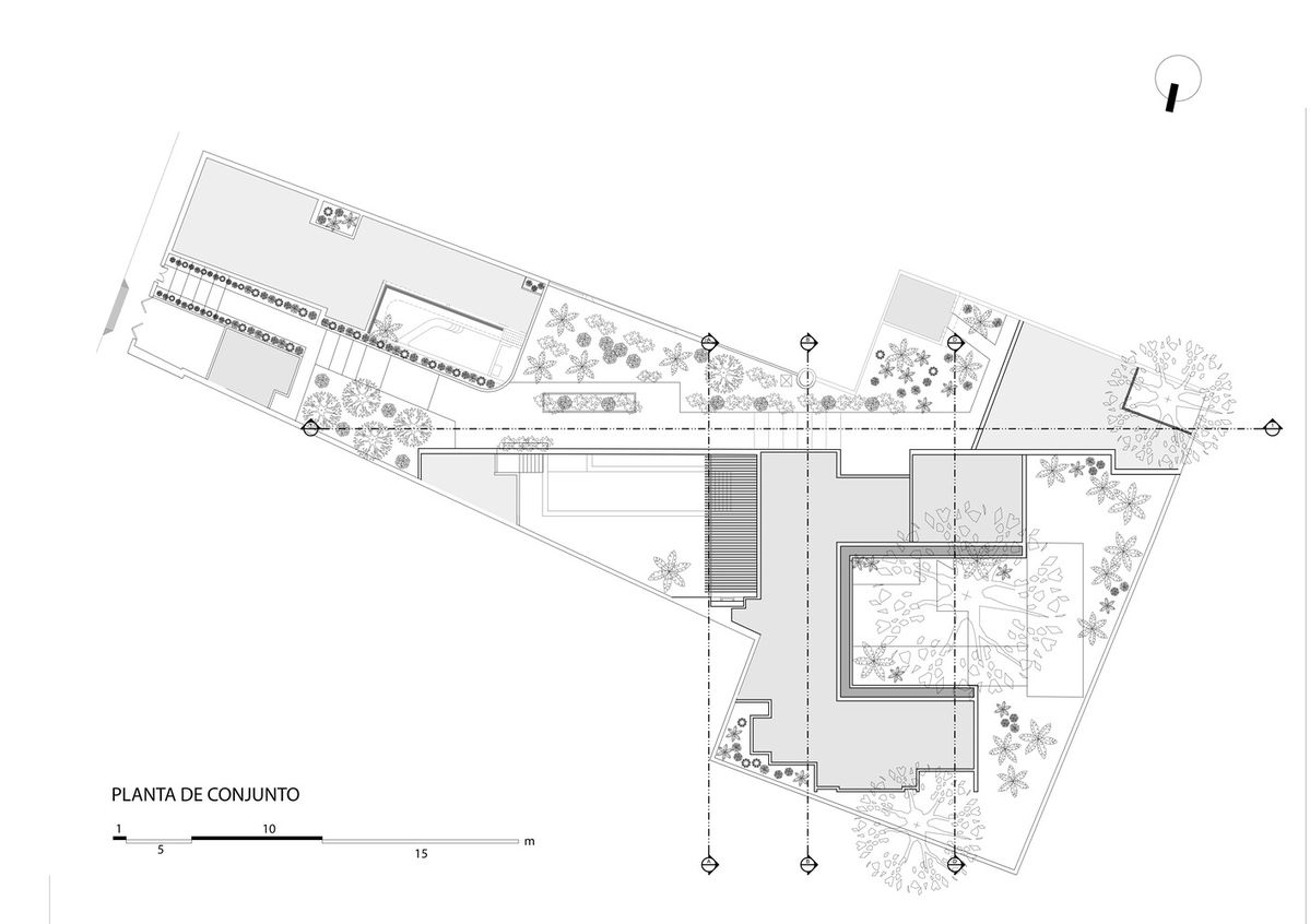
Tamarindo House by Taller Estilo Arquitectura is a stunning architectural response to the timeless harmony between built space and the natural world. Set in the heart of the San Sebastián neighborhood of Mérida, Mexico, this 375-square-meter single-story residence is designed around a single living protagonist — a century-old tamarind tree. Rather than designing around it, the architects chose to celebrate this majestic tree, making it the focal point and primary organizational axis of the project.


Design Philosophy: The Tree Came First
Rooted in the belief that the tree came first, the entire home is an expression of biophilic design, where nature dictates form. The walls, pathways, and views are orchestrated to highlight the presence of the tamarind tree, leading visitors on a sensory journey from the street entrance to the heart of the home — a central courtyard that is simultaneously private and open to nature.


Seamless Integration of Interior and Exterior Spaces
Tamarindo House is divided intuitively into public and private zones, each aligned to optimize natural cross-ventilation, daylight, and the landscape's pre-existing elements. Every room enjoys direct access to exterior gardens, internal patios, or framed green views, allowing for a living experience that feels deeply connected to the environment.
Despite the complex demands of the site, the architects achieved a layout that feels effortless and meditative.

Materiality: A Dialogue With Time
The design channels a Contemporary Hacienda aesthetic, inspired by Yucatecan traditions yet defined by modern sensibilities. The architects carefully selected natural, raw materials that age gracefully — echoing the patina and permanence of historic haciendas.
The use of polished integral color cement, textured stone, and handcrafted wood elements allows the architecture to evolve with time. Light plays across the surfaces throughout the day, offering a different atmosphere in every moment.


Architectural Elements that Guide and Shelter
- The Tamarind Tree, a living sculpture around which the home orbits, shaping orientation and movement. A monumental guiding wall, standing 6.2 meters tall, that leads guests through the site. This wall shifts roles — acting as a visual barrier, a sculptural feature, a windowed frame, and ultimately, a threshold into the studio.
These features anchor the home while allowing the inhabitants to experience changing perspectives, light conditions, and textures throughout the day.


A Personal Retreat for Creative Living
Commissioned by a couple — a plastic artist and a graphic designer/writer — the home reflects their lifestyle: deeply personal, artistic, and contemplative. Each studio and living space is oriented to inspire, encourage solitude, and welcome nature indoors.
The overall result is not just a home, but an experiential canvas—a testament to how architecture can elevate daily life while respecting natural heritage.


Conclusion: Contemporary Living Rooted in Authenticity
Casa Tamarindo is a celebration of nature-led architecture and timeless materiality. Taller Estilo Arquitectura delivers more than shelter — they offer a way of living that honors environment, memory, and creativity.

All the photographs are works of Manolo Solís
Popular Articles
Popular articles from the community
Solar Steam: A Climate-Responsive Architecture That Redefines the Monument
A climate-responsive memorial architecture that transforms heat, decay, and time into a living system reflecting humanity’s ecological impact.
The Ken Roberts Memorial Delineation Competition (Krob)
As the most senior architectural drawing competition currently in operation anywhere in the world, it draws hundreds of entries each year, awarding the very best submissions in a series of medium-based categories.
Alton Cliff House: A Harmonious Retreat by f2a Architecture in Lake Country, Canada
Alton Cliff House blends corten steel, prefabrication, and sustainable design, creating a luxurious, energy-efficient retreat perched on Canadian cliffs.
Inverted Architecture Installation by Studio Link-Arc: Exploring the Intersection of Architecture and Living Organisms
Inverted Architecture Installation by Studio Link-Arc blends mycelium, sustainability, inverted design, ecological cycles, and urban adaptive architecture in Shenzhen.
Similar Reads
You might also enjoy these articles
The Ken Roberts Memorial Delineation Competition (Krob)
As the most senior architectural drawing competition currently in operation anywhere in the world, it draws hundreds of entries each year, awarding the very best submissions in a series of medium-based categories.
Waterfront Redevelopment and Urban Revitalization in Mumbai: Forging a New Dawn for Darukhana
A transformative waterfront redevelopment project reimagining Darukhana’s shipbreaking heritage into an inclusive urban future.
OUT-OF-MAP: A Call for Postcards on Feminist Narratives of Public Space
Rhizoma Design and Research Lab invites artists, designers, architects, researchers, and students to reflect on how feminist perspectives can reshape public space. Selected works will be exhibited in Barcelona, October 2026. Submissions open until 15 April 2026.
Documentation Work on Buddhist Wooden Temple
Architectural syncretism and cultural hybridity: A comparative study of the Buddhist temples in Chattogram Hill tracks
Explore Architecture Competitions
Discover active competitions in this discipline
The International Standard for Design Portfolios
The Global Benchmark for Architecture Dissertation Awards
The Global Benchmark for Graduation Excellence
Challenge to reimagine the Iron Throne
Comments (0)
Please login or sign up to add comments
No comments yet. Be the first to comment!