Tan Coffee: Industrial Charm Meets Green Oasis in Hue, Vietnam
Tan Coffee transforms an abandoned factory into a green industrial café, blending nostalgia, sustainability, and contemporary design in Hue, Vietnam.
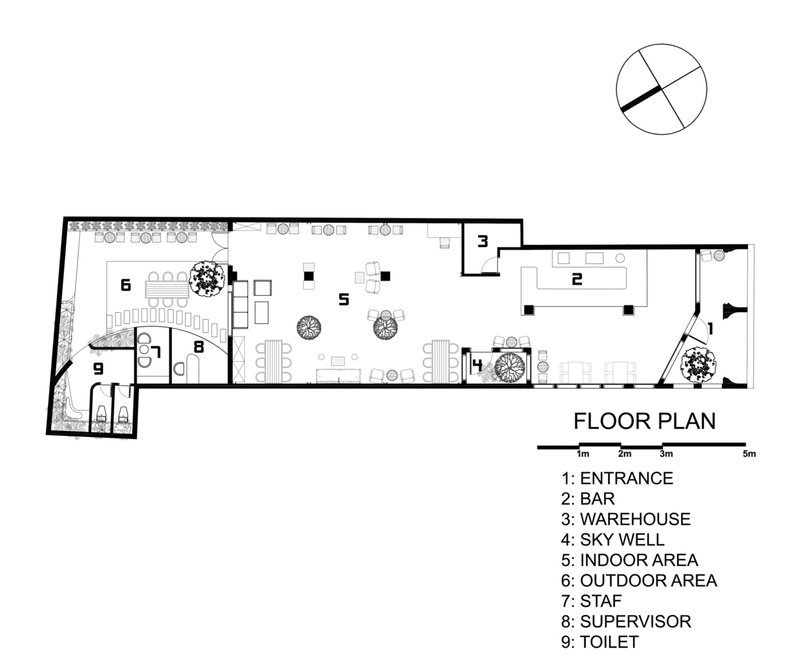
In the heart of Thành phố Huế, Vietnam, Tan Coffee by Son Studio transforms an abandoned factory into a unique coffee shop that blends industrial aesthetics with natural elements. Spanning 245 m², this innovative project revitalizes old structures while introducing modern materials and sustainable practices. Tan Coffee is a testament to how architecture can breathe new life into forgotten spaces, creating a harmonious balance between history, functionality, and design.


Redefining Space: From Factory to Coffee Shop
The concept for Tan Coffee began with an abandoned factory, whose original structure was carefully deconstructed. The design retained key elements of the old space, such as the concrete ceiling and aged walls in the front house, while introducing a new steel and concrete framework for durability and functionality. The tin roof was elevated to evoke a factory-like atmosphere, with large concrete pillars segmenting the space and expansive windows allowing natural light and ventilation to flow freely.
The result is a design that blends modern industrial features with the nostalgia of the past, evoking a sense of history while meeting contemporary needs.



A Green Haven Amid Concrete and Steel
Despite its industrial framework, Tan Coffee incorporates lush greenery to soften the visual impact of its materials. An indoor garden serves as a focal point, providing a refreshing contrast to the concrete walls, steel structures, and glass elements. This green space not only enhances the visual appeal but also contributes to a calm and welcoming atmosphere for visitors.
The greenery is complemented by recycled wood accents, adding warmth and texture to the space, while highlighting the sustainable approach of the project.


Functionality in Design
The layout of Tan Coffee prioritizes practicality while maintaining its aesthetic appeal.
- The bar is positioned at the front entrance for accessibility.
- Essential spaces such as the office, storage room, and toilets are strategically placed at the back.
- A second indoor garden at the rear enhances the connection between the architecture and nature.
This thoughtful design ensures smooth operations for the staff while creating distinct zones for customers to enjoy.



Materials and Sustainability
One of the most striking aspects of Tan Coffee is its commitment to sustainability and the creative reuse of materials.
- Recycled tin roofing preserves the industrial essence of the original factory.
- Steel structures were treated with additives to achieve a naturally rusted appearance, contributing to the "abandoned" aesthetic.
- Concrete ceilings and old walls were left intact, celebrating the history of the site.
- Wooden elements were sourced from other deconstructed buildings, adding character and depth.
These design choices not only align with the concept of an "abandoned factory" but also demonstrate a thoughtful approach to eco-friendly architecture.


Industrial Aesthetics with a Modern Twist
The interior design complements the industrial theme, featuring minimalist furniture in steel, wood, and glass. The muted color palette highlights the raw textures of the materials, creating a space that feels both authentic and contemporary. Each element—from the weathered surfaces to the recycled fixtures—adds to the overall narrative of transformation and renewal.



Challenges and Triumphs
The project posed unique challenges, particularly in achieving the desired “color of past times.” This required meticulous attention to detail, including:
- Artificially aging the steel structures.
- Preserving imperfections in the concrete and wood.
- Ensuring that new additions blended seamlessly with the original elements.
After six months of design and construction, the result is a coffee shop that feels as though it has always existed—a space where the past and present coexist beautifully.


A Café with Character
Tan Coffee by Son Studio is more than just a coffee shop; it is a thoughtful exploration of how architecture can transform forgotten spaces into vibrant community hubs. By combining industrial elements with sustainable practices and natural touches, the café offers a unique and inviting experience in Hue. This project is a perfect example of how adaptive reuse can preserve history while embracing modern needs.





All Photographs are work of Quang Dam
Popular Articles
Popular articles from the community
Free Architecture Competitions You Can Enter Right Now
No entry fees, real prizes. Here are the best free architecture competitions open for submissions in 2026.
Split House: A Compact Urban Home Blending Privacy, Light, and Flexible Living in Japan
Compact Japanese home featuring DOMA space, flexible café potential, passive lighting, privacy zoning, and sustainable urban living design.
Magic Box Office Barcelona Innovative Sustainable Workplace Design
Innovative sustainable office design featuring triangular form, ceramic façade, flexible interiors, natural light optimization, and creative workspace for modern work culture.
20 Most Popular Commercial Architecture Projects of 2025
From sustainable market concepts to heritage factories, the commercial buildings and proposals that drew the most attention on uni.xyz this year.
Similar Reads
You might also enjoy these articles
Filtering Space: A Gradual Spatial Experience
From urban intensity to spatial calm.
The Ken Roberts Memorial Delineation Competition (Krob)
As the most senior architectural drawing competition currently in operation anywhere in the world, it draws hundreds of entries each year, awarding the very best submissions in a series of medium-based categories.
Waterfront Redevelopment and Urban Revitalization in Mumbai: Forging a New Dawn for Darukhana
A transformative waterfront redevelopment project reimagining Darukhana’s shipbreaking heritage into an inclusive urban future.
OUT-OF-MAP: A Call for Postcards on Feminist Narratives of Public Space
Rhizoma Design and Research Lab invites artists, designers, architects, researchers, and students to reflect on how feminist perspectives can reshape public space. Selected works will be exhibited in Barcelona, October 2026. Submissions open until 15 April 2026.
Explore Architecture Competitions
Discover active competitions in this discipline
The International Standard for Design Portfolios
The Global Benchmark for Architecture Dissertation Awards
The Global Benchmark for Graduation Excellence
Challenge to reimagine the Iron Throne
Comments (0)
Please login or sign up to add comments
No comments yet. Be the first to comment!