TBS School in Barcelona: A Beacon of Sustainable Educational Architecture by Batlleiroig
An in-depth exploration of TBS School in Barcelona by Batlleiroig, highlighting its sustainable design, innovative spaces, and urban integration.
Located in the heart of Barcelona's innovative 22@ district, the TBS School is a testament to cutting-edge architectural design by renowned firm Batlleiroig. Completed in 2022, this terraced building spans 12,210 square meters and serves over 1,100 students. Its ceramic façade, dynamic spaces, and focus on sustainability exemplify modern educational architecture at its finest.


Urban Integration and Dynamic Design
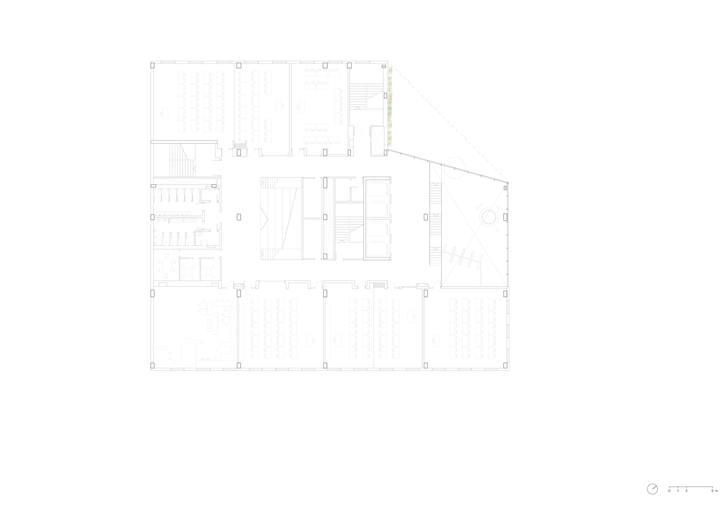
The TBS School embraces Barcelona's urban planning ethos, occupying a chamfered corner between Venezuela and Josep Pla streets in the Eixample district. This location dictated the stepped structure, designed to blend seamlessly into the surrounding cityscape while reducing its visual impact. The terraced design also introduces new public spaces, creating an interior block passage that breathes life into the dense industrial fabric of the Poblenou neighborhood.


Sustainability at the Forefront
A key feature of TBS School is its LEED Gold certification, achieved through an array of sustainable design choices:
- Optimized Energy Efficiency: The building's compact volume minimizes energy loss, while passive design measures regulate climate control.
- Vegetation Integration: Green walls and terraced gardens enhance biodiversity, offering relaxing outdoor spaces for students and staff.
- Energy Generation: Photovoltaic panels and water recovery systems make the campus an active contributor to renewable energy.


Innovative Educational Spaces
Prioritizing User-Centric Design
TBS School was designed with students, faculty, and staff at its core. Its layout emphasizes comfort, biophilia, and collaboration. Communal spaces, distributed across all floors, feature double and triple-height ceilings, fostering intuitive vertical communication and vibrant interactions.
Dynamic Learning Environments
The ground floors house student-centric facilities such as classrooms and meeting spaces, while upper levels accommodate faculty offices and administrative departments. The seventh floor boasts breathtaking city views, serving as a venue for auditoriums and representative events.


Architectural Features: A Blend of Functionality and Aesthetics
Permeability and Public Access
At the chamfered corner, a double-height porch welcomes visitors, connecting the educational facility to its urban context. Extensive glazing enhances transparency, making the building visually inviting and open to the city.
Facade Design
The TBS School's ceramic facade reflects its industrial heritage while adapting to modern needs. Two distinct solutions define the envelope:
- Private Areas: Modular facades with vertical glass panels.
- Public Spaces: Large, glazed openings that connect interior dynamism to the city.
Healthy Mobility Through Design
Helical staircases and well-lit, vegetation-adorned communal areas encourage physical activity and reduce elevator dependence, contributing to user well-being.


Biophilia and Community Connection
The terraced gardens extend learning and relaxation areas outdoors, fostering a connection with nature. The south-facing facade integrates cantilevers with planters, shielding the interior from solar radiation while promoting a sense of tranquility.

Energy Efficiency and Climate Responsiveness
TBS School is designed with an optimal balance of glass and solid surfaces, maximizing natural light while minimizing heat gain. South-facing climbing plants serve as a solar filter, while operable windows provide natural ventilation. These features ensure a comfortable, energy-efficient environment year-round.

Redefining Educational Architecture in Barcelona
Batlleiroig’s TBS School in Barcelona is a landmark in sustainable and user-centric educational architecture. By seamlessly integrating innovative design, environmental responsibility, and community connection, it sets a precedent for future educational projects worldwide.
This fusion of functionality and aesthetics not only enriches the student experience but also contributes to the city’s dynamic urban fabric, embodying the spirit of Barcelona’s architectural excellence.


Popular Articles
Popular articles from the community
Studio Gram Unfurls a Concrete Curve Through an Adelaide Queen Anne Villa
In Rose Park, a billowing concrete threshold stitches a century-old house to a sun-chasing pavilion organized around an existing pool.
boq architekti Fits a Gabled Family House onto a Tiny Moravian Hillside Plot with No Room for a Garden
A 115 square meter home in South Moravia trades a garden for a rooftop terrace and a fully glazed facade facing the village below.
H&P Architects Stack a Vertical River of Brick and Greenery in Hanoi
A perforated terracotta tower in Dong Anh channels water, light, and air through eight staggered levels of domestic life.
20 Most Popular Office Building Projects of 2025
From biophilic workspaces in India to net-positive energy offices in New Delhi, 20 office building projects that defined architecture in 2025.
Similar Reads
You might also enjoy these articles
Olio Towers: A Mid-Rise for Performers That Fuses Housing, Rehearsal, and Stage
Located blocks from Houston's Theater District, this modular tower stacks living units around a central performance atrium.
Oasis: Modular Green Housing Carved into Dhaka's Urban Fabric
A shortlisted Plugin Housing entry reclaims unauthorized settlements in Dhaka with stepped concrete volumes, green roofs, and ventilation-driven design.
Black Hole: A Floating Megastructure for the Post-Physical Era
Emiliano Mazzarotto envisions a spherical, self-scaling arena where e-sports, digital hotels, and holographic stadiums replace traditional public space.
Compact & Sustainable Living in Piraeus: A Four-Level Family Home Built Around Light and Air
A narrow townhouse in one of Greece's densest port cities uses a central atrium and passive strategies to house three generations under one roof.
Explore Educational Building Competitions
Discover active competitions in this discipline
The International Standard for Design Portfolios
The Global Benchmark for Architecture Dissertation Awards
The Global Benchmark for Graduation Excellence
Challenge to design public laboratory
Comments (0)
Please login or sign up to add comments
No comments yet. Be the first to comment!