TBS School in Barcelona by Batlleiroig: A Model of Sustainable and Innovative Educational Architecture
A sustainable, terraced educational facility in Barcelona combining biophilia, innovation, and energy efficiency, designed by Batlleiroig.
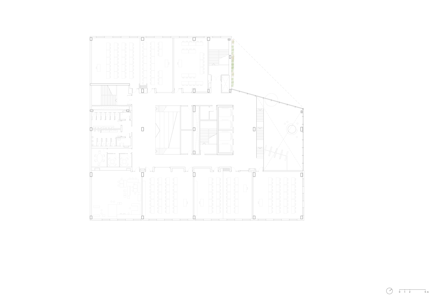
The TBS School in Barcelona, designed by Batlleiroig, redefines educational architecture by blending sustainability, functionality, and biophilic design. Located in Barcelona's innovation district 22@, this terraced building offers a seamless integration of modernity and nature, providing a transformative learning environment for over 1,100 students.


Architectural Features of TBS School Barcelona
Dynamic Design with Ceramic Facades
The building’s facade showcases ceramic materials and expansive glass panels. These elements balance transparency and privacy while paying homage to Poblenou's industrial heritage.


Stepped Structure with Terraces
The terraced design not only optimizes space but also creates outdoor areas adorned with lush greenery, promoting relaxation and biodiversity.


A Campus Focused on Pedagogical Innovation
Communal Spaces for Collaboration
Central to the design are communal areas with double and triple heights. These spaces enhance student interaction and foster innovative teaching methods.



Vertical Connectivity
Helical staircases and green walls connect floors seamlessly, creating a visually dynamic interior that encourages healthy mobility and reduces energy use.


Sustainability and LEED Gold Certification
Energy-Efficient Design
Passive measures, such as orientation-sensitive facades and natural ventilation, reduce energy demand while photovoltaic panels actively generate power.

Vegetation as a Core Element
Cantilevered planters and climbing plants on the south-facing facade provide shade and improve air quality, enhancing the biophilic experience.

Integration with the Urban Landscape Opening New Public Spaces
Opening New Public Places
The design follows Eixample's chamfered layout, creating a public interior block passage that revitalizes the industrial fabric of 22@.


Harmonizing with the Context
By adhering to urban planning regulations and incorporating local materials, the school becomes a cohesive part of Barcelona's evolving skyline.


The TBS School in Barcelona by Batlleiroig is a benchmark in educational architecture. Combining innovative design, sustainability, and connectivity with nature, it sets a new standard for future educational spaces. Its LEED Gold certification underscores its commitment to environmental responsibility and user comfort.


All the photographs are work of Hunter Douglas Architectural (Europe), STACBOND
Popular Articles
Popular articles from the community
3dor Concepts Wraps a Kerala Home in Mirrored Concrete Arcs Around a Courtyard Tree
In the Western Ghats foothills of Thamarassery, a 270 m² single-story house uses two curved volumes to frame nature as its center.
RDTH architekti Rips Out Nearly Every Wall in a Prague Apartment and Replaces Them with Furniture
A 101-square-meter post-war flat in Prague trades rigid partitions for a single rotated furniture block, curtains, and glass concrete.
Rojkind Arquitectos and Think Parametric Build a Glueless Pavilion from 67 Interlocking Panels
A serpentine fiber-cement installation in Chapultepec Park celebrates a decade of architectural media in Mexico City.
HCCH Studio Wraps a Shanghai High-Rise Office in Curved Walls of Translucent Glass
A 1,000 square meter fit-out in Lujiazui replaces the typical tech-office palette with layered glass, micro-cement, and quiet rigor.
Similar Reads
You might also enjoy these articles
Olio Towers: A Mid-Rise for Performers That Fuses Housing, Rehearsal, and Stage
Located blocks from Houston's Theater District, this modular tower stacks living units around a central performance atrium.
Oasis: Modular Green Housing Carved into Dhaka's Urban Fabric
A shortlisted Plugin Housing entry reclaims unauthorized settlements in Dhaka with stepped concrete volumes, green roofs, and ventilation-driven design.
Black Hole: A Floating Megastructure for the Post-Physical Era
Emiliano Mazzarotto envisions a spherical, self-scaling arena where e-sports, digital hotels, and holographic stadiums replace traditional public space.
Compact & Sustainable Living in Piraeus: A Four-Level Family Home Built Around Light and Air
A narrow townhouse in one of Greece's densest port cities uses a central atrium and passive strategies to house three generations under one roof.
Explore Architecture Competitions
Discover active competitions in this discipline
The International Standard for Design Portfolios
The Global Benchmark for Architecture Dissertation Awards
The Global Benchmark for Graduation Excellence
Challenge to design public laboratory
Comments (0)
Please login or sign up to add comments
No comments yet. Be the first to comment!