The Courtyards of Light: An Innovative Approach to Underground Architecture
Innovative underground architecture design with natural light integration in Selim Akyol's Courtyards of Light project.
Underground architecture design is an emerging field that pushes the boundaries of traditional building concepts. The Courtyards of Light Shortlisted entry of Enwrap competition, is a testament to the potential of this innovative approach, where the interplay of natural light and underground spaces creates an extraordinary architectural experience. This project not only addresses aesthetic and functional aspects but also offers a sustainable solution by integrating with the natural landscape.

Design Concept
The idea of constructing a building underground presents a fascinating challenge from a design perspective. The Courtyards of Light leverages this concept to its fullest, using one of the most vital elements in architecture: light. The design ensures that the underground environment is not a dark, confined space but one that interacts dynamically with natural light, creating a unique atmosphere.
The building's layout features multiple courtyards that allow natural light to penetrate deep into the underground spaces. These courtyards serve as light wells, breaking the monotony of enclosed spaces and providing visual and spatial relief. The standard rooms are strategically positioned around these courtyards, ensuring ample natural light and ventilation. For the suite rooms, a separate block is situated on the higher part of the land, offering panoramic views and a sense of openness.

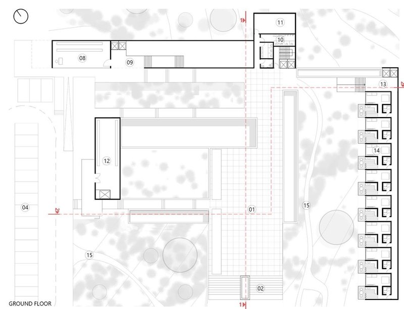
Structural Layout
Ground Level
The entrance level of the Courtyards of Light includes several public amenities designed to enhance the user experience. A terrace and plaza create welcoming outdoor spaces, while bicycle and walking paths promote healthy, eco-friendly transportation. A parking lot is conveniently located at the entrance level, with transportation provided from the car park to the plaza through the courtyard spaces.
The ground floor also features a window with a stunning high mountain view, opening towards the restaurant and spa pool, further integrating the indoor and outdoor environments.
First Basement Level
On the first basement floor, the design incorporates essential facilities such as rooms, reception, administrative units, and a restaurant. This level serves as the main hub for guests, providing easy access to the suite rooms through well-planned circulation paths.
Second Basement Level
The second basement floor is dedicated to fitness and meeting areas. It houses a gym, various meeting points, and additional standard rooms. This layout ensures that guests have access to comprehensive amenities, promoting both physical health and social interaction.
Third Basement Level
The third basement floor features the spa pool and additional rooms. This level is designed for relaxation and wellness, offering a serene environment that benefits from the controlled lighting provided by the light courtyards.
Material and Finish
The exterior of the Courtyards of Light is clad in red limestone, giving the building a robust and earthy appearance that blends seamlessly with the surrounding landscape. The interior walls are covered with white plaster, which enhances the natural light by reflecting it throughout the space, creating a bright and airy ambiance. Black aluminum joinery adds a modern touch, providing a striking contrast to the warm tones of the limestone and the soft white plaster.

Sustainability and Innovation
One of the key advantages of underground architecture design is its potential for sustainability. The Courtyards of Light takes full advantage of the natural insulation properties of the earth, resulting in significant energy savings for heating and cooling. The strategic placement of light courtyards ensures that natural light is maximized, reducing the reliance on artificial lighting.

Moreover, the integration of green spaces and the use of eco-friendly materials further enhance the project's sustainability credentials. The design also promotes sustainable transportation options, with bicycle paths and walking routes encouraging a healthier and more environmentally friendly lifestyle.

The Courtyards of Light by Selim Akyol is a pioneering example of underground architecture design. It demonstrates how innovative design principles can transform subterranean spaces into vibrant, light-filled environments. By harnessing the power of natural light and integrating seamlessly with the natural landscape, this project sets a new standard for sustainable and aesthetically pleasing architecture. As the field of underground architecture continues to evolve, the Courtyards of Light will undoubtedly serve as an inspiring model for future developments.

The Benefits of Underground Architecture Design
Underground architecture design offers numerous benefits beyond aesthetic appeal. These benefits include enhanced energy efficiency, better thermal insulation, and reduced environmental impact. By utilizing the earth's natural insulation properties, buildings can maintain more stable indoor temperatures, leading to lower energy consumption for heating and cooling. Additionally, the reduced surface footprint of underground buildings helps preserve natural landscapes and minimizes urban sprawl.

Challenges and Solutions in Underground Architecture
While underground architecture design presents exciting opportunities, it also comes with unique challenges. These include ensuring adequate natural light, managing moisture and water ingress, and addressing ventilation needs. The Courtyards of Light addresses these challenges through innovative solutions such as strategically placed light courtyards, advanced waterproofing techniques, and state-of-the-art ventilation systems. These solutions ensure a comfortable and healthy living environment while maintaining the aesthetic integrity of the design.

Future Trends in Underground Architecture
As urbanization continues to increase, the demand for sustainable and efficient building solutions is driving the growth of underground architecture design. Future trends in this field are likely to include more widespread use of advanced materials and technologies, greater integration with renewable energy sources, and the development of multi-use underground complexes. The Courtyards of Light serves as a precursor to these trends, showcasing the potential of underground spaces to offer innovative and sustainable living solutions.

Popular Articles
Popular articles from the community
Marvila Apartment Renovation in Lisbon: A Bright Minimalist Attic Transformation by KEMA Studio
Bright attic transformed into minimalist Lisbon apartment with skylights, sustainable materials, open plan layout, and industrial-inspired interior design elements.
Split House: A Compact Urban Home Blending Privacy, Light, and Flexible Living in Japan
Compact Japanese home featuring DOMA space, flexible café potential, passive lighting, privacy zoning, and sustainable urban living design.
Magic Box Office Barcelona Innovative Sustainable Workplace Design
Innovative sustainable office design featuring triangular form, ceramic façade, flexible interiors, natural light optimization, and creative workspace for modern work culture.
TGK Nirasaki Plant: A Smart Factory Blending Technology, Landscape, and Wellness
Smart factory in Japan blending IoT manufacturing, scenic trail design, natural ventilation, and landscape integration to enhance user experience and sustainability.
Similar Reads
You might also enjoy these articles
Filtering Space: A Gradual Spatial Experience
From urban intensity to spatial calm.
Longbranch Residence: A Forest-Integrated Contemporary Home in Key Center, Washington
Forest-integrated Washington residence blending concrete, cedar, and meadow roof to restore landscape continuity and celebrate sustainable contemporary living.
CIFI Sales Center Park Mansion: Harmonizing Architecture with Nature
CIFI Sales Center Park Mansion in Hefei blends water-inspired design, fluid interiors, and immersive experiences, creating vibrant, calming, and sustainable residential showcase architecture.
“Ottoni House Renovation: Preserving 1970s Architecture with Contemporary Design in São Paulo”
Ottoni House in São Paulo blends 1970s architectural heritage with contemporary design, integrating sustainable, functional, and visually striking renovated living spaces.
Explore 3D Visualization Competitions
Discover active competitions in this discipline
The International Standard for Design Portfolios
The Global Benchmark for Architecture Dissertation Awards
The Global Benchmark for Graduation Excellence
Challenge to visualize a collision of the future and past
Comments (0)
Please login or sign up to add comments
No comments yet. Be the first to comment!