The Frame Residence: A Masterpiece of Modern Luxury Home Design
The Frame Residence by Paradigm Design House is a contemporary masterpiece that redefines modern luxury home design in Amman, Jordan.
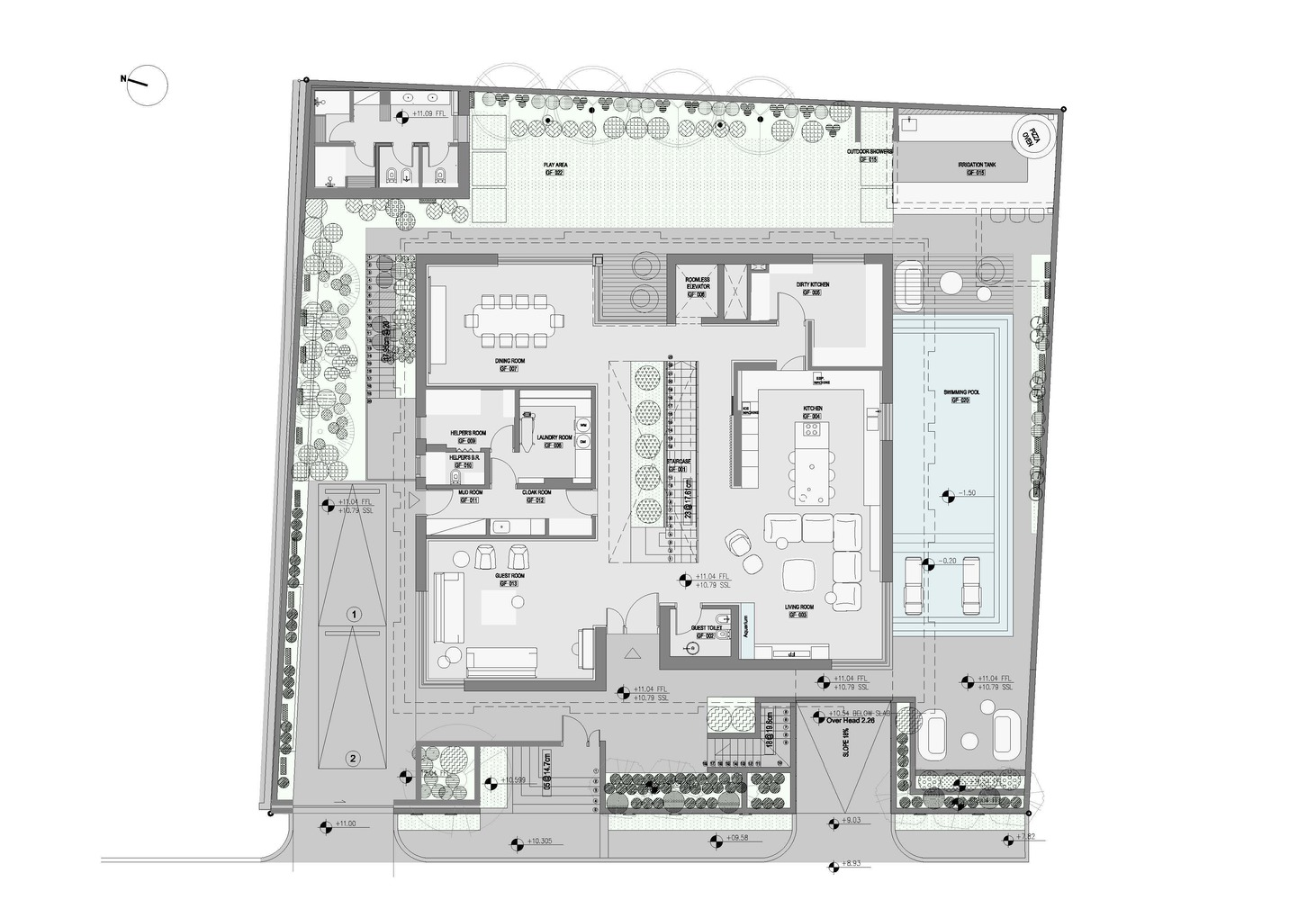
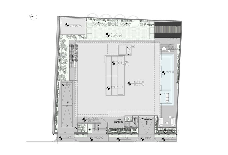
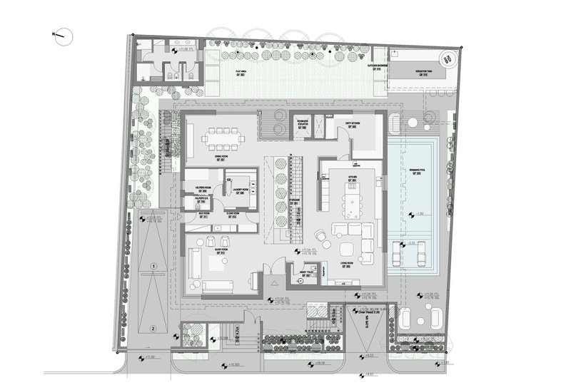
The Frame Residence, designed by Paradigm Design House, is a striking example of modern luxury home design. Located in Amman, Jordan, this 1000m² residence embodies architectural sophistication, seamlessly integrating contemporary aesthetics with the natural beauty of its surroundings. With its interplay of light, materiality, and spatial fluidity, the residence sets a new benchmark for elegance and functionality in residential architecture.




A Vision of Contemporary Elegance
At the core of The Frame Residence’s design is a double-volume atrium that defines the spatial experience. This luminous central space is crowned with a glazed roof, allowing natural light to cascade into the home, creating a dynamic interplay of light and shadow. The atrium not only enhances the visual appeal but also establishes a seamless connection between different living spaces, reinforcing the home's open and fluid layout.


Strategically positioned to embrace panoramic views, the residence is framed by expansive floor-to-ceiling windows and balconies. These sleek metal-framed openings blur the boundary between the interior and exterior, offering breathtaking vistas of Amman’s landscape while maximizing natural ventilation and daylight.


A Fusion of Materiality and Geometric Expression
The exterior of The Frame Residence is a striking composition of natural stone, cut into intricate triangular forms that play with light and shadow throughout the day. This geometric façade introduces a rhythmic visual texture that is both modern and timeless, reinforcing the residence’s strong architectural identity.



Inside, a curated selection of natural materials defines the ambiance. Warm wood panels provide texture and contrast against the cool elegance of stone surfaces. The neutral palette of muted grays adds a sense of tranquility and understated luxury, ensuring that every space within the residence exudes refinement and serenity.




A Harmonious Blend of Luxury and Functionality
The Frame Residence is designed to offer more than just an aesthetically pleasing environment; it is a sanctuary that elevates the living experience. Every design choice, from spatial organization to material selection, prioritizes comfort, functionality, and seamless interaction with nature.


Paradigm Design House has masterfully created a residence that is not merely a place to live, but an immersive experience of architectural brilliance. The Frame Residence stands as a testament to modern luxury home design, where elegance meets practicality, and contemporary aesthetics harmonize with timeless materials.



Popular Articles
Popular articles from the community
Fifth NRE Jazz Club – De Bever Architecten: Eindhoven’s Revitalized Cultural Hub
Historic gas factory transformed into Fifth NRE Jazz Club blending modern sustainability, jazz culture, dining, and heritage architecture seamlessly.
Split House: A Compact Urban Home Blending Privacy, Light, and Flexible Living in Japan
Compact Japanese home featuring DOMA space, flexible café potential, passive lighting, privacy zoning, and sustainable urban living design.
Free Architecture Competitions You Can Enter Right Now
No entry fees, real prizes. Here are the best free architecture competitions open for submissions in 2026.
The Ken Roberts Memorial Delineation Competition (Krob)
As the most senior architectural drawing competition currently in operation anywhere in the world, it draws hundreds of entries each year, awarding the very best submissions in a series of medium-based categories.
Similar Reads
You might also enjoy these articles
The Ken Roberts Memorial Delineation Competition (Krob)
As the most senior architectural drawing competition currently in operation anywhere in the world, it draws hundreds of entries each year, awarding the very best submissions in a series of medium-based categories.
Waterfront Redevelopment and Urban Revitalization in Mumbai: Forging a New Dawn for Darukhana
A transformative waterfront redevelopment project reimagining Darukhana’s shipbreaking heritage into an inclusive urban future.
OUT-OF-MAP: A Call for Postcards on Feminist Narratives of Public Space
Rhizoma Design and Research Lab invites artists, designers, architects, researchers, and students to reflect on how feminist perspectives can reshape public space. Selected works will be exhibited in Barcelona, October 2026. Submissions open until 15 April 2026.
Documentation Work on Buddhist Wooden Temple
Architectural syncretism and cultural hybridity: A comparative study of the Buddhist temples in Chattogram Hill tracks
Explore Architecture Competitions
Discover active competitions in this discipline
The International Standard for Design Portfolios
The Global Benchmark for Architecture Dissertation Awards
The Global Benchmark for Graduation Excellence
Challenge to reimagine the Iron Throne
Comments (0)
Please login or sign up to add comments
No comments yet. Be the first to comment!