The Glenmorangie Distillery: A Masterpiece of Modern Distillery Architecture in Scotland
The Glenmorangie Distillery by Barthélémy & Griño redefines modern distillery architecture by blending heritage, innovation, and sustainability in Scotland’s whisky landscape.
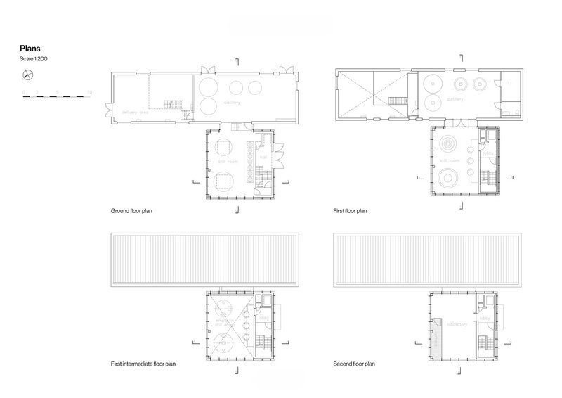
The Glenmorangie Distillery, located in the scenic Highlands of Scotland near the city of Tain, stands as an architectural landmark that bridges heritage and innovation. Designed by Barthélémy & Griño, the newly completed extension is a testament to modern distillery architecture, combining advanced design techniques with respect for tradition. Commissioned in 2016 as part of the Glenmorangie Company’s expansion strategy, the project introduces two striking industrial buildings that redefine the identity of this historic whisky-making site.




A Contemporary Interpretation of Traditional Craftsmanship
The distillery’s architecture reflects a seamless integration of past and present. Founded in 1843 between the rugged Scottish terrain and the North Sea, the site has long been a cornerstone of whisky production. The new structures respect this legacy while introducing a bold contemporary aesthetic. The primary volume, standing 20 meters high, takes inspiration from the region’s historic lighthouses, symbolizing guidance and innovation.



The transparent, cubic design allows visitors to witness the whisky-making process, reinforcing the brand’s commitment to openness and craftsmanship. Inside, two of Scotland’s largest stills are showcased through a glazed façade, creating a visual connection between tradition and technological advancement. The highest level houses a research laboratory and tasting room, offering breathtaking views over the Dornoch Firth, enhancing the immersive experience for both whisky connoisseurs and architectural enthusiasts.



Architectural Expression Through Materiality and Light
The interplay of materials and light is central to the architectural language of the Glenmorangie Distillery. The new tower, referred to as "The Lighthouse," captures the ever-changing Scottish sky, reflecting shifting light conditions and blending harmoniously with the natural surroundings. The glass façade juxtaposes warm wooden panels that reference the whisky casks, emphasizing the narrative of time, aging, and craftsmanship.


A second, lower building complements the primary structure, carefully integrated with the existing warehouses. Clad in local stone and slate, it merges with the landscape, ensuring a dialogue between old and new. Unlike conventional industrial buildings, this addition conceals its technical elements, maintaining a refined aesthetic that aligns with the distillery’s heritage.


Sustainability and Innovation in Distillery Design
Beyond aesthetics, sustainability plays a crucial role in the project’s architectural vision. The extension operates using biogas generated from the whisky distillation process, reducing the site’s environmental footprint. This integration of green energy solutions aligns with Glenmorangie’s commitment to responsible production while setting a precedent for modern distillery architecture.


The careful consideration of sustainability extends to the visitor experience, where natural light and landscape views create an inspiring atmosphere. The design balances technological innovation with sensory engagement, transforming whisky production into an art form that reflects both precision and creativity.


A Symbol of Scotland’s Architectural and Whisky Heritage
The Glenmorangie Distillery’s new extension redefines the relationship between architecture and whisky-making, presenting a visionary model for modern distillery architecture. By embracing innovation without overshadowing tradition, the project pays tribute to Scotland’s rich heritage while positioning itself at the forefront of contemporary industrial design.




This architectural achievement stands as a landmark of transformation, symbolizing a whisky brand that honors its past while looking toward the future. The Glenmorangie Distillery now serves as an icon of craftsmanship, sustainability, and architectural excellence, reinforcing its place in the global whisky industry.




All Photographs are works of Hélène Binet
Popular Articles
Popular articles from the community
The Ken Roberts Memorial Delineation Competition (Krob)
As the most senior architectural drawing competition currently in operation anywhere in the world, it draws hundreds of entries each year, awarding the very best submissions in a series of medium-based categories.
An Miên Lumière Cafe by xưởng xép, Ho Chi Minh City, Vietnam
An industrial-inspired café where layered steel and warm light create a dynamic, immersive environment shaped by reflection, depth, and perception.
Flamboyant House by Juliana Camargo + Prumo Projetos
Modern Brazilian house integrating existing tree, pool, and volumes with glass, wood, and transitional spaces blending interior, exterior, and landscape seamlessly.
Louis Malle Cinema: A Limestone Cultural Landmark Revitalizing Community Life in Prayssac
Limestone cinema extension with public forecourt, blending heritage and modern design to create flexible cultural spaces and strengthen community interaction.
Similar Reads
You might also enjoy these articles
The Ken Roberts Memorial Delineation Competition (Krob)
As the most senior architectural drawing competition currently in operation anywhere in the world, it draws hundreds of entries each year, awarding the very best submissions in a series of medium-based categories.
Waterfront Redevelopment and Urban Revitalization in Mumbai: Forging a New Dawn for Darukhana
A transformative waterfront redevelopment project reimagining Darukhana’s shipbreaking heritage into an inclusive urban future.
OUT-OF-MAP: A Call for Postcards on Feminist Narratives of Public Space
Rhizoma Design and Research Lab invites artists, designers, architects, researchers, and students to reflect on how feminist perspectives can reshape public space. Selected works will be exhibited in Barcelona, October 2026. Submissions open until 15 April 2026.
Documentation Work on Buddhist Wooden Temple
Architectural syncretism and cultural hybridity: A comparative study of the Buddhist temples in Chattogram Hill tracks
Explore Architecture Competitions
Discover active competitions in this discipline
The International Standard for Design Portfolios
The Global Benchmark for Architecture Dissertation Awards
The Global Benchmark for Graduation Excellence
Challenge to reimagine the Iron Throne
Comments (0)
Please login or sign up to add comments
No comments yet. Be the first to comment!