The Nakanoshima Museum of Art by Katsuhiko Endo, a beautiful place to visit in Osaka.
The museum features a variety of artworks from different periods and cultures, making it a great place to learn about art.
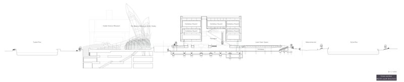
Nakanoshima, a sandbank in Osaka, has been an important site for trade and commerce since the Middle Ages. Today, it is still an important nexus between east and west Nakanoshima. To connect the flow of people and guide them in all directions, the building was designed with a series of entrances.
Given that the Nakanoshima area is prone to flooding, it was important to place the artwork-related rooms on the 3rd floor and above, thereby avoiding any potential physical damage from flooding. The 1st and 2nd floors, on the other hand, are open to the city and offer a public space that can be used on a regular basis by locals - not just visitors to the museum.
The 5-floor steel frame structure features a base isolation system and parking space with an earthquake-resistant system, both connected by expansion joints. Additionally, the external spaces on the 1st and 2nd floors flow seamlessly into the surrounding landscape, with the aim of enhancing urban accessibility. To create this continuous connection, it was necessary to eliminate any height difference between the building and its surroundings.
The museum's black exterior is made up of 609 precast concrete plates. The surface is filled with architectural concrete, which is a combination of crushed Iwate Gensho stone, crushed sand from Uji, Kyoto, black pigment, and a JIS standard lightweight concrete backing. The surface is then roughed up by ultra-high pressure water jets before being coated with a highly concentrated inorganic silica-based compound layer to give weather resistance and protection from aggregates falling.
As a result, on top of the “typography” of the 1st and 2nd floors, a clear geometric “architecture” with massive square facades was designed to express the museum as a floating formation in the city. The 2nd floor, which is a part of the terrain, is connected to the surrounding public facilities by a walkway deck. A connecting walkway is planned to be further extended to the west side of the building, contributing to the future liveliness of the Nakanoshima area and the ease of getting around.
The 1st and 2nd floors have been designed as public lobby spaces, taking inspiration from the concourse of a busy train station. The escalator from the 2nd to 4th floor will provide visitors with a vertical experience as they enter the exhibition rooms. The Passage has been designed to create a three-dimensional lobby space on each floor, with the direction changing from east to west on the 4th floor and from north to south on the 5th floor. The openings in the four exterior walls are also the form of the cross-section of the passages.
The upper floors of the museum not only serve as lobbies in front of the exhibition rooms but also offer views of the Nakanoshima area from all four sides of the building. The passages between the exhibition rooms are intended to provide opportunities for visitors to look up at the city while viewing the exhibition, creating a new urban experience that goes beyond simply enjoying art.
The exterior surface is carved to create micro-shades, giving the outside a darker black hue that doesn't rely on the colour of the material. In contrast, the interior passages are finished with platinum silver louvres on the walls and ceiling. The louvres themselves are very basic, but when combined with the slightly red-tinged grey background paint, natural light from the top atrium light, and different colour temperatures of interior lighting, each side of the passage has a unique shade.
The light shining through the black exterior walls of the building is both a symbol and a sign of a human activity related to art and culture in Nakanoshima, Osaka.
Project name (Japanese): 大阪中之島美術館
Project name (English): Nakanoshima Museum of Art, Osaka
Purpose: Art Museum
Location(prefecture, city): Kita-Ku, Osaka
Site area: 12,870.54㎡
Total floor area: 20,012.43㎡
Number of floors: five above ground
Structure: Steel frame, Base isolation system
Completion month/year: June 2021
Client name (Japanese): 大阪市
Client name (English): Osaka City
Lead architect: Katsuhiko Endo
Design Architecture: Katsuhiko Endo Architect and Associates
Structure: Jun Sato Structural Engineers Co., Ltd.
Engineering: Tohata Architects & Engineers
Landscape: Studio Terra, Inc.
Design and supervision: Katsuhiko Endo, Koyo Tonosaki, Fumiaki Kimura, Atsushi Mochinaga, Hisashi Higuchi, Yuui Kishimoto, Yusuke Mizukawa
Popular Articles
Popular articles from the community
A Contemporary Take on Iranian Residential Architecture
A modern interior design in Mashhad that reinterprets brick, light, and spatial flow to create a warm, contemporary residential architecture.
On the Brooks House by Monsoon Collective – A Contemporary Kerala Home Rooted in Tradition
Kerala home blending tradition and modernity with water-inspired design, brick architecture, courtyard planning, and sustainable rainwater harvesting strategies.
An Miên Lumière Cafe by xưởng xép, Ho Chi Minh City, Vietnam
An industrial-inspired café where layered steel and warm light create a dynamic, immersive environment shaped by reflection, depth, and perception.
Atelier Macri Concept Store Interior Design by CASE-REAL
Atelier Macri store features a "ko" counter, walnut wood details, cork displays, blending retail, gallery, and seamless customer experiences.
Similar Reads
You might also enjoy these articles
Scientific and Educational Monitoring Center of the Yenisei, Krasnoyarsk
Architecture as an instrument for ecological research, education, and environmental awareness along Russia’s largest river.
Development of Andretta Artist’s Village, Palampur, Himachal Pradesh, India
Reimagining Andretta as a living cultural landscape where art, architecture, and community converge to shape a global creative village.
The NEON Culture: Experiential Architecture Shaping Contemporary Urban Life
Exploring how experiential architecture responds to accelerated lifestyles through immersive spaces, adaptive programs, and sensory-driven urban design.
Narwall: Autonomous Offshore Architecture for Extreme Environments
A visionary model of sustainable offshore architecture, Narwall redefines public life, energy autonomy, and resilience in extreme Arctic waters.
Explore Architecture Competitions
Discover active competitions in this discipline
The International Standard for Design Portfolios
The Global Benchmark for Architecture Dissertation Awards
The Global Benchmark for Graduation Excellence
Challenge to reimagine the Iron Throne








Comments (0)
Please login or sign up to add comments
No comments yet. Be the first to comment!