Thebarton Theatre Complex Redevelopment: Breathing New Life into an Adelaide Icon
Historic Adelaide theatre 'Thebby' transformed with new entry pavilion, accessible lift, loading dock, and art deco-inspired interventions preserving iconic character.
A Second Chance for 'Thebby'
In the heart of Adelaide, South Australia, a beloved cultural landmark has undergone a transformative renaissance. The Thebarton Theatre, affectionately known to locals as 'Thebby', has emerged from a comprehensive redevelopment that honors its storied past while boldly embracing the future of live entertainment.

Originally opened in 1928 as Thebarton Town Hall, this State Heritage-listed venue has been an integral part of Adelaide's cultural fabric for nearly a century. Owned by the City of West Torrens, the theatre has hosted countless performances, creating memories for generations of South Australians. However, by the early 2020s, the venue showed significant signs of age and functional inadequacy for contemporary entertainment operations.
From Demolition Threat to Design Triumph
The theatre's journey to redevelopment reads like a dramatic narrative worthy of its own stage production. When plans for a new highway threatened the building's very existence, demolition seemed inevitable. In a remarkable turn of events, the State Government opted to tunnel beneath the existing structures rather than demolish them, granting the theatre an unexpected reprieve and a second chance at life.


This decision passed the baton to JPE Design Studio, who were engaged in 2021 to masterplan the entire precinct, including the theatre, adjoining civic buildings, plaza, and carpark. The challenge was formidable: deliver much-needed modern improvements while preserving the unique character and charm that made 'Thebby' an icon.
Redevelopment: Breathing New Life into an Adelaide Icon
A Second Chance for 'Thebby'
In the heart of Adelaide, South Australia, a beloved cultural landmark has undergone a transformative renaissance. The Thebarton Theatre, affectionately known to locals as 'Thebby', has emerged from a comprehensive redevelopment that honors its storied past while boldly embracing the future of live entertainment.

Originally opened in 1928 as Thebarton Town Hall, this State Heritage-listed venue has been an integral part of Adelaide's cultural fabric for nearly a century. Owned by the City of West Torrens, the theatre has hosted countless performances, creating memories for generations of South Australians. However, by the early 2020s, the venue showed significant signs of age and functional inadequacy for contemporary entertainment operations.

From Demolition Threat to Design Triumph
The theatre's journey to redevelopment reads like a dramatic narrative worthy of its own stage production. When plans for a new highway threatened the building's very existence, demolition seemed inevitable. In a remarkable turn of events, the State Government opted to tunnel beneath the existing structures rather than demolish them, granting the theatre an unexpected reprieve and a second chance at life.

This decision passed the baton to JPE Design Studio, who were engaged in 2021 to masterplan the entire precinct, including the theatre, adjoining civic buildings, plaza, and carpark. The challenge was formidable: deliver much-needed modern improvements while preserving the unique character and charm that made 'Thebby' an icon.

Addressing Decades of Functional Challenges
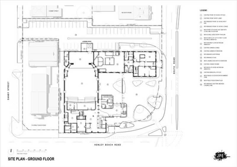
The theatre hadn't undergone significant renovation for several decades, and the operational challenges had compounded over time. Stage 1 of the masterplan broke ground in March 2024, targeting critical functional deficiencies that had plagued the venue for years.

Loading and Logistics Nightmare
Event bump-in and bump-out operations were particularly problematic. Large trucks were forced to navigate the existing south-eastern corner of the site, executing awkward three-point turns in tight spaces. Equipment had to be manually wheeled onto the stage via ramps, creating inefficiency and safety concerns for production crews.

Patron Safety Concerns
The theatre's single main entrance fronting a busy main road created dangerous conditions during peak egress times. Patrons spilling out directly onto traffic posed significant collision risks, while the proximity of the front bar to the toilets created circulation bottlenecks that frustrated visitors and compromised their experience.
Three Strategic Moves, One Transformative Vision
JPE Design Studio's approach centered on three key strategic interventions designed to unlock the precinct's full potential:
1. Relocating Truck Loading
By moving event bump-in and bump-out operations to the rear of the site, the design team eliminated the dangerous dance of large vehicles in constrained spaces. A dedicated loading dock with hydraulic lift and direct stage access now streamlines production logistics while enhancing safety.

2. Creating a Pedestrian Plaza
With truck traffic relocated, the corner of the site was freed for transformation into a landscaped pedestrian plaza. This gathering space now serves both pre-show socializing and community enjoyment, extending the theatre's presence into the urban fabric.


3. Building a New Entry Pavilion
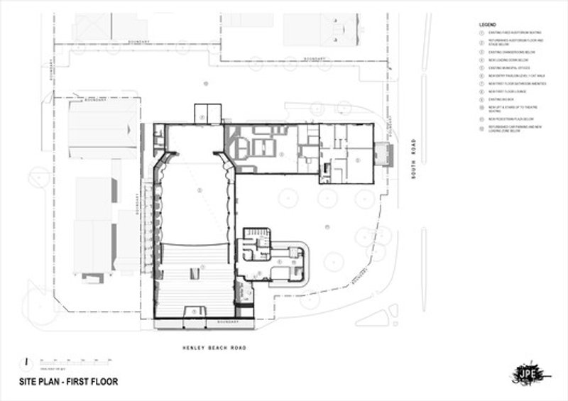
The centerpiece of the redevelopment is a striking new two-storey entry pavilion that fundamentally reimagines the patron experience. This dedicated entrance features expanded bathroom amenities and, for the first time in the theatre's 97-year history, provides equitable access to the auditorium's first floor via a new lift.
Thebarton Theatre Complex Redevelopment: Breathing New Life into an Adelaide Icon
A Second Chance for 'Thebby'
In the heart of Adelaide, South Australia, a beloved cultural landmark has undergone a transformative renaissance. The Thebarton Theatre, affectionately known to locals as 'Thebby', has emerged from a comprehensive redevelopment that honors its storied past while boldly embracing the future of live entertainment.


Originally opened in 1928 as Thebarton Town Hall, this State Heritage-listed venue has been an integral part of Adelaide's cultural fabric for nearly a century. Owned by the City of West Torrens, the theatre has hosted countless performances, creating memories for generations of South Australians. However, by the early 2020s, the venue showed significant signs of age and functional inadequacy for contemporary entertainment operations.
From Demolition Threat to Design Triumph
The theatre's journey to redevelopment reads like a dramatic narrative worthy of its own stage production. When plans for a new highway threatened the building's very existence, demolition seemed inevitable. In a remarkable turn of events, the State Government opted to tunnel beneath the existing structures rather than demolish them, granting the theatre an unexpected reprieve and a second chance at life.


This decision passed the baton to JPE Design Studio, who were engaged in 2021 to masterplan the entire precinct, including the theatre, adjoining civic buildings, plaza, and carpark. The challenge was formidable: deliver much-needed modern improvements while preserving the unique character and charm that made 'Thebby' an icon.
Addressing Decades of Functional Challenges
The theatre hadn't undergone significant renovation for several decades, and the operational challenges had compounded over time. Stage 1 of the masterplan broke ground in March 2024, targeting critical functional deficiencies that had plagued the venue for years.

Loading and Logistics Nightmare
Event bump-in and bump-out operations were particularly problematic. Large trucks were forced to navigate the existing south-eastern corner of the site, executing awkward three-point turns in tight spaces. Equipment had to be manually wheeled onto the stage via ramps, creating inefficiency and safety concerns for production crews.

Patron Safety Concerns
The theatre's single main entrance fronting a busy main road created dangerous conditions during peak egress times. Patrons spilling out directly onto traffic posed significant collision risks, while the proximity of the front bar to the toilets created circulation bottlenecks that frustrated visitors and compromised their experience.

Three Strategic Moves, One Transformative Vision
JPE Design Studio's approach centered on three key strategic interventions designed to unlock the precinct's full potential:
1. Relocating Truck Loading
By moving event bump-in and bump-out operations to the rear of the site, the design team eliminated the dangerous dance of large vehicles in constrained spaces. A dedicated loading dock with hydraulic lift and direct stage access now streamlines production logistics while enhancing safety.
2. Creating a Pedestrian Plaza
With truck traffic relocated, the corner of the site was freed for transformation into a landscaped pedestrian plaza. This gathering space now serves both pre-show socializing and community enjoyment, extending the theatre's presence into the urban fabric.

3. Building a New Entry Pavilion
The centerpiece of the redevelopment is a striking new two-storey entry pavilion that fundamentally reimagines the patron experience. This dedicated entrance features expanded bathroom amenities and, for the first time in the theatre's 97-year history, provides equitable access to the auditorium's first floor via a new lift.
Design Language: Art Deco Inspiration Meets Contemporary Execution
The architectural language of the new interventions demonstrates JPE Design Studio's sensitive approach to heritage contexts. Rather than mimicking historical styles or creating jarring contrasts, the design team drew inspiration from the art deco styling of the 1920s era, creating complementary additions that enhance rather than compete with the original theatre.

Material Palette
Bold geometric forms are balanced with a carefully curated material palette that evokes glamour and theatrical drama. Zinc and steel cladding provide contemporary durability and visual interest, while travertine tile introduces timeless elegance. Brass accents catch the light and reference art deco detailing, while textured render and rich, deep colors create depth and sophistication.


Lighting as Drama
Considered feature lighting plays a crucial role in the overall composition, highlighting architectural elements and creating atmospheric conditions that build anticipation from the moment patrons approach the venue.
Philosophy: Adaptation as Preservation
JPE Design Studio's approach embodies a progressive philosophy toward heritage conservation. As the architects articulate, "the greatest way to preserve a heritage asset is to adapt it to meet the needs of today's users." This project demonstrates that preservation need not mean fossilization; rather, thoughtful adaptation ensures continued relevance and use.

By enhancing the theatre's operational capabilities while maintaining its charm and historical character, the redevelopment secures 'Thebby's' status as a premier entertainment destination for decades to come. The building doesn't simply survive—it thrives, ready to create new memories for future generations.
A Model for Heritage Adaptation
The Thebarton Theatre Complex Redevelopment stands as an exemplar of how heritage buildings can be sensitively upgraded to meet contemporary standards without sacrificing their essential character. The project demonstrates that functional requirements, accessibility improvements, and modern safety standards can be achieved through intelligent design rather than wholesale replacement.

For other communities facing similar challenges with aging cultural infrastructure, 'Thebby' offers valuable lessons: heritage buildings saved from demolition can become vibrant contributors to urban life when given thoughtful, strategic interventions that respect their past while enabling their future.
The 3,600-square-meter project, completed in 2025, represents more than just a building renovation. It's a statement of cultural values, an investment in community gathering spaces, and a testament to the enduring power of live performance. As Adelaide's entertainment landscape continues to evolve, the Thebarton Theatre stands ready—renewed, reinvigorated, and ready for its next century of shows.


All the Photographs are works of Simon McClure
Popular Articles
Popular articles from the community
Atelier Macri Concept Store Interior Design by CASE-REAL
Atelier Macri store features a "ko" counter, walnut wood details, cork displays, blending retail, gallery, and seamless customer experiences.
Solar Steam: A Climate-Responsive Architecture That Redefines the Monument
A climate-responsive memorial architecture that transforms heat, decay, and time into a living system reflecting humanity’s ecological impact.
Inverted Architecture Installation by Studio Link-Arc: Exploring the Intersection of Architecture and Living Organisms
Inverted Architecture Installation by Studio Link-Arc blends mycelium, sustainability, inverted design, ecological cycles, and urban adaptive architecture in Shenzhen.
On the Brooks House by Monsoon Collective – A Contemporary Kerala Home Rooted in Tradition
Kerala home blending tradition and modernity with water-inspired design, brick architecture, courtyard planning, and sustainable rainwater harvesting strategies.
Similar Reads
You might also enjoy these articles
The Ken Roberts Memorial Delineation Competition (Krob)
As the most senior architectural drawing competition currently in operation anywhere in the world, it draws hundreds of entries each year, awarding the very best submissions in a series of medium-based categories.
Waterfront Redevelopment and Urban Revitalization in Mumbai: Forging a New Dawn for Darukhana
A transformative waterfront redevelopment project reimagining Darukhana’s shipbreaking heritage into an inclusive urban future.
OUT-OF-MAP: A Call for Postcards on Feminist Narratives of Public Space
Rhizoma Design and Research Lab invites artists, designers, architects, researchers, and students to reflect on how feminist perspectives can reshape public space. Selected works will be exhibited in Barcelona, October 2026. Submissions open until 15 April 2026.
Documentation Work on Buddhist Wooden Temple
Architectural syncretism and cultural hybridity: A comparative study of the Buddhist temples in Chattogram Hill tracks
Explore Architecture Competitions
Discover active competitions in this discipline
The International Standard for Design Portfolios
The Global Benchmark for Architecture Dissertation Awards
The Global Benchmark for Graduation Excellence
Challenge to reimagine the Iron Throne
Comments (0)
Please login or sign up to add comments
No comments yet. Be the first to comment!