Tighty Whitey House: Vertical Living on a Compact Urban Site
Restored Brisbane workers' cottage with contemporary vertical addition maximizing compact steep site through triple-height stairwell, passive design, and material honesty.
Introduction: Redefining Compact Urban Living
In the densely populated inner suburbs of Brisbane, where land scarcity and urban consolidation exert mounting pressure on residential architecture, Tighty Whitey House emerges as a compelling response to contemporary housing challenges. Designed by Maytree Studios and completed in 2024, this 200-square-meter residence occupies a steep, compact site that many developers might dismiss as too constrained for meaningful intervention. Yet through clever design strategies, material restraint, and a deep understanding of how families actually inhabit space, architects Rebecca Caldwell and Andy Keeffe have created a home that challenges conventional assumptions about scale, privacy, and urban density.

The project's playful name—Tighty Whitey House—references both the site's tight constraints and the crisp white steel cladding that distinguishes the contemporary addition from the heritage cottage it complements. But beyond the memorable moniker lies a serious architectural investigation into what's possible within small urban footprints. The house proves that densification need not compromise liveability, that heritage preservation and contemporary architecture can coexist harmoniously, and that modest budgets and dimensions can yield homes of immense beauty and spatial generosity.

Site Context: Working Within Constraints
Brisbane's inner-city suburbs face intense development pressure as population growth drives demand for housing close to employment centers, cultural amenities, and public transport. Traditional Queensland workers' cottages—modest timber structures built in the post-war era to house the city's expanding workforce—occupy many of these desirable sites. These humble buildings present developers and homeowners with a recurring question: demolish and rebuild to maximize site yield, or preserve and adapt the existing fabric?

The site for Tighty Whitey House presented particular challenges. Its steep topography limits conventional planning approaches, while its compact dimensions constrain the footprint available for expansion. The existing post-war workers' cottage, though characterful, lacked the spatial configuration and environmental performance required by contemporary family life. Many practitioners might have justified complete demolition as the pragmatic solution, clearing the site for a larger, more profitable new building.

Maytree Studios chose a different path—one rooted in conservation principles, material economy, and respect for neighborhood character. Rather than erasing history, they recognized the cottage's heritage value and its contribution to the streetscape's fine-grained texture. This decision shaped every subsequent design move, establishing a project philosophy that values layering and adaptation over tabula rasa approaches.
Heritage Restoration: Celebrating Original Character
The architects' restoration of the original timber cottage demonstrates meticulous attention to heritage character and construction techniques. Rather than treating preservation as mere facade retention, they undertook genuine conservation work that celebrated the cottage's modest materiality and architectural language. The delicate weatherboard cladding received careful repair, maintaining the building's traditional appearance and tactile quality.

This preservation work extended beyond aesthetics. The cottage's timber structure—still sound despite its age—was retained and strengthened where necessary. This approach embodied environmental sustainability through material reuse, avoiding the substantial carbon emissions associated with demolition and new construction. The existing structure's embodied energy, accumulated over decades, remained captured within the building rather than being released to landfill.
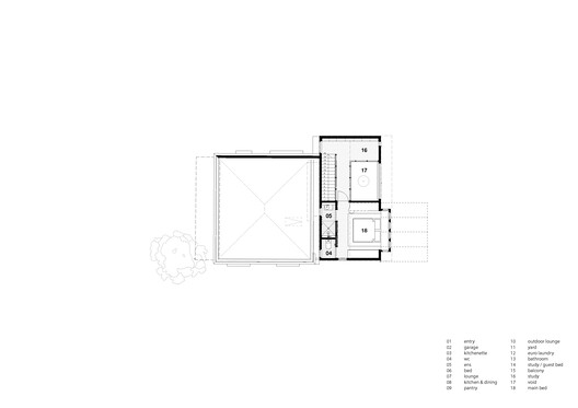
The restored cottage now serves a specific programmatic function within the home's overall organization. It accommodates bedrooms for the family's three children, creating a distinct zone that offers young occupants both proximity to parents and a degree of independence appropriate to their developmental stages. This functional separation between heritage cottage and contemporary addition creates clear spatial hierarchies while maintaining visual and circulatory connections throughout the home.
Street Presence: Engaging the Public Realm
The project's engagement with the street demonstrates sophisticated understanding of how architecture shapes neighborhood character and social dynamics. A kerbside garden and low fence replace more typical approaches that prioritize privacy through high barriers and setback distances. This gesture re-establishes a friendly dialogue with the neighborhood, encouraging connection rather than defensive seclusion.
The design recognizes that streets function as social infrastructure—spaces for casual encounter, community formation, and collective identity. By maintaining visual permeability between private and public realms, the architecture signals openness and hospitality. Neighbors passing on the footpath can glimpse the garden's greenery, creating a more generous streetscape that benefits everyone.

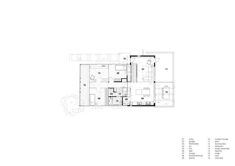
A discreet side entry provides functional access to the cottage without compromising the street frontage's openness. This circulation strategy solves a common planning challenge: how to provide practical access while maintaining an inviting public face. The entry serves daily family routines efficiently while allowing the front facade to remain oriented toward neighborhood engagement rather than defensive privacy.
Visitors experience a different sequence. Rather than entering directly into private family spaces, they follow a lush garden path that guides them along the site's edge toward the home's social heart at the rear. This processional approach creates anticipation, provides gradual transition from public to private realms, and showcases the landscape's role in shaping spatial experience. The journey prepares guests mentally and emotionally for arrival at the main living spaces, making entry feel like a special event rather than an abrupt threshold crossing.

Vertical Strategy: Building Up, Not Out
The site's constraints necessitated a fundamental shift in planning strategy. Rather than sprawling horizontally—an impossibility given the compact footprint—the design unfolds vertically, favoring volume over plan area. This vertical approach generates its own opportunities and challenges, requiring careful consideration of circulation, natural light penetration, acoustic separation, and spatial flow.
The new addition, constructed as a contemporary intervention distinct from the heritage cottage, houses the home's primary social and private functions across multiple levels. The ground floor accommodates kitchen and living spaces—the zones of daily gathering, meal preparation, and informal family interaction. These spaces open onto a northeast-facing courtyard, extending the perceived and usable floor area significantly through indoor-outdoor integration.

Above this social level rises the parents' retreat—a lofted sanctuary that provides adults with necessary privacy and separation from children's activities below. This vertical separation creates acoustic buffering while maintaining visual and circulatory connections through the central stair void. Parents can retreat to their suite while remaining aware of household activities, achieving the balance between togetherness and solitude essential for family harmony.
Beneath the cottage level, a discreet secondary dwelling occupies what might otherwise be unusable space on the sloping site. This accessory unit adds programmatic flexibility, potentially accommodating extended family, generating rental income, or serving as guest quarters. Its inclusion demonstrates resourceful use of every cubic meter of site volume while contributing to urban density goals that support more efficient city structure.
The Triple-Height Stair: Light Well and Connective Spine
Perhaps the most dramatic spatial element in Tighty Whitey House is the triple-height stair that acts as both circulation spine and light well. This vertical void pulls daylight deep into the home's interior, addressing one of the primary challenges in narrow urban houses: how to illuminate central spaces that lack direct access to external walls.
The stairwell functions as a vertical courtyard, creating a light shaft that captures sun at high angles and distributes it throughout the day. As light moves across the sky, it enters the stair void differently, creating temporal variation that animates the interior and maintains connection to daily and seasonal cycles. This dynamic quality prevents the repetitive sameness that can characterize artificially lit interiors.

Beyond its practical function delivering light, the triple-height void serves crucial perceptual and psychological roles. It creates spatial drama and vertical legibility, allowing occupants to understand the home's three-dimensional organization intuitively. Standing at ground level and looking upward, residents perceive the full vertical extent of their dwelling—a spatial generosity that contradicts the modest plan dimensions.
The stair itself becomes architectural sculpture. Custom joinery along its edges provides display opportunities, book storage, and concealed cupboards, transforming circulation into multi-functional space. The careful detailing of treads, balustrades, and adjacent walls creates visual rhythm and tactile interest, making the daily ritual of vertical movement an aesthetic experience rather than merely functional necessity.
Custom Joinery and Spatial Layering
Throughout Tighty Whitey House, custom joinery performs crucial roles in creating spatial generosity within tight dimensions. Built-in elements maximize storage capacity while maintaining clean lines and uncluttered surfaces. Every shelf, drawer, and cupboard reflects careful consideration of the family's actual possessions and daily routines.

In the kitchen, custom cabinetry integrates appliances seamlessly while providing abundant storage for food, equipment, and tableware. Work surfaces position themselves at ergonomically appropriate heights, supporting meal preparation efficiency. The joinery's timber materiality brings warmth to what could otherwise feel clinical, while its precision detailing demonstrates high craft standards.
Throughout other spaces, built-in elements respond to specific functional requirements: coat storage near entries, linen cupboards adjacent to bathrooms, display niches for meaningful objects, and concealed storage that maintains visual simplicity. This approach recognizes that successful small homes require everything to have its place—clutter rapidly overwhelms compact spaces, so generous, well-organized storage becomes essential rather than optional.

Spatial layering works in concert with custom joinery to create complexity within limited floor area. Rather than simple rectangular rooms, the architecture employs level changes, partial-height walls, sliding screens, and varied ceiling heights to create zones within larger volumes. These strategies generate privacy, acoustic separation, and functional differentiation without requiring full-height walls that would fragment space and block light.
Indoor-Outdoor Integration: The Northeast Courtyard
The northeast-facing courtyard represents a crucial component of the home's spatial and environmental strategy. This outdoor room extends living space significantly, providing an additional zone for dining, relaxation, and children's play that expands the home's effective area beyond its modest built footprint.

The courtyard's orientation maximizes solar access during cooler months while its green boundaries provide shading during Brisbane's intense summers. This landscape buffer serves multiple purposes: it offers visual privacy from neighboring properties, creates comfortable microclimate through evapotranspiration, and provides aesthetic pleasure through seasonal change and botanical variety.
Large sliding or folding glazed doors—the architectural drawings and photographs suggest generous openings—create flexible thresholds between interior and courtyard. During Brisbane's famously pleasant winter and spring months, these doors can remain fully open, transforming living spaces into pavilions within the garden. The boundary between inside and outside dissolves, allowing the home to breathe and expanding perceived spaciousness dramatically.

Dining experiences shift between fully interior during rare cold or wet weather, threshold positions that engage both zones, and fully exterior during optimal conditions. This flexibility responds to Brisbane's climate and lifestyle expectations while avoiding the environmental and spatial waste of building unnecessarily large interior volumes.
Passive Environmental Design
Tighty Whitey House achieves environmental responsiveness through passive design principles rather than technological complexity or expensive mechanical systems. This approach aligns with sustainability theory that emphasizes reducing energy demand before specifying equipment to meet it.
Solar orientation drives the fundamental planning strategy. Primary living spaces and the courtyard face northeast, capturing morning sun for natural awakening and breakfast enjoyment while avoiding the harsh western afternoon sun that characterizes Brisbane's climate. This orientation provides winter solar access for passive heating while facilitating shading strategies during summer.

Cross ventilation harnesses Brisbane's prevailing breezes for natural cooling. The narrow floor plan and generous openings on multiple facades allow air to flow through the home, removing heat and maintaining comfort without air conditioning during much of the year. The triple-height stair void enhances this effect through stack ventilation, where warm air rises and exits at high levels, drawing cooler air through lower openings.
Shading strategies—including the courtyard's green boundaries, eaves, and potentially external blinds or screens—prevent unwanted solar gain during summer months. These passive elements require no energy input and minimal maintenance while significantly reducing cooling loads. The approach demonstrates environmental sophistication through architectural means rather than technical equipment.

Thermal mass in floor slabs and masonry elements moderates internal temperature fluctuations, absorbing heat during the day and releasing it during cooler evening hours. This passive temperature regulation reduces heating and cooling energy requirements while maintaining comfortable conditions throughout daily cycles.
Material Palette: Honesty and Texture
The material strategy distinguishes clearly between heritage and contemporary elements while maintaining overall coherence. The restored cottage retains its original weatherboard cladding—a delicate, textured surface that displays the marks of time and traditional carpentry techniques. This materiality speaks to Queensland's vernacular building traditions and the cottage's working-class origins.
In deliberate contrast, the contemporary addition employs crisp white steel cladding beneath a singular gable roof. This modern material provides durability, fire resistance, and low maintenance while its clean lines and bright surface create striking contrast with the cottage's more intimate scale and texture. The white steel reflects heat, contributing to environmental performance, while its industrial character suits Brisbane's increasingly urban identity.

The gable roof form references traditional Queensland housing typologies without resorting to pastiche. The simple, clear geometry creates visual unity while accommodating ceiling height variations internally. This formal restraint demonstrates confidence—the architecture doesn't need complex shapes or excessive articulation to achieve impact.
Interior materials emphasize natural textures and honest expression. Timber appears throughout—in flooring, joinery, stair treads, and wall linings—bringing warmth and tactility that softens the geometry's rigor. The timber will patina over time, developing character that reflects the family's occupation and care.
Steel elements—exposed structural columns, stair balustrades, shelving supports—remain visible rather than concealed, celebrating the building's tectonic logic. These elements read honestly, showing how loads transfer and how components connect.

Limewash finishes on walls provide subtle texture and depth that conventional flat paint cannot match. The slight irregularity and breathability of limewash suits the project's aesthetic of material authenticity and creates surfaces that improve with age rather than deteriorating.
This material palette embraces imperfection and temporal change. Rather than pursuing pristine surfaces requiring constant maintenance, the architecture accepts that homes evolve through use, acquiring the marks of daily life. This philosophy aligns with sustainable thinking—buildings designed to improve through patina encourage long-term preservation rather than cycles of replacement.
Secondary Dwelling: Density with Dignity
The inclusion of a secondary dwelling beneath the cottage addresses Brisbane's housing affordability crisis while demonstrating how compact sites can contribute to urban consolidation goals. This accessory unit provides independent accommodation with its own entry, basic facilities, and privacy from the main residence.
The secondary dwelling's potential uses vary with family circumstances. It might house an adult child maintaining independence while living affordably, accommodate an elderly parent requiring support but desiring autonomy, or generate rental income that helps finance the primary residence. This flexibility ensures the home can adapt to changing family structures and economic pressures.

From an urban planning perspective, the secondary dwelling increases site density without additional land consumption—precisely the approach cities need to accommodate population growth sustainably. Rather than sprawling onto greenfield sites at the urban fringe, this infill strategy uses existing infrastructure more efficiently while supporting vibrant, walkable neighborhoods.
The dwelling's discrete integration prevents it from compromising the primary residence's amenity or creating neighborhood amenity impacts. Careful planning ensures adequate separation, acoustic buffering, and independent access. This demonstrates that density can be elegant and dignified rather than compromised or exploitative.
Human-Centered Design: Supporting Family Rituals
Throughout Tighty Whitey House, design decisions reflect deep understanding of how this specific family inhabits space. The architecture supports daily rituals—morning coffee preparation, children's homework sessions, evening meal sharing, bedtime routines—through careful spatial configuration and equipment provision.
Spaces for gathering accommodate the family as a unit, with kitchen and dining areas sized to include everyone comfortably during meals and shared activities. The open plan facilitates supervision of young children while parents attend to other tasks, supporting the multi-tasking that characterizes family life.
Equally important are spaces for retreating—individual bedrooms allowing privacy and personal expression, the parents' lofted suite providing adult sanctuary, and varied spaces throughout where family members can pursue independent activities while remaining connected to household rhythms.
All the Photographs are works of Toby Scott
Popular Articles
Popular articles from the community
A Contemporary Take on Iranian Residential Architecture
A modern interior design in Mashhad that reinterprets brick, light, and spatial flow to create a warm, contemporary residential architecture.
Atelier Macri Concept Store Interior Design by CASE-REAL
Atelier Macri store features a "ko" counter, walnut wood details, cork displays, blending retail, gallery, and seamless customer experiences.
Inverted Architecture Installation by Studio Link-Arc: Exploring the Intersection of Architecture and Living Organisms
Inverted Architecture Installation by Studio Link-Arc blends mycelium, sustainability, inverted design, ecological cycles, and urban adaptive architecture in Shenzhen.
On the Brooks House by Monsoon Collective – A Contemporary Kerala Home Rooted in Tradition
Kerala home blending tradition and modernity with water-inspired design, brick architecture, courtyard planning, and sustainable rainwater harvesting strategies.
Similar Reads
You might also enjoy these articles
The Ken Roberts Memorial Delineation Competition (Krob)
As the most senior architectural drawing competition currently in operation anywhere in the world, it draws hundreds of entries each year, awarding the very best submissions in a series of medium-based categories.
Waterfront Redevelopment and Urban Revitalization in Mumbai: Forging a New Dawn for Darukhana
A transformative waterfront redevelopment project reimagining Darukhana’s shipbreaking heritage into an inclusive urban future.
OUT-OF-MAP: A Call for Postcards on Feminist Narratives of Public Space
Rhizoma Design and Research Lab invites artists, designers, architects, researchers, and students to reflect on how feminist perspectives can reshape public space. Selected works will be exhibited in Barcelona, October 2026. Submissions open until 15 April 2026.
Documentation Work on Buddhist Wooden Temple
Architectural syncretism and cultural hybridity: A comparative study of the Buddhist temples in Chattogram Hill tracks
Explore Architecture Competitions
Discover active competitions in this discipline
The International Standard for Design Portfolios
The Global Benchmark for Architecture Dissertation Awards
The Global Benchmark for Graduation Excellence
Challenge to reimagine the Iron Throne
Comments (0)
Please login or sign up to add comments
No comments yet. Be the first to comment!