TOILETOWA W.C.: A Paradigm of Eco-Friendly Public Architecture
The article explores TOILETOWA W.C., a pioneering example of eco-friendly public architecture that integrates innovative recycling and water treatment systems.
In the heart of Miyoshi, Japan, the TOILETOWA W.C. stands as a testament to the innovative possibilities within eco-friendly public architecture. Designed by Tono Mirai Architects, this project goes beyond mere functionality to serve as an educational space that promotes environmental sustainability and recycling.




Design Philosophy of TOILETOWA W.C.
Sustainable Building Practices
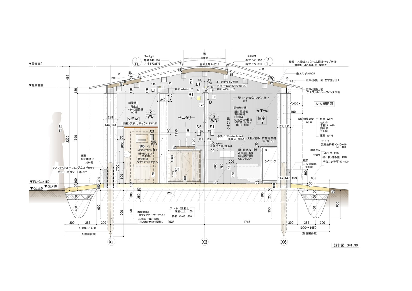
TOILETOWA W.C. embodies the principles of circular economy and regeneration. The project was constructed with minimal environmental impact in mind, utilizing recycled materials and local resources. The building itself is primarily made of a unique rammed earth wall consisting of recycled soil, highlighting the project's commitment to "building from the earth."




Integration with the Natural Environment
Located adjacent to the lush forests of Miyoshi, the design of TOILETOWA incorporates the existing landscape into its structure. The building's foundation uses crushed stone instead of concrete and features wooden stakes, minimizing its ecological footprint and blending seamlessly with its surroundings.


Innovative Features of TOILETOWA W.C.
Wastewater Treatment and Reuse
One of the most groundbreaking aspects of TOILETOWA W.C. is its approach to wastewater. Utilizing a combined fermentation system developed by Dr. Yasuhide Takashima, the toilet's wastewater is treated to the point of being drinkable. This system not only recycles wastewater but also uses it to irrigate the surrounding garden crops, showcasing a perfect cycle of water use.


Material Use and Architectural Techniques
The project utilizes almost entirely recycled materials for construction, including the internal structures and fixtures. Recycled wood chips are used for toilet and washbasin bowls, while the interior walls and floors are made from recycled soil, wood, and glass. The use of traditional Japanese plastering techniques enhances the building's ecological ethos and aesthetic appeal.




Environmental Impact and Educational Role
Regenerating the Local Ecosystem
TOILETOWA W.C. extends its sustainable impact beyond the building itself into the surrounding forest. The construction involved regenerating weakened forest soil and integrating plants and organic materials to rejuvenate the land's natural ecosystem. This not only supports local flora and fauna but also educates the public on the importance of environmental stewardship.

A Model for Future Public Architecture
As an environmental education space, TOILETOWA W.C. serves as a model for future eco-friendly public architecture projects. It demonstrates how public buildings can play a crucial role in educating communities about sustainable practices and the importance of recycling and regeneration in architecture.






The Future of Eco-Friendly Architecture
TOILETOWA W.C. by Tono Mirai Architects redefines the possibilities of public architecture. With its innovative use of materials, commitment to environmental regeneration, and role as an educational space, this project paves the way for future developments in eco-friendly public architecture. It stands as a beacon of sustainability, demonstrating that even small-scale projects can have a profound impact on environmental conservation and education.





All photographs are work of takeshi noguchi
Popular Articles
Popular articles from the community
boq architekti Fits a Gabled Family House onto a Tiny Moravian Hillside Plot with No Room for a Garden
A 115 square meter home in South Moravia trades a garden for a rooftop terrace and a fully glazed facade facing the village below.
20 Most Popular Furniture Design Projects of 2025
Modular street systems, parametric benches, and insect hotels: the furniture design projects that captivated architects on uni.xyz in 2025.
Studio Gram Unfurls a Concrete Curve Through an Adelaide Queen Anne Villa
In Rose Park, a billowing concrete threshold stitches a century-old house to a sun-chasing pavilion organized around an existing pool.
Biophilic Architecture and Regenerative Stadium Design: Biophilia Lagos by Rachel George
A regenerative stadium in Lagos transforms landfill into a living ecosystem through biophilic architecture, waste reuse, and environmental healing.
Similar Reads
You might also enjoy these articles
Olio Towers: A Mid-Rise for Performers That Fuses Housing, Rehearsal, and Stage
Located blocks from Houston's Theater District, this modular tower stacks living units around a central performance atrium.
Oasis: Modular Green Housing Carved into Dhaka's Urban Fabric
A shortlisted Plugin Housing entry reclaims unauthorized settlements in Dhaka with stepped concrete volumes, green roofs, and ventilation-driven design.
Black Hole: A Floating Megastructure for the Post-Physical Era
Emiliano Mazzarotto envisions a spherical, self-scaling arena where e-sports, digital hotels, and holographic stadiums replace traditional public space.
Compact & Sustainable Living in Piraeus: A Four-Level Family Home Built Around Light and Air
A narrow townhouse in one of Greece's densest port cities uses a central atrium and passive strategies to house three generations under one roof.
Explore Architecture Competitions
Discover active competitions in this discipline
The International Standard for Design Portfolios
The Global Benchmark for Architecture Dissertation Awards
The Global Benchmark for Graduation Excellence
Challenge to reimagine the Iron Throne
Comments (0)
Please login or sign up to add comments
No comments yet. Be the first to comment!