Toulouse ZAC Saint-Martin Residential Complex: Redefining Sustainable Urban Living
A sustainable residential complex in Toulouse combining modern architecture, green design, and community-centered urban living.
The Toulouse ZAC Saint-Martin Residential Complex, designed by Aldric Beckmann Architectes, offers a model of sustainable and community-focused urban development. Located in Toulouse, France, this 4,120 m² residential project integrates innovative architectural design, environmental consciousness, and cohesive urban planning to create a vibrant and functional living environment.





A Gateway to the Ramassiers Neighborhood
The project is strategically positioned at the entrance to the developing Ramassiers neighborhood, bridging economic hubs and residential zones. Bordered by landscaped spaces and adjacent to a future pedestrian pathway, the complex is deeply embedded in a growing urban fabric.






Preserving Heritage
A historic dovecote on the site has been carefully restored, serving as a centerpiece for shared communal spaces. This nod to the past connects residents to the area's historical memory.





Design Philosophy
Creating a Green Oasis
The project centers around lush gardens and green facades, forming a natural heart for the complex. The blend of greenery with architectural elements enhances environmental sustainability while fostering a sense of tranquility for residents.





Innovative Plot Planning
The 63 dwellings are distributed across six independent plots of varying heights. This approach provides a harmonious transition between the larger collective housing units and the smaller single-family homes, enhancing the residential area's overall cohesiveness.



Architectural Features
Elevated Pathways and Optimized Circulation
The design emphasizes efficient vertical circulation with two main buildings connected by elevated pathways. This innovation liberates ground-level space for communal areas while offering seamless access to apartments.




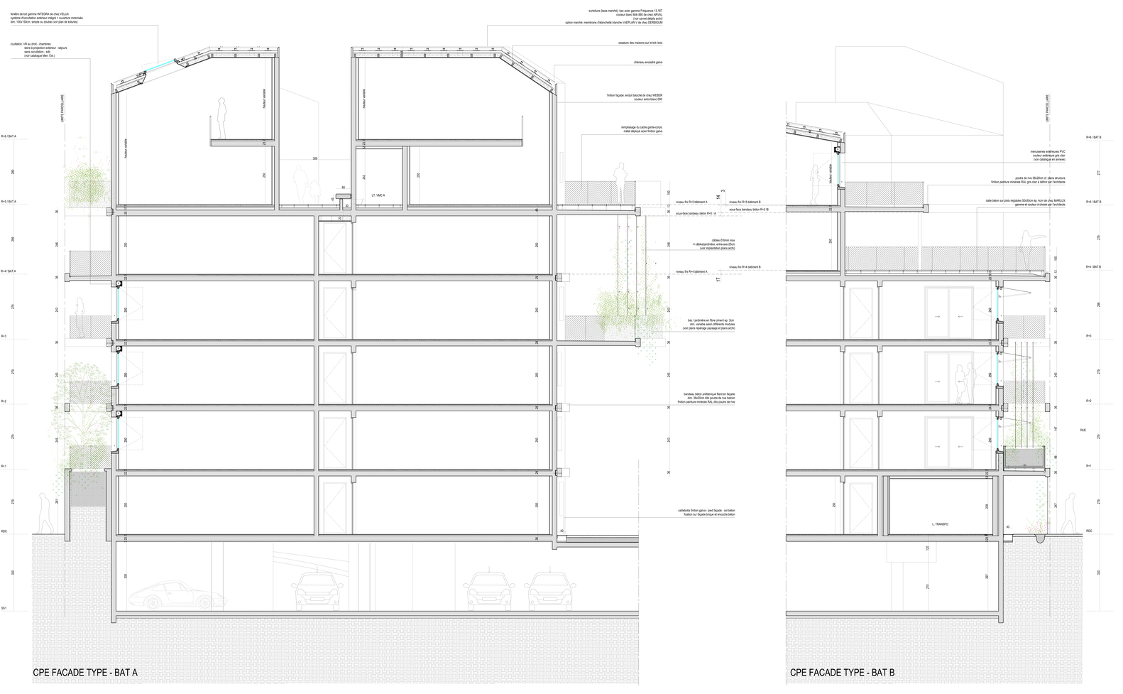
Sustainable Materials and Techniques
The construction employs honeycomb bricks, locally sourced for their affordability and high performance. This material choice aligns with the project's commitment to sustainability and achieving high environmental certifications, such as Qualitel BBC Effinergie.




Integration with the Urban Fabric
Connection to Public Infrastructure
The project benefits from its proximity to transportation networks, including the Arc-en-Ciel ring road and Line C of the public transit system. This connectivity underscores the development's strategic location within Toulouse's urban landscape.




A Gradual Transition
The design balances density by gradually transitioning from single-family homes to medium and collective housing units. This thoughtful arrangement ensures harmony between the residential area and the larger urban development zone.




Community and Social Interaction
Shared Spaces and Social Activities
The project fosters a strong sense of community by incorporating shared spaces and promoting social interaction. The central park, green corridors, and communal facilities create opportunities for residents to connect.

Enhancing Livability
With its emphasis on sustainable design, efficient layouts, and communal amenities, the complex delivers a high quality of life for its residents while aligning with broader urban development goals.
The Toulouse ZAC Saint-Martin Residential Complex exemplifies a modern approach to urban living by seamlessly integrating sustainability, heritage, and community engagement. As a gateway to the evolving Ramassiers neighborhood, the project sets a benchmark for architectural excellence and thoughtful urban planning.
All the photographs are work of Laurent Gueneau
Popular Articles
Popular articles from the community
BICA Arquitectos Buries a Coastal Home in a Man-Made Dune on Portugal's Tróia Peninsula
A 300-square-meter house of timber, sand mortar, and travertine dissolves into the dune landscape it helped regenerate on the Alentejo coast.
Paco Oria Estudio Rebuilds a 1949 Valencian Town House Around Timber, Terracotta, and a New Interior Patio
In Godella, Spain, a semi-detached house from the postwar era is stripped to its party walls and rebuilt with wood and ceramics.
H&P Architects Stack a Vertical River of Brick and Greenery in Hanoi
A perforated terracotta tower in Dong Anh channels water, light, and air through eight staggered levels of domestic life.
1-1 Architects Builds a Nagoya House and Office from Decades of Stockpiled Timber
A 69-square-meter tower in dense residential Nagoya transforms surplus lumber into a home and workplace for a construction company.
Similar Reads
You might also enjoy these articles
Olio Towers: A Mid-Rise for Performers That Fuses Housing, Rehearsal, and Stage
Located blocks from Houston's Theater District, this modular tower stacks living units around a central performance atrium.
Oasis: Modular Green Housing Carved into Dhaka's Urban Fabric
A shortlisted Plugin Housing entry reclaims unauthorized settlements in Dhaka with stepped concrete volumes, green roofs, and ventilation-driven design.
Black Hole: A Floating Megastructure for the Post-Physical Era
Emiliano Mazzarotto envisions a spherical, self-scaling arena where e-sports, digital hotels, and holographic stadiums replace traditional public space.
Compact & Sustainable Living in Piraeus: A Four-Level Family Home Built Around Light and Air
A narrow townhouse in one of Greece's densest port cities uses a central atrium and passive strategies to house three generations under one roof.
Explore Architecture Competitions
Discover active competitions in this discipline
The International Standard for Design Portfolios
The Global Benchmark for Architecture Dissertation Awards
The Global Benchmark for Graduation Excellence
Challenge to reimagine the Iron Throne
Comments (0)
Please login or sign up to add comments
No comments yet. Be the first to comment!