Transformation of a Protected Barn by Simon Durand Architecte: Reviving Heritage with Contemporary Design
A 17th-century Swiss barn transformed by Simon Durand architecte into a modern glazed dwelling, blending heritage preservation with contemporary design.
Preserving Heritage Through Adaptive Reuse
The Transformation of a Protected Barn by Simon Durand architecte in Cottens, Switzerland, showcases how contemporary architecture can coexist with historic structures. This project exemplifies adaptive reuse, breathing new life into a 17th-century agricultural barn while preserving its identity and cultural significance.
Within a building where no line runs straight, the architect introduced a wooden box with fully glazed facades, designed as a self-contained apartment. This intervention respects the barn’s original framework while giving it a new purpose as a modern dwelling.

Balancing Old and New
The design approach carefully echoes traditional Swiss agricultural construction while reinterpreting architectural archetypes for residential use. The barn’s massive wooden frame remains the centerpiece, enhanced by a glazed inner structure that stands back 4 meters from the original envelope.
This deliberate offset creates covered terraces and in-between spaces that extend the living area, blurring the boundaries between indoor and outdoor life. These sheltered zones provide flexible spaces for relaxation, gardening, or seasonal gatherings, reinforcing the barn’s role as a dynamic living environment.


Spatial Experience: Between Interior and Exterior
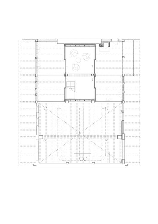
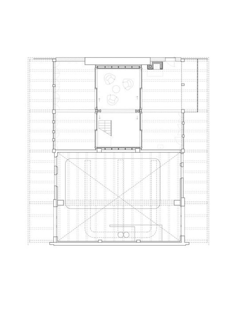
The apartment revolves around two distinct levels:
- The main living space, with a ceiling height of 3.15 meters, accessed via a newly built external bridge. This space feels expansive and open, ideal for social life.
- The lower floor, with a more intimate height of 2.09 meters, designed to foster privacy and comfort.
When the sliding windows are opened, the dwelling transforms into a hybrid environment—neither fully inside nor entirely outside. This fluidity allows the space to adapt with the changing seasons and daily rhythms.


Light, Transparency, and Historical Frame
One of the project’s most striking features is its interaction with light. Natural daylight filters through the glass facades, revealing the barn’s original wooden frame while creating shifting atmospheres throughout the day. From the outside, only subtle glass reflections hint at the transformation within, allowing the barn’s historical presence to remain dominant in the rural landscape.
The bedrooms are positioned further back, concealed behind a large timber facade yet still connected to the terraces. At the heart of the design, the bathroom occupies a reimagined “terminal”—a trapezoidal vertical shaft traditionally used to dry food. This element now opens onto a window, once again exposing the historical framework and merging the old with the new.


Flexibility and Movement
The barn is not a static structure but a fluid and flexible living space. The kitchen is mobile, able to shift based on need. The stair hatch folds down to create new spatial connections. The barn’s design reflects a living architecture, one that responds to the seasons, the residents’ habits, and the environment.


A Dialogue Between Past and Present
The Transformation of a Protected Barn is a powerful example of how architecture can bridge heritage and modernity. By preserving the 17th-century wooden frame and introducing a minimal yet expressive glazed structure, Simon Durand architecte creates a dialogue between the past and the present.
The result is a home of unexpected proportions, where historic materials and contemporary design intersect, and where the boundaries of inside and outside dissolve into new possibilities.



All the photogaphs are works of Alan Hasoo
Popular Articles
Popular articles from the community
TGK Nirasaki Plant: A Smart Factory Blending Technology, Landscape, and Wellness
Smart factory in Japan blending IoT manufacturing, scenic trail design, natural ventilation, and landscape integration to enhance user experience and sustainability.
Filtering Space: A Gradual Spatial Experience
From urban intensity to spatial calm.
Free Architecture Competitions You Can Enter Right Now
No entry fees, real prizes. Here are the best free architecture competitions open for submissions in 2026.
Similar Reads
You might also enjoy these articles
Filtering Space: A Gradual Spatial Experience
From urban intensity to spatial calm.
The Ken Roberts Memorial Delineation Competition (Krob)
As the most senior architectural drawing competition currently in operation anywhere in the world, it draws hundreds of entries each year, awarding the very best submissions in a series of medium-based categories.
Waterfront Redevelopment and Urban Revitalization in Mumbai: Forging a New Dawn for Darukhana
A transformative waterfront redevelopment project reimagining Darukhana’s shipbreaking heritage into an inclusive urban future.
OUT-OF-MAP: A Call for Postcards on Feminist Narratives of Public Space
Rhizoma Design and Research Lab invites artists, designers, architects, researchers, and students to reflect on how feminist perspectives can reshape public space. Selected works will be exhibited in Barcelona, October 2026. Submissions open until 15 April 2026.
Explore Architecture Competitions
Discover active competitions in this discipline
The International Standard for Design Portfolios
The Global Benchmark for Architecture Dissertation Awards
The Global Benchmark for Graduation Excellence
Challenge to reimagine the Iron Throne
Comments (0)
Please login or sign up to add comments
No comments yet. Be the first to comment!