Transforming Learning Environments: The FUTIAN High-School Campus by reMIX studio
Discover the FUTIAN High-School Campus by reMIX studio, a model of urban educational architecture integrating school and community in Shenzhen.
Located in the heart of Shenzhen, China, the FUTIAN High-School Campus serves as a pioneering example of urban educational architecture. Developed by reMIX studio, this project redefines the traditional school campus in one of the world's most rapidly urbanized cities.







Design Philosophy of FUTIAN High-School Campus
Integrating the Campus with the City
FUTIAN High-School is designed as a "new city within the city," blending the school environment with the urban fabric of Shenzhen. This integration facilitates a unique dialogue between the school and its surrounding community, transforming the campus into a public civic space.







Architectural Strategy
The campus is strategically positioned to connect with various urban elements—from the green reserve lands of Hong Kong to the dense urban village of Futian. High-rise structures on the site align with Shenzhen's skyline, while lower density areas transition smoothly into public parks, embodying a thoughtful urban strategy.







Key Features of FUTIAN High-School Campus
Sustainable and Responsive Design
FUTIAN campus employs a design that is both sustainable and responsive to its high-density environment. The school buildings focus outwards, offering stunning views of the city and encouraging interaction between the students and their urban surroundings.







Shared Facilities and Public Engagement
A distinctive feature of the campus is its approach to shared facilities. Sports fields, courts, and an auditorium are designed to be accessible to both students and the local community, promoting a blend of educational and public functions.












Community Impact and Educational Enhancement
A School Without Fences
Breaking away from traditional enclosed campuses, FUTIAN High-School employs a transparent façade along major roadways, inviting public interaction and making educational facilities accessible to neighbors. This design extends the educational environment beyond its physical boundaries and integrates it with the urban community.










Educational Spaces as Civic Hubs
The campus layout fosters a unique educational experience, with courtyards and open spaces that encourage informal interactions and spontaneous educational activities. These spaces are not only functional but also serve as civic hubs during non-school hours, enhancing community engagement.









The Future of Urban Educational Architecture
The FUTIAN High-School Campus by reMIX studio is more than just an educational facility; it is a beacon of urban educational architecture. With its innovative design that embraces urban challenges and opportunities, the campus sets a new standard for schools in metropolitan areas worldwide. It exemplifies how educational buildings can effectively contribute to and enhance the urban landscape.








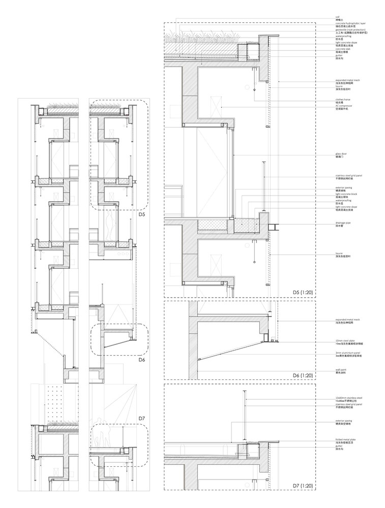
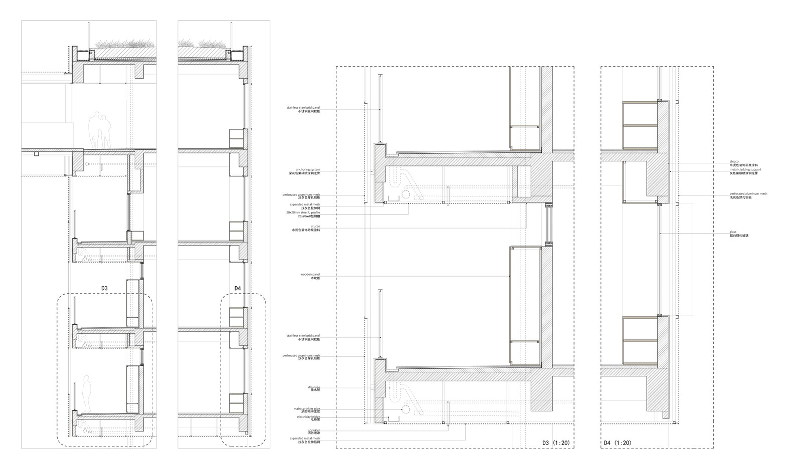
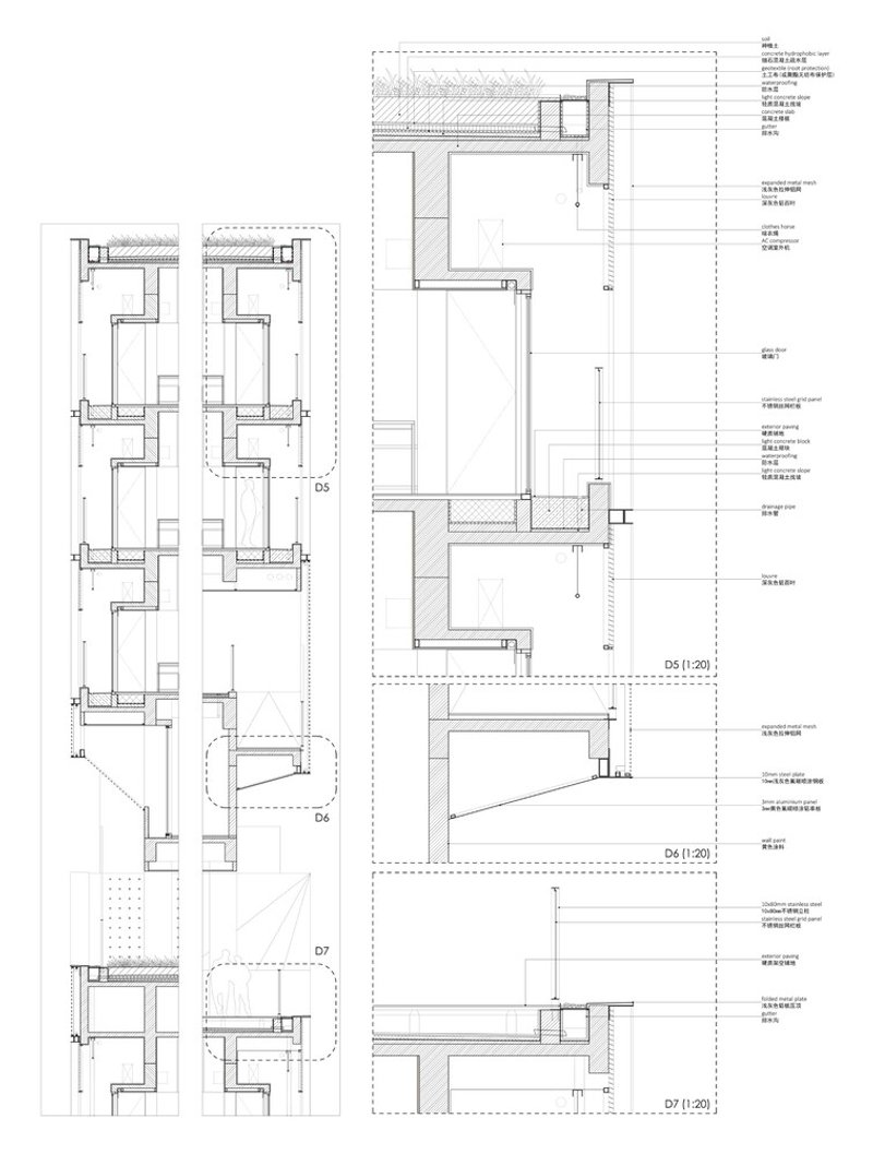
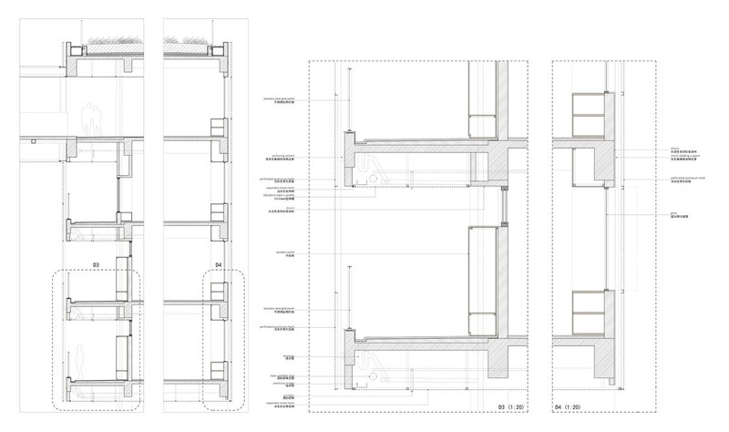
All the photographs are work of Kangyu Hu, Chao Zhang
Popular Articles
Popular articles from the community
Inverted Architecture Installation by Studio Link-Arc: Exploring the Intersection of Architecture and Living Organisms
Inverted Architecture Installation by Studio Link-Arc blends mycelium, sustainability, inverted design, ecological cycles, and urban adaptive architecture in Shenzhen.
Treehouse Apartment: A Warm Timber Interior Blending Craft, Play, and Contemporary Living
Warm timber apartment with integrated treehouse, combining natural materials, craftsmanship, and playful design to create a flexible, family-oriented living environment.
Atelier Macri Concept Store Interior Design by CASE-REAL
Atelier Macri store features a "ko" counter, walnut wood details, cork displays, blending retail, gallery, and seamless customer experiences.
An Miên Lumière Cafe by xưởng xép, Ho Chi Minh City, Vietnam
An industrial-inspired café where layered steel and warm light create a dynamic, immersive environment shaped by reflection, depth, and perception.
Similar Reads
You might also enjoy these articles
The Ken Roberts Memorial Delineation Competition (Krob)
As the most senior architectural drawing competition currently in operation anywhere in the world, it draws hundreds of entries each year, awarding the very best submissions in a series of medium-based categories.
Waterfront Redevelopment and Urban Revitalization in Mumbai: Forging a New Dawn for Darukhana
A transformative waterfront redevelopment project reimagining Darukhana’s shipbreaking heritage into an inclusive urban future.
OUT-OF-MAP: A Call for Postcards on Feminist Narratives of Public Space
Rhizoma Design and Research Lab invites artists, designers, architects, researchers, and students to reflect on how feminist perspectives can reshape public space. Selected works will be exhibited in Barcelona, October 2026. Submissions open until 15 April 2026.
Documentation Work on Buddhist Wooden Temple
Architectural syncretism and cultural hybridity: A comparative study of the Buddhist temples in Chattogram Hill tracks
Explore Architecture Competitions
Discover active competitions in this discipline
The International Standard for Design Portfolios
The Global Benchmark for Architecture Dissertation Awards
The Global Benchmark for Graduation Excellence
Challenge to design public laboratory
Comments (0)
Please login or sign up to add comments
No comments yet. Be the first to comment!