Transforming Space: The Modern Apartment Interior Design of The Baronesa Apartment by Lucia Manzano Arquitetura + Paisagismo
Discover The Baronesa Apartment's transformation in Brazil, featuring modern interior design and innovative solutions by Lucia Manzano Arquitetura + Paisagismo.
Modern apartment interior design focuses on maximizing space and enhancing aesthetic appeal through minimalistic yet functional layouts. The Baronesa Apartment in Higienopolis, Brazil, is a perfect illustration of how thoughtful design can transform a conventional apartment into a vibrant, contemporary living space.



Design Objectives and Challenges
Creating a Flexible Kitchen Space
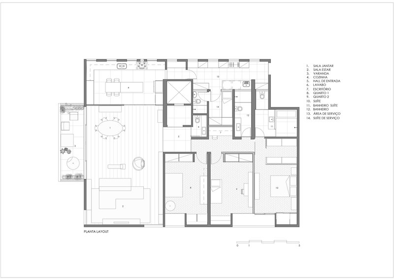
The main goal for The Baronesa Apartment renovation was to create a kitchen that could be both an open plan connected to the living area and an enclosed space when needed. This was achieved by integrating a sliding door system that allows for flexibility, providing openness or privacy according to the residents' daily activities.



Living Room Layout Optimization
The unique square layout of the living room posed a challenge. The solution was to install a double sofa arrangement, effectively dividing the room into a TV area and a lounge space. This setup ensures that the room fulfills multiple functions while maintaining comfort and style.



Key Features and Design Elements
Balcony Integration
The balconies are central to the apartment’s design, serving as extended living spaces that enhance social interactions. The design strategically positions the living room to flow seamlessly onto the balcony, creating an inviting area for gatherings.



Bespoke Storage Solutions
Addressing the need for ample storage, a custom woodworking bookshelf was designed to not only store books and decor items efficiently but also to visually connect and harmonize the living spaces within the apartment.



Decor and Furnishing
Minimalist and Inviting Style
The apartment’s decor features a blend of contemporary Brazilian furniture and classic Scandinavian design elements. Notable pieces include the Lego sofa from Estúdio Bola and the C26 armchair from Carbono, paired with the iconic Saarinen table and Series 7 chairs by Arne Jacobsen. This mix fosters a modern, minimalist aesthetic that emphasizes lightness and harmony.



Master Bedroom Design
In the master bedroom, the design continues the apartment’s color scheme of white, wood, and cement. The headboard with a burnt cement texture, alongside wooden floors and bedside tables, creates a serene and welcoming atmosphere. A unique green curtain made of hanging plants not only ensures privacy but also adds a touch of nature to the room.





The Impact of Modern Interior Design on Living Spaces
The renovation of The Baronesa Apartment by Lucia Manzano Arquitetura + Paisagismo showcases the profound impact of modern apartment interior design. Through innovative solutions like the sliding kitchen door and strategic furniture placement, combined with a harmonious decor scheme, the apartment exemplifies how modern design can transform everyday living spaces into stylish, functional homes.

All photographs are work of Maura Mello
Popular Articles
Popular articles from the community
Treehouse Apartment: A Warm Timber Interior Blending Craft, Play, and Contemporary Living
Warm timber apartment with integrated treehouse, combining natural materials, craftsmanship, and playful design to create a flexible, family-oriented living environment.
On the Brooks House by Monsoon Collective – A Contemporary Kerala Home Rooted in Tradition
Kerala home blending tradition and modernity with water-inspired design, brick architecture, courtyard planning, and sustainable rainwater harvesting strategies.
An Miên Lumière Cafe by xưởng xép, Ho Chi Minh City, Vietnam
An industrial-inspired café where layered steel and warm light create a dynamic, immersive environment shaped by reflection, depth, and perception.
Flamboyant House by Juliana Camargo + Prumo Projetos
Modern Brazilian house integrating existing tree, pool, and volumes with glass, wood, and transitional spaces blending interior, exterior, and landscape seamlessly.
Similar Reads
You might also enjoy these articles
The Ken Roberts Memorial Delineation Competition (Krob)
As the most senior architectural drawing competition currently in operation anywhere in the world, it draws hundreds of entries each year, awarding the very best submissions in a series of medium-based categories.
Waterfront Redevelopment and Urban Revitalization in Mumbai: Forging a New Dawn for Darukhana
A transformative waterfront redevelopment project reimagining Darukhana’s shipbreaking heritage into an inclusive urban future.
OUT-OF-MAP: A Call for Postcards on Feminist Narratives of Public Space
Rhizoma Design and Research Lab invites artists, designers, architects, researchers, and students to reflect on how feminist perspectives can reshape public space. Selected works will be exhibited in Barcelona, October 2026. Submissions open until 15 April 2026.
Documentation Work on Buddhist Wooden Temple
Architectural syncretism and cultural hybridity: A comparative study of the Buddhist temples in Chattogram Hill tracks
Explore Architecture Competitions
Discover active competitions in this discipline
The International Standard for Design Portfolios
The Global Benchmark for Architecture Dissertation Awards
The Global Benchmark for Graduation Excellence
Challenge to design luxury tourism on rails
Comments (0)
Please login or sign up to add comments
No comments yet. Be the first to comment!