Transforming Workspaces: Inside the Modern Office Design in Gangnam at Genesis Headquarters by COM
Explore Genesis Headquarters in Gangnam, showcasing modern office design that blends innovation with employee well-being and creative collaboration.
In the bustling district of Gangnam, South Korea, the new Genesis Headquarters Office stands as a paragon of modern office design. Engineered by COM, this project not only serves as the operational hub for Hyundai Motor Group's luxury brand but also as a benchmark in contemporary workspace aesthetics.


Design Philosophy and Objectives
Embracing the New Era of Workspaces
Post-COVID-19, the emphasis on workspace functionality has shifted dramatically. Genesis Headquarters by COM exemplifies this transition by morphing traditional office settings into welfare-oriented environments that prioritize the well-being of its occupants. This design initiative supports the idea that office spaces should be an extension of one’s living radius, promoting a balanced lifestyle for all members of the organization.



The Genesis and COM Collaboration
The collaboration between the Genesis Brand Space Team and COM led to the creation of a workspace that embodies the spirit of a startup, with a focus on fostering creativity and collaboration. The interior design simulates the warmth of an artisan’s studio, a place where employees feel inspired and valued.


Key Features of the Design
Innovative Use of Space
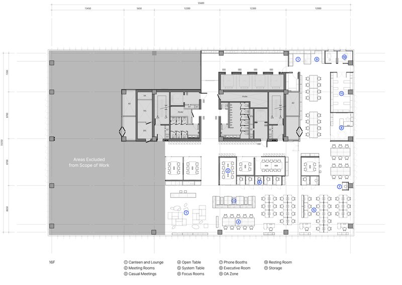
The office design by COM removes the conventional barriers of cubicles and closed workspaces, opting instead for high, loft-style ceilings and open floor plans. This design choice enhances the sense of openness and freedom, promoting a more dynamic and flexible work environment.



Lighting and Atmosphere
A standout feature in Genesis Headquarters is the innovative lighting design. The office is equipped with 400 silver pendant lights that cast a warm, inviting glow across the workspace, complementing the natural light that floods in during the day. This setup not only improves the aesthetic appeal but also contributes to a healthier work environment by reducing the harshness often associated with office lighting.


Material and Construction
Warmth Through Materials
Wooden furniture and paneling play a crucial role in the office’s design, creating a cozy atmosphere that contrasts with the modern iron structural elements. The interaction of sunlight with these materials produces dynamic shadows and textures, enriching the space with a lively, ever-changing environment.


Spatial Dynamics
COM’s design introduces various sized spaces that serve multiple functions—canteens, lounges, and informal meeting areas are interspersed with pathways that connect these zones seamlessly, enhancing both functionality and aesthetic flow.


Impact and Reception
Redefining Workplace Aesthetics
The new Genesis Headquarters in Gangnam has set a new standard for modern office design, reflecting a deep understanding of what today’s workforce desires in a workspace. The project’s completion has not only met but exceeded the expectations of both the employees and the industry, setting a new benchmark in office design.


Future of Office Design in Gangnam
As businesses continue to evolve, the Genesis Headquarters serves as a model for future office developments in Gangnam and beyond, illustrating how spaces can be designed with both style and substance to support the well-being of their users.


All photographs are work of Mihyun Son
Popular Articles
Popular articles from the community
Atelier Macri Concept Store Interior Design by CASE-REAL
Atelier Macri store features a "ko" counter, walnut wood details, cork displays, blending retail, gallery, and seamless customer experiences.
An Miên Lumière Cafe by xưởng xép, Ho Chi Minh City, Vietnam
An industrial-inspired café where layered steel and warm light create a dynamic, immersive environment shaped by reflection, depth, and perception.
Flamboyant House by Juliana Camargo + Prumo Projetos
Modern Brazilian house integrating existing tree, pool, and volumes with glass, wood, and transitional spaces blending interior, exterior, and landscape seamlessly.
The Ken Roberts Memorial Delineation Competition (Krob)
As the most senior architectural drawing competition currently in operation anywhere in the world, it draws hundreds of entries each year, awarding the very best submissions in a series of medium-based categories.
Similar Reads
You might also enjoy these articles
The Ken Roberts Memorial Delineation Competition (Krob)
As the most senior architectural drawing competition currently in operation anywhere in the world, it draws hundreds of entries each year, awarding the very best submissions in a series of medium-based categories.
Waterfront Redevelopment and Urban Revitalization in Mumbai: Forging a New Dawn for Darukhana
A transformative waterfront redevelopment project reimagining Darukhana’s shipbreaking heritage into an inclusive urban future.
OUT-OF-MAP: A Call for Postcards on Feminist Narratives of Public Space
Rhizoma Design and Research Lab invites artists, designers, architects, researchers, and students to reflect on how feminist perspectives can reshape public space. Selected works will be exhibited in Barcelona, October 2026. Submissions open until 15 April 2026.
Documentation Work on Buddhist Wooden Temple
Architectural syncretism and cultural hybridity: A comparative study of the Buddhist temples in Chattogram Hill tracks
Explore Office Building Competitions
Discover active competitions in this discipline
The International Standard for Design Portfolios
The Global Benchmark for Architecture Dissertation Awards
The Global Benchmark for Graduation Excellence
Challenge to reimagine the Iron Throne
Comments (0)
Please login or sign up to add comments
No comments yet. Be the first to comment!