Trianon Apartment Renovation: A Modernist Haven in Curitiba by Küster Brizola Arquitetos
The Trianon Apartment renovation in Curitiba blends modernist elegance with functional design, creating a light-filled and timeless home.
Transforming Space and Light in Curitiba
Located in the vibrant Batel neighborhood of Curitiba, Brazil, the 2153 ft² Trianon Apartment underwent a thoughtful renovation by Küster Brizola Arquitetos. Completed in 2023, the project redefines urban living by combining functional design with timeless aesthetics. The renovation emphasizes maximizing natural light, fostering fluidity between spaces, and curating a harmonious atmosphere with neutral tones and natural materials.




Design Approach: Integrating Light and Functionality
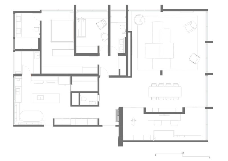
Maximizing Light in a South-Facing Apartment
One of the project's primary challenges was enhancing light flow in a south-facing façade. The architects addressed this by creating open, interconnected spaces where light from the east could travel freely. The living room, dining area, and TV room were unified, with an island-style sofa anchoring the design.



Flexible Living Spaces
An office was seamlessly integrated into part of the living room. Featuring sliding wooden doors, this versatile space transforms into a buffet for dining when closed, showcasing a clever dual-purpose design.


Art and Materials: Adding Personality and Depth
Artistic Focal Points
The apartment entrance features a striking mural by artist Rômulo Lass. This artwork connects the dining area and kitchen while cleverly concealing doors to the bathroom and pantry, adding a touch of refinement.




Marble Shard Flooring
The use of marble shard flooring in the entrance hall and kitchen enhances tactile and visual appeal. This choice ties the spaces together, creating a seamless flow between rooms.

The Heart of the Home: A Culinary Haven
Kitchen as a Central Experience
For a family passionate about cooking, the kitchen was a central focus. Designed as a modern culinary haven, it includes a "small market" concept, state-of-the-art appliances, a wine cellar, and a barbecue grill. These features combine functionality with a unique user experience.



Furniture and Finishes: Timeless Elegance
Blending Contemporary and Modernist Styles
Furniture choices mix contemporary pieces with modernist classics, such as Cimo armchairs in the living room. Neutral colors and natural materials like wood and stone contribute to a light, timeless ambiance.





Refined Material Palette
The use of natural coverings and muted tones establishes a sophisticated yet welcoming environment, reflecting a commitment to understated elegance.


A Testament to Thoughtful Design
The Trianon Apartment renovation by Küster Brizola Arquitetos demonstrates how strategic design can enhance urban living. By blending natural light, artful elements, and functional spaces, the apartment becomes a harmonious and timeless retreat in Curitiba.



All photographs are work of Eduardo Macarios
Popular Articles
Popular articles from the community
Split House: A Compact Urban Home Blending Privacy, Light, and Flexible Living in Japan
Compact Japanese home featuring DOMA space, flexible café potential, passive lighting, privacy zoning, and sustainable urban living design.
Inverted Architecture Installation by Studio Link-Arc: Exploring the Intersection of Architecture and Living Organisms
Inverted Architecture Installation by Studio Link-Arc blends mycelium, sustainability, inverted design, ecological cycles, and urban adaptive architecture in Shenzhen.
Fifth NRE Jazz Club – De Bever Architecten: Eindhoven’s Revitalized Cultural Hub
Historic gas factory transformed into Fifth NRE Jazz Club blending modern sustainability, jazz culture, dining, and heritage architecture seamlessly.
Free Architecture Competitions You Can Enter Right Now
No entry fees, real prizes. Here are the best free architecture competitions open for submissions in 2026.
Similar Reads
You might also enjoy these articles
The Ken Roberts Memorial Delineation Competition (Krob)
As the most senior architectural drawing competition currently in operation anywhere in the world, it draws hundreds of entries each year, awarding the very best submissions in a series of medium-based categories.
Waterfront Redevelopment and Urban Revitalization in Mumbai: Forging a New Dawn for Darukhana
A transformative waterfront redevelopment project reimagining Darukhana’s shipbreaking heritage into an inclusive urban future.
OUT-OF-MAP: A Call for Postcards on Feminist Narratives of Public Space
Rhizoma Design and Research Lab invites artists, designers, architects, researchers, and students to reflect on how feminist perspectives can reshape public space. Selected works will be exhibited in Barcelona, October 2026. Submissions open until 15 April 2026.
Documentation Work on Buddhist Wooden Temple
Architectural syncretism and cultural hybridity: A comparative study of the Buddhist temples in Chattogram Hill tracks
Explore Architecture Competitions
Discover active competitions in this discipline
The International Standard for Design Portfolios
The Global Benchmark for Architecture Dissertation Awards
The Global Benchmark for Graduation Excellence
Challenge to design luxury tourism on rails
Comments (0)
Please login or sign up to add comments
No comments yet. Be the first to comment!