Unleash Your Inner Artist at OPUS 5: The Ultimate Chessy Cultural Haven!
What Makes OPUS 5 Chessy Cultural Centre the Must-Visit Destination for Art and Culture Enthusiasts?

As urban sprawl continues to encroach on rural areas, vestiges of the past are often lost in the shuffle. However, the Tournelles farm in the town of Chessy, France has been transformed into a cultural centre that preserves the area's agricultural heritage while bridging the gap between the new town and Disney's entertainment complex.
The newly renovated Tournelles farm serves as a bridge between two worlds: the rapidly expanding town of Chessy and Disney's well-defined entertainment complex. The site is a nod to the rural life that once defined the area, now nestled in the jaws of urbanization.
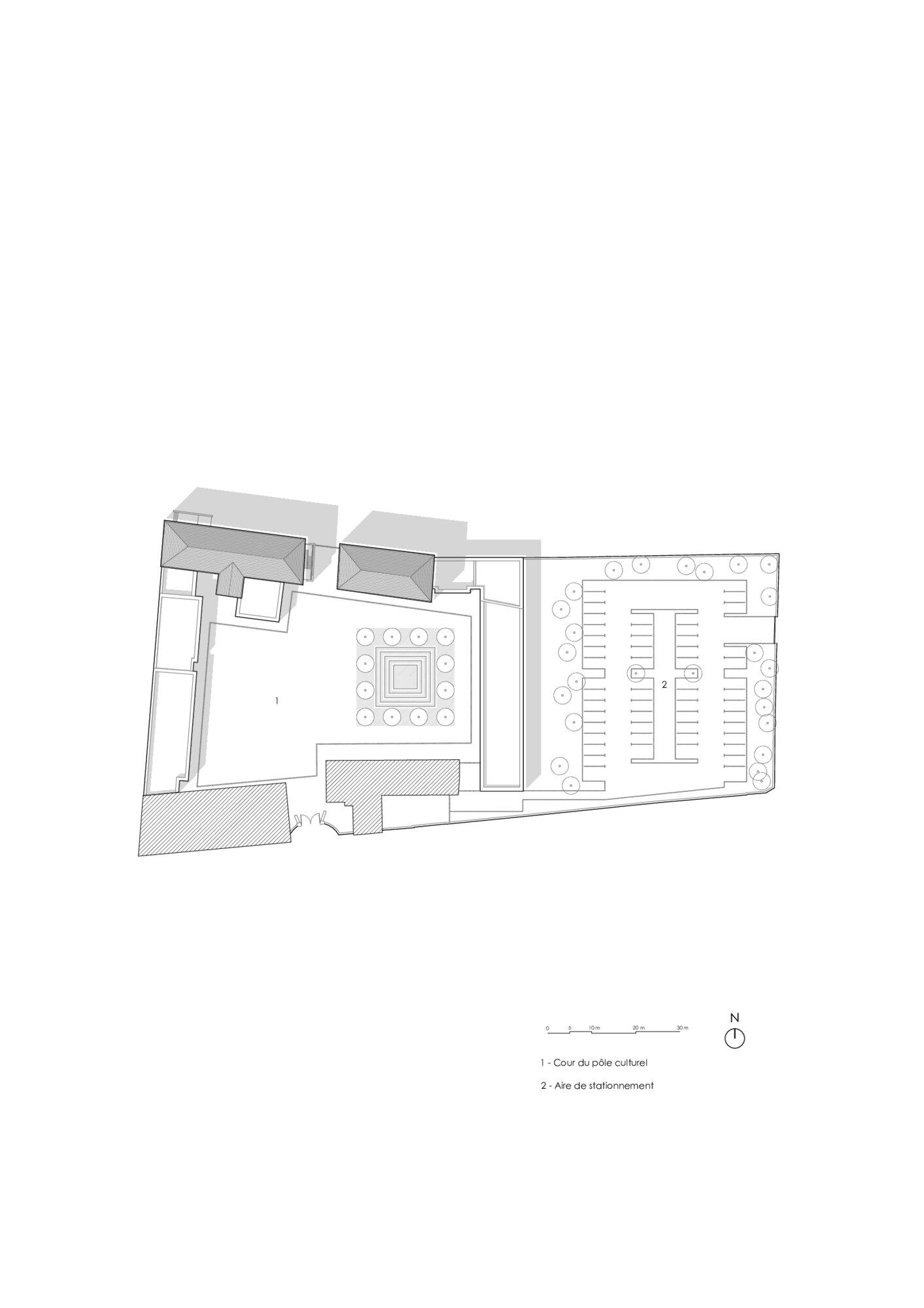
The architectural strength of the Tournelles farm lies in its simplicity and massiveness. Its inward-looking and closed position offers protection from the outside world, and the central courtyard provides a focal point for activity. The two new constructions, housing music studios and a multipurpose hall blend seamlessly into the original structure's design.
The tiles and rubblestone that were deconstructed from the wings have been cleaned, sorted, and stored for later use, a nod to the site's geological strata and rootedness in the land. Raw materials are utilized inside, avoiding the pitfalls of style and mannerisms. This approach enhances the project's materiality and further links it to the history and memory of the place.
The music school's performance hall and the main theatre space are each housed in restored granaries, taking full advantage of these atypical volumes unique to the site. With all the required stage equipment, these halls offer a range of possibilities for musicals, theatre, dance, video, and more.
The Tournelles farm's renovation preserves the area's agricultural heritage while providing a modern cultural centre. As urbanization continues, projects like this serve as a bridge between past and present, reminding us of the importance of preserving rural life and our connections to the land.










































Architects: Opus 5 architectes
Year: 2023
Photographs: Luc Boegly
Lead Architects: Bruno Decaris, Agnès Pontremoli, Pierre Tisserand
Acoustics: Impédance
Structural Engineering: Batiserf Ingénierie
Scenography: Luc Perrier
M&E Engineering: BET Louis Choulet
City: Brie
Country: France
Popular Articles
Popular articles from the community
Solar Steam: A Climate-Responsive Architecture That Redefines the Monument
A climate-responsive memorial architecture that transforms heat, decay, and time into a living system reflecting humanity’s ecological impact.
A Contemporary Take on Iranian Residential Architecture
A modern interior design in Mashhad that reinterprets brick, light, and spatial flow to create a warm, contemporary residential architecture.
Louis Malle Cinema: A Limestone Cultural Landmark Revitalizing Community Life in Prayssac
Limestone cinema extension with public forecourt, blending heritage and modern design to create flexible cultural spaces and strengthen community interaction.
The Ken Roberts Memorial Delineation Competition (Krob)
As the most senior architectural drawing competition currently in operation anywhere in the world, it draws hundreds of entries each year, awarding the very best submissions in a series of medium-based categories.
Similar Reads
You might also enjoy these articles
Zhuxi Wonderland: Reimagining Traditional Chinese Gardens by Doarchi Architects
Zhuxi Wonderland by Doarchi Architects reinterprets traditional Yangzhou gardens, integrating courtyards, pavilions, and tea houses in modern cultural design.
Doble Soga House: A Contemporary Brick Residence Rooted in Landscape in Quito, Ecuador
Brick house in Quito integrating nature, flexible living spaces, exposed materials, and rooftop terrace, creating warm contemporary architecture for modern family life.
Al Gharra Mosque in Medina Redefining Contemporary Islamic Architecture
Minimalist Medina mosque using concrete, light, and landscape to reinterpret Islamic worship spaces through symbolic spiritual transitions and contemporary architecture.
Viczonecode Villa by DDconcept – Tropical Family Living in Ho Chi Minh City
Tropical family villa in Ho Chi Minh City featuring courtyards, skylights, natural ventilation, elevated flooring, and seamless indoor–outdoor living surrounded by greenery.
Explore Architecture Competitions
Discover active competitions in this discipline
The International Standard for Design Portfolios
The Global Benchmark for Architecture Dissertation Awards
The Global Benchmark for Graduation Excellence
Challenge to reimagine the Iron Throne
Comments (0)
Please login or sign up to add comments
No comments yet. Be the first to comment!