URA Store by InsideOut: A Minimalist Concept Shop Blurring Boundaries
URA Store in Tokyo is a minimalist concept shop blending architecture and fashion, featuring mirrored surfaces, glass partitions, and sustainable design.
Located in the heart of Harajuku, Tokyo, URA Store is a cutting-edge concept shop designed by InsideOut for renowned fashion designer Mihara Yasuhiro. The store embodies a unique architectural philosophy that challenges conventional retail design by seamlessly merging interior and exterior spaces.

A Vision Rooted in Sustainability and Innovation
Derived from the Japanese word "URA," meaning "reverse," "behind," or "opposite," the URA Store reflects a multidimensional approach to sustainability and social responsibility. The boutique offers an experimental space where fashion and architecture converge to create a thought-provoking retail experience.
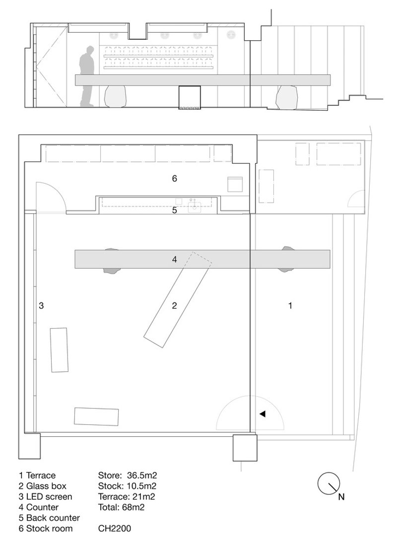
Spanning just 47 square meters, the store is nestled within a quiet, semi-basement plot in Shibuya City. The compact space is designed with a striking combination of mirrored surfaces, glass partitions, and stone elements, creating a dialogue between structure and reflection. The architectural composition is defined by a prominent mirrored rectangle balanced atop two stone blocks, extending beyond the store’s interior to connect with the urban environment outside.

Design Elements: A Play of Surfaces, Reflections, and Transparency
The store’s design weakens the boundary between inside and outside, creating a fluid transition between the retail space and the adjacent residential site. The use of full LED screens, high-contrast materials, and unexpected voids transforms the space into an artistic installation rather than a traditional commercial setting. The mirrored rectangle, seemingly suspended, serves as a focal point—enhancing both visual depth and spatial ambiguity.
Material selection plays a crucial role in reinforcing the store’s unconventional aesthetic. The project features premium materials sourced from leading manufacturers, including ENDO Lighting Corporation, KMEW, Kindred, Komatsu Stone, Seiho, Union, Vola, one by one, and Refojoule. The interior lighting, meticulously curated by HIBIKI Inc., complements the reflective surfaces, intensifying the interplay of light and shadow.

Structural and Construction Details
The execution of URA Store’s design required precision engineering and collaboration with expert craftsmen. The store’s stonework was carried out by Takebayashi Stonemason, while Ishimaru Co., Ltd. handled the overall construction. Mihoya Glass, the glass contractor, ensured seamless integration of reflective panels, enhancing the illusion of continuity between indoor and outdoor environments.
A key structural element—the mirrored rectangular volume—was secured using anchor bolts attached to the stone surface, with its edges seamlessly sealed to the glass. This detailing creates a visual effect that suggests the mirrored element continues uninterrupted through the glass, reinforcing the concept of spatial extension.

Redefining Retail Spaces: An Experimental Approach
Unlike conventional retail stores, URA Store does not conform to standard product displays. Instead, the architectural elements themselves become an interactive backdrop, allowing products to exist as "dots" against a dynamic interplay of surfaces and lines. This unconventional approach aligns with Mihara Yasuhiro’s avant-garde fashion philosophy, emphasizing contrast, reflection, and minimalism.
By redefining the boundaries of retail architecture, InsideOut has transformed URA Store into more than just a shopping destination—it is an immersive spatial experience that challenges perceptions and invites curiosity. The result is a visionary retail space where architecture, fashion, and art intersect seamlessly.


All photographs are works of Hiroto Kubo
Popular Articles
Popular articles from the community
Solar Steam: A Climate-Responsive Architecture That Redefines the Monument
A climate-responsive memorial architecture that transforms heat, decay, and time into a living system reflecting humanity’s ecological impact.
Louis Malle Cinema: A Limestone Cultural Landmark Revitalizing Community Life in Prayssac
Limestone cinema extension with public forecourt, blending heritage and modern design to create flexible cultural spaces and strengthen community interaction.
Treehouse Apartment: A Warm Timber Interior Blending Craft, Play, and Contemporary Living
Warm timber apartment with integrated treehouse, combining natural materials, craftsmanship, and playful design to create a flexible, family-oriented living environment.
An Miên Lumière Cafe by xưởng xép, Ho Chi Minh City, Vietnam
An industrial-inspired café where layered steel and warm light create a dynamic, immersive environment shaped by reflection, depth, and perception.
Similar Reads
You might also enjoy these articles
The Ken Roberts Memorial Delineation Competition (Krob)
As the most senior architectural drawing competition currently in operation anywhere in the world, it draws hundreds of entries each year, awarding the very best submissions in a series of medium-based categories.
Waterfront Redevelopment and Urban Revitalization in Mumbai: Forging a New Dawn for Darukhana
A transformative waterfront redevelopment project reimagining Darukhana’s shipbreaking heritage into an inclusive urban future.
OUT-OF-MAP: A Call for Postcards on Feminist Narratives of Public Space
Rhizoma Design and Research Lab invites artists, designers, architects, researchers, and students to reflect on how feminist perspectives can reshape public space. Selected works will be exhibited in Barcelona, October 2026. Submissions open until 15 April 2026.
Documentation Work on Buddhist Wooden Temple
Architectural syncretism and cultural hybridity: A comparative study of the Buddhist temples in Chattogram Hill tracks
Explore Architecture Competitions
Discover active competitions in this discipline
The International Standard for Design Portfolios
The Global Benchmark for Architecture Dissertation Awards
The Global Benchmark for Graduation Excellence
Challenge to reimagine the Iron Throne
Comments (0)
Please login or sign up to add comments
No comments yet. Be the first to comment!