Connect/Commune: Rusted Steel and Timber Towers That Rewire Urban Solitude
A shortlisted Elevate 2019 entry uses weathered materials, digital interfaces, and planted beds to turn sidewalks into spaces of communion.
The same screens that pulled us apart might be the ones that draw us back together. Connect/Commune starts from that provocation, embedding digital interfaces into a raw assemblage of rusted steel panels, weathered timber towers, and planted grasses that colonize the edge of an ordinary sidewalk. The installation doesn't hide its technology behind slick surfaces; instead, it wraps it in materials that age, stain, and weather alongside the city itself, asking passersby to slow down long enough to notice what's around them.
Designed by Alan Frost, Connect/Commune was a shortlisted entry in Elevate 2019. The project reimagines streetside architecture as a catalyst for meaningful social exchange, blending sensory-rich physical environments with real-time data-driven interactions that operate at urban, national, and even global scales. It positions itself against the noise, grime, and hustle of city life, carving out pockets of quiet communion with nature and community.
Fog, Rust, and Green Mesh: Arriving at the Installation


The street view reveals rusted Corten-like steel panels flanking a pair of timber towers, partially veiled by a green mesh screen and what appears to be atmospheric fog. The effect is striking: an object that reads simultaneously as ruin and prototype, something excavated and something just beginning. The fog softens the hard urban edges, turning a public sidewalk into a threshold between the everyday and the contemplative. In the adjacent plaza view, a cyclist passes the installation without stopping, but the planted beds at the base of the towers insist on a different tempo. Grasses and low plantings ground the vertical timber elements and signal that this is not a temporary event but an ongoing negotiation between architecture and landscape.
A Passageway Framed in Weathered Steel

From the streetside, the rusted steel panels form a narrow passageway lined with planted grasses on one side and the sidewalk on the other. Pedestrians walk alongside it rather than through it, which is a deliberate spatial choice: the installation doesn't demand entry but offers it. The planting softens the corridor's industrial texture and introduces movement through wind and seasonal change. There's an honesty to the material palette here. The weathered steel will continue to oxidize, the grasses will grow and die back, and the installation will never look quite the same twice. That impermanence mirrors the fleeting nature of the social encounters the project hopes to foster.
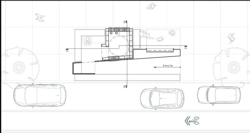
Section and Plan: The Anatomy of Two Towers


The section drawing cuts through both vertical towers, exposing their internal structure: layered platforms, illuminated panels, and a framework that appears to support both digital displays and physical enclosure. Pedestrians and planted beds sit at the base, grounding the towers in the human scale. The illuminated panels suggest that at night the installation transforms into something closer to a lantern, broadcasting light and possibly data outward into the surrounding streetscape. The plan drawing confirms how tightly the installation sits against the curb, with parked cars lining the adjacent street. The footprint is compact, proving that the intervention doesn't need a generous site to generate spatial complexity.
Typologies of Urban Communion


Frost's diagrammatic work situates Connect/Commune within a broader taxonomy of urban interventions: park, shore, plaza, alley, and walk typologies, each mapped against network diagrams that suggest how social connectivity radiates outward from a single installation point. The ambition here extends well beyond a single sidewalk. The project envisions a replicable framework, an infrastructure of communion that could be deployed across different urban conditions. A second diagram uses photography and simple illustrations to distill the core design concept into three moments, moving from observation to interaction to reflection. It reads almost like a user manual for a new kind of public space.
Why This Project Matters
Connect/Commune refuses to treat technology and nature as opposites. Instead, it braids them into a single streetside object that ages, glows, grows, and responds. The rusted steel and planted grasses anchor the installation in the physical world while the digital interfaces and illuminated panels reach outward into networks that transcend the block. It is a small piece of architecture with a large argument: that the antidote to digital isolation isn't less technology but better-situated technology, wrapped in materials and spaces that demand presence.
For a shortlisted competition entry, the project demonstrates a mature understanding of how adaptive spatial design can operate at multiple scales simultaneously. Alan Frost's contribution to Elevate 2019 suggests that the most compelling urban interventions are not the ones that shout for attention but the ones that create the conditions for people to notice each other again.
View the Full Project
About the Designers
Designer: Alan Frost
Enter a Design Competition on uni.xyz
uni.xyz runs architecture and design competitions year-round that reward proposals with spatial conviction and real site intelligence.
Project credits: Connect/Commune by Alan Frost Elevate 2019 (uni.xyz).
Popular Articles
Popular articles from the community
LABarq Builds an Entire House in Querétaro from a Single Custom Concrete Block
Casa Capuchinas uses one sand-colored block as structure, finish, and sunscreen across 477 square meters of suburban Mexico.
Sam Crawford Architects Anchors a Sports Pavilion in 10,000 Years of Indigenous History
A V-shaped brick and steel pavilion in southwest Sydney translates ancient clay ovens and gathering traditions into civic architecture.
MIDW Casts a Pavilion Roof from the Earth Itself at the 2025 Osaka Expo
On a fragile reclaimed island, excavated soil becomes formwork for a concrete canopy that will eventually disappear into wisteria.
20 Most Popular Office Building Projects of 2025
From biophilic workspaces in India to net-positive energy offices in New Delhi, 20 office building projects that defined architecture in 2025.
Similar Reads
You might also enjoy these articles
1+1>2 Architects Build a School from 900 Blocks of Hmong Stone on Vietnam's Rocky Plateau
On a barren valley in Ha Giang province, a community quarried its own stone to raise a kindergarten and primary school rooted in Hmong identity.
100A Associates Builds a Volcanic Stone Retreat on Jeju Island Rooted in Ritual and Restraint
Watarstay [Wa:Tar] in Bongseong-ri channels Jeju's basalt, reed, and hemp into a 150 m² hospitality space shaped by contemplation.
MARBÄ Artquitectura Carves a Green Courtyard into a Dense Barcelona Ground Floor
A former parish, printing press, and bazaar in L'Hospitalet de Llobregat becomes a bioclimatic live-work home organized around a central garden.
Steimle Architekten Carves a Monolithic Fire Station from Red Concrete in Germersheim
A sculptural civic building at the southern gateway to Germersheim channels the weight of red sandstone into a flexible emergency facility.
Explore Public Building Competitions
Discover active competitions in this discipline
The Global Benchmark for Architecture Dissertation Awards
Challenge to design a portable theatre
Challenge to design locus for the upliftment of human rights
Challenge to design a portable music platform
Comments (0)
Please login or sign up to add comments
No comments yet. Be the first to comment!