Urban Corner Architecture in the Peper Multifunctional Building by Architecten De Bruyn
This article explores how the Peper Multifunctional Building uses urban corner architecture to integrate diverse programs in a compact site.
Redefining the Urban Corner in Aalst’s City Center
The Peper Multifunctional Building, designed by Architecten De Bruyn, is a striking example of urban corner architecture that revitalizes a compact plot in the heart of Aalst, Belgium. Occupying just 410 m², the project transforms a small-scale corner site into a dynamic, vertically stacked program consisting of a restaurant, co-working space, and residential unit. With sensitivity to context and precision in function, the building reshapes the experience of an urban intersection through minimalist materials and layered transparency.




The Architectural Potential of Urban Corners
Unlike public squares that sprawl outwards, corners mark transitions, directions, and urban flow. This building embraces its corner location as a foundational concept. Rather than treating the site’s irregularity as a constraint, Architecten De Bruyn uses it as an architectural opportunity to create intersections between functions, circulation, and visibility. The building forms a sculpted response to the urban grain of Aalst, maximizing its presence without overwhelming its surroundings.




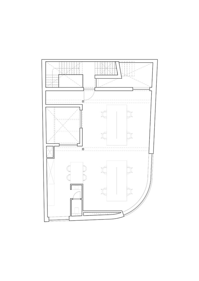
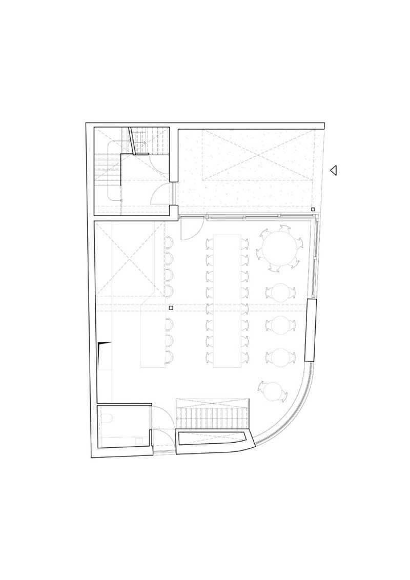
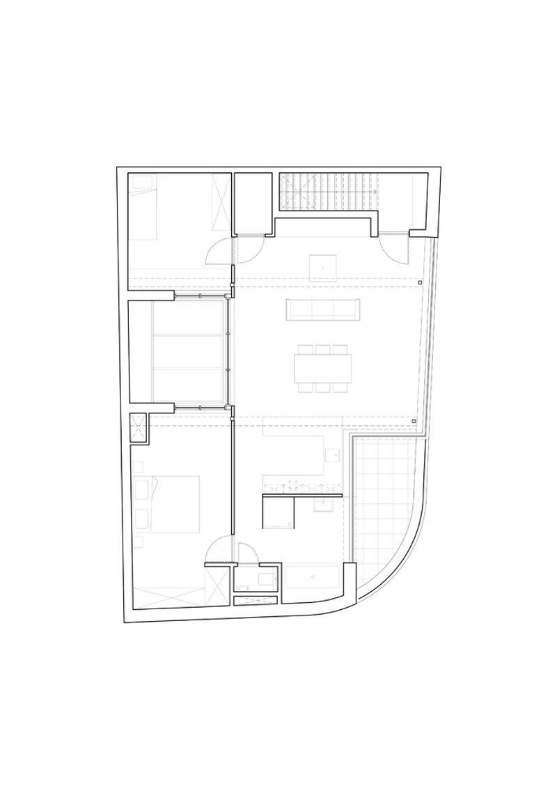
Compact Stacking and Programmatic Integration
The project is structured as a pared-down vertical stack, with each floor carefully programmed to serve a distinct yet interconnected function. The ground and underground floors house ‘Wally,’ a restaurant that prioritizes openness and light. Seating-height window openings blur the boundary between interior dining and street activity, creating a transparent threshold that invites engagement. On the first floor, a multifunctional co-working space extends the building’s social functionality, offering views over the square and direct access to the covered entrance zone. At the top, a compact yet fully-equipped two-bedroom flat completes the stack, illustrating the site’s capacity for mixed-use living.




The Role of Light and Transparency
Central to the building’s spatial coherence is a patio and internal light street that penetrates all levels. This architectural gesture not only enhances vertical connection and natural light access but also reinforces the sense of openness within an otherwise compact structure. Transparency—both literal and conceptual—guides the design, allowing each function to feel autonomous yet unified within the whole.




Honest Materials and Expressive Simplicity
Material choices reflect the project's commitment to authenticity and economy. Spanish brick, used in varying formats and color tones, gives the façade texture and rhythm. Different masonry dressings contribute a subtle playfulness to the exterior. The structure is celebrated in its raw form: load-bearing brick walls, exposed concrete, and wooden detailing reveal the craft behind the construction. Interior finishes such as colorful terrazzo floors and green-grey steel accents add character without excess. The architecture embraces a rough-but-refined aesthetic, allowing material honesty to define its identity.



A Modest Landmark in the Urban Fabric
Though understated, the Peper Multifunctional Building asserts itself as a contemporary interpretation of the urban corner. It harmonizes with neighboring structures while standing out through its material articulation and spatial logic. It does not seek grandeur, but rather clarity, cohesion, and community engagement. This building demonstrates how thoughtful design can transform even the smallest urban sites into functional, flexible, and beautiful spaces.



All Photographs are works of Johny Umans
Popular Articles
Popular articles from the community
Free Architecture Competitions You Can Enter Right Now
No entry fees, real prizes. Here are the best free architecture competitions open for submissions in 2026.
Rede Arquitetos Builds an Open-Air School in Fortaleza That Doubles as a Neighborhood Living Room
Educar II SESC-CE folds sports, dance, and community gathering into a courtyard campus wrapped in mesh and tropical color.
Alton Cliff House: A Harmonious Retreat by f2a Architecture in Lake Country, Canada
Alton Cliff House blends corten steel, prefabrication, and sustainable design, creating a luxurious, energy-efficient retreat perched on Canadian cliffs.
Filtering Space: A Gradual Spatial Experience
From urban intensity to spatial calm.
Similar Reads
You might also enjoy these articles
Filtering Space: A Gradual Spatial Experience
From urban intensity to spatial calm.
The Ken Roberts Memorial Delineation Competition (Krob)
As the most senior architectural drawing competition currently in operation anywhere in the world, it draws hundreds of entries each year, awarding the very best submissions in a series of medium-based categories.
Waterfront Redevelopment and Urban Revitalization in Mumbai: Forging a New Dawn for Darukhana
A transformative waterfront redevelopment project reimagining Darukhana’s shipbreaking heritage into an inclusive urban future.
OUT-OF-MAP: A Call for Postcards on Feminist Narratives of Public Space
Rhizoma Design and Research Lab invites artists, designers, architects, researchers, and students to reflect on how feminist perspectives can reshape public space. Selected works will be exhibited in Barcelona, October 2026. Submissions open until 15 April 2026.
Explore Architecture Competitions
Discover active competitions in this discipline
The International Standard for Design Portfolios
The Global Benchmark for Architecture Dissertation Awards
The Global Benchmark for Graduation Excellence
Challenge to reimagine the Iron Throne
Comments (0)
Please login or sign up to add comments
No comments yet. Be the first to comment!