Villa R by Saunders Architecture: A Hilltop Family Home Blending Modern Design with Nature
Villa R by Saunders Architecture is a timber-clad hilltop home in Norway, blending panoramic views, modern design, and family resilience.
Villa R, designed by Saunders Architecture, is a striking example of contemporary Norwegian residential architecture that gracefully merges family life, natural surroundings, and thoughtful design solutions. Perched on a hilltop in Mosterhamn, Norway, this home was created for the Røksund family, who were deeply attached to their island community but needed to relocate due to the development of a new road and bridge near their former residence.

A New Beginning on a Hilltop
Faced with change, the family decided to turn a challenge into an opportunity. Their new site offered panoramic views across the islands of the Bømlo district, a breathtaking backdrop of forest, rocky outcrops, and ocean. The design brief was clear: create a modern, functional, and emotionally uplifting family home that respects its landscape while maximizing views of the surrounding natural beauty.
For architect Todd Saunders, this project carried special significance. Not only was it about designing a house, but it was also about creating a space of hope and resilience. During the design phase, Judit Røksund, the homeowner and schoolteacher, fell ill with cancer. The family chose to continue with the construction, making Villa R a symbol of strength and forward-looking optimism.


Architecture that Bridges Land and Sea
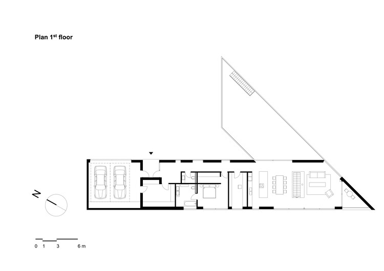
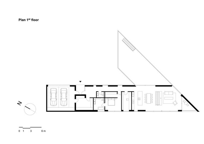
Villa R is conceived as a steel-framed, timber-clad structure that sits lightly on its rugged hilltop terrain. Much of the residence unfolds on a single principal level, thoughtfully arranged to accommodate daily life while framing spectacular views.
- At one end lies the integrated garage and storage room, positioned for maximum functionality.
- The master suite and a dedicated study both face outward toward the water, establishing a seamless relationship with the horizon.
- The heart of the home is an open-plan living area, housing the kitchen, dining, and lounge spaces. Here, floor-to-ceiling glass walls create a panoramic experience described by Saunders as a “rural penthouse”—a sophisticated observation deck floating above land and sea.
This primary living zone connects directly to a covered terrace, further extending the relationship between indoors and outdoors. A central wood-burning stove anchors the space, blending Scandinavian warmth with contemporary elegance.


Multi-Level Living and Thoughtful Details
While the main body of the house forms a bridge-like structure, a secondary lower level supports the form and provides additional living quarters. This area includes:
- Two children’s bedrooms
- A media room for family gatherings
- A guest bedroom tucked into the hillside
The elevated placement of the upper level creates a sheltered undercroft, functioning as an outdoor living room protected from wind and rain.
Practical considerations are also central to the design. For example:
- A firewood store located in the garage eliminates the need to step outside during winter.
- The laundry and storage zone near the entrance allows the sailing-loving family to change out of wet clothes conveniently.
These details demonstrate how Villa R balances aesthetic ambition with the necessities of everyday life.


A Dialogue Between Architecture and Nature
Villa R exemplifies how Norwegian modern architecture can engage in constant dialogue with nature. By preserving mature trees, building around rocky outcrops, and orienting rooms toward the water, Saunders Architecture ensured that the home remains rooted in its site. The design is both monumental and intimate, offering the grandeur of sweeping landscapes while maintaining the coziness of a family dwelling.
Villa R is more than a house; it is a testament to resilience, thoughtful architecture, and the intimate bond between people and place. Saunders Architecture’s ability to transform a family’s need into a timeless work of design shows the power of architecture to shape lives, not just spaces.



All the photographs are works of Ivar Kvaal
Popular Articles
Popular articles from the community
Fausto Terán and Toro Fuse Japanese Craft with Mexican Tradition in a Lakeside Retreat
Nakamura House pairs Shou-Sugi-Ban charred pine with handmade clay tile at the foot of Atlangatepec Lagoon in Mexico.
Takeshi Hosaka Architects Suspends a Concrete Cross Above a Yokohama Cemetery
A 28-square-meter burial renovation in Yokohama lifts the symbol of resurrection into the sky so mourners see it against heaven.
Ippolito Fleitz Group Identity Architects Turn Eight Floors in Shanghai into a Vertical Creative City
Publicis Groupe's new headquarters in Xintiandi reimagines the office as a courtyard-driven urban landscape stacked across eight floors.
BAST Slots a Four-Story Glass House into a Narrow Gap Between Toulouse Townhouses
In the dense Bonnefoy district, a stepped infill building merges home and office while preserving a majestic hackberry tree.
Similar Reads
You might also enjoy these articles
Olio Towers: A Mid-Rise for Performers That Fuses Housing, Rehearsal, and Stage
Located blocks from Houston's Theater District, this modular tower stacks living units around a central performance atrium.
Oasis: Modular Green Housing Carved into Dhaka's Urban Fabric
A shortlisted Plugin Housing entry reclaims unauthorized settlements in Dhaka with stepped concrete volumes, green roofs, and ventilation-driven design.
Black Hole: A Floating Megastructure for the Post-Physical Era
Emiliano Mazzarotto envisions a spherical, self-scaling arena where e-sports, digital hotels, and holographic stadiums replace traditional public space.
Compact & Sustainable Living in Piraeus: A Four-Level Family Home Built Around Light and Air
A narrow townhouse in one of Greece's densest port cities uses a central atrium and passive strategies to house three generations under one roof.
Explore Architecture Competitions
Discover active competitions in this discipline
The International Standard for Design Portfolios
The Global Benchmark for Architecture Dissertation Awards
The Global Benchmark for Graduation Excellence
Challenge to reimagine the Iron Throne
Comments (0)
Please login or sign up to add comments
No comments yet. Be the first to comment!