Wat Bo House By UAD Architects – Contemporary Residential Design in Siem Reap, Cambodia
Wat Bo House in Siem Reap blends contemporary design, natural materials, and lush gardens, creating a serene, sustainable, and private family residence.
Nestled in the historic and culturally rich Wat Bo Village of Siem Reap, Wat Bo House by UAD Architects exemplifies a thoughtful integration of contemporary residential design with the heritage and creative energy of its surroundings. This 590 m² private residence, completed in 2025, serves as a serene oasis for a young couple who sought to settle in this storied neighborhood while embracing its architectural legacy.


The design philosophy of Wat Bo House balances simplicity, functionality, and timelessness, creating a home that resonates with both modern living and local identity. The architects selected authentic, durable materials such as natural grey granite tiles, concrete, and wood to ground the project in authenticity while ensuring long-lasting performance.


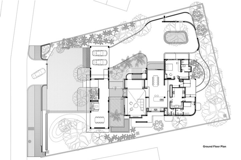
Spatial Organization and Layout The residence is organized into two main blocks connected by a covered walkway, positioned amidst lush gardens and a tranquil fishpond. This layout blurs the boundaries between indoors and outdoors, fostering a seamless connection with nature while providing privacy from neighboring properties. The main building is set deep within the site, allowing the surrounding courtyards and gardens to act as buffers that reduce noise and enhance comfort.


The lower floor accommodates social spaces, leisure zones, service areas, and a guest bedroom. A single-story front building frames the entrance, and an open garage doubles as a multi-use terrace for relaxation and viewing the garden. A carefully designed pathway guides visitors inward to the central family living area.


The upper levels feature three bedrooms, a spacious front terrace, and a rooftop gym enveloped by greenery. Strategic openings in the building’s volumes balance solids and voids, allowing natural airflow and providing dynamic views of the surrounding vegetation, including wild almond, ta meng, date palm, and fan palm trees.


Materiality and Architectural Features Wat Bo House emphasizes material authenticity and a strong connection to its environment. The façade surfaces gently reflect natural light, creating dynamic shadows that change throughout the day. Hidden gardens, terraces, and layered voids provide constantly shifting perspectives, enhancing the sense of discovery and spatial depth. The fishpond and greenery reinforce a connection to nature, making the home a calming retreat.


Sustainability and Comfort The design strategically incorporates natural ventilation and passive cooling, optimizing comfort in Siem Reap’s tropical climate. The integration of green spaces and open courtyards ensures a healthy, tranquil, and environmentally conscious living experience, in line with modern sustainable architecture principles.


Conclusion Wat Bo House by UAD Architects is a masterful example of contemporary residential architecture in Cambodia. By harmoniously blending modern design with local heritage, natural materials, and lush landscaping, the home offers a private, serene sanctuary while respecting the cultural context of Wat Bo Village. This project highlights the power of architecture to connect people, place, and nature.


All the photographs are works of Oudompheaktra Ang
Popular Articles
Popular articles from the community
Atelier Macri Concept Store Interior Design by CASE-REAL
Atelier Macri store features a "ko" counter, walnut wood details, cork displays, blending retail, gallery, and seamless customer experiences.
The Ken Roberts Memorial Delineation Competition (Krob)
As the most senior architectural drawing competition currently in operation anywhere in the world, it draws hundreds of entries each year, awarding the very best submissions in a series of medium-based categories.
Treehouse Apartment: A Warm Timber Interior Blending Craft, Play, and Contemporary Living
Warm timber apartment with integrated treehouse, combining natural materials, craftsmanship, and playful design to create a flexible, family-oriented living environment.
A Contemporary Take on Iranian Residential Architecture
A modern interior design in Mashhad that reinterprets brick, light, and spatial flow to create a warm, contemporary residential architecture.
Similar Reads
You might also enjoy these articles
The Ken Roberts Memorial Delineation Competition (Krob)
As the most senior architectural drawing competition currently in operation anywhere in the world, it draws hundreds of entries each year, awarding the very best submissions in a series of medium-based categories.
Waterfront Redevelopment and Urban Revitalization in Mumbai: Forging a New Dawn for Darukhana
A transformative waterfront redevelopment project reimagining Darukhana’s shipbreaking heritage into an inclusive urban future.
OUT-OF-MAP: A Call for Postcards on Feminist Narratives of Public Space
Rhizoma Design and Research Lab invites artists, designers, architects, researchers, and students to reflect on how feminist perspectives can reshape public space. Selected works will be exhibited in Barcelona, October 2026. Submissions open until 15 April 2026.
Documentation Work on Buddhist Wooden Temple
Architectural syncretism and cultural hybridity: A comparative study of the Buddhist temples in Chattogram Hill tracks
Explore Architecture Competitions
Discover active competitions in this discipline
The International Standard for Design Portfolios
The Global Benchmark for Architecture Dissertation Awards
The Global Benchmark for Graduation Excellence
Challenge to reimagine the Iron Throne
Comments (0)
Please login or sign up to add comments
No comments yet. Be the first to comment!