Zaremba Residence By Reitsma and Associates: Iconic Coastal Family Home in Buddina, Australia
Zaremba Residence by Reitsma and Associates is a coastal, family-focused home in Buddina, blending modern design, curves, natural light, and privacy.
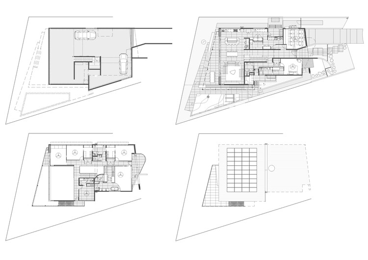
The Zaremba Residence, designed by Reitsma and Associates, is a striking coastal home that merges modern architecture, functionality, and family-centered living. Situated at the tip of Buddina, Australia, this 715 m² residence offers sweeping views of the Pacific Ocean, Mooloolaba Marina, and the northern coastline. Completed in 2021, the project reflects the playful, adventurous, and cozy lifestyle of a family of five, while creating a visually iconic statement within the local streetscape.
Design Concept and Site Challenges The residence was conceived with a focus on street presence, privacy, and maximizing natural light. Located on a small cul-de-sac with limited parking, the design incorporates a spacious basement garage, accommodating six vehicles and providing additional storage. The home’s bold facade and sculptural curves, including balcony step-outs and vertical handrails, ensure privacy while opening living spaces toward the north, filling the interiors with warmth and sunlight throughout the day.


Architectural Features and Interior Design The internal layout emphasizes open-plan living and functionality. A central void over the living area acts as a light shaft, creating dynamic visual connections between all three levels. The staircase, carefully integrated into the design, enhances circulation and connects family spaces seamlessly. The rooftop is accessed via a hidden door, offering panoramic sunset views over the coastline, providing a private retreat for the family.
The material palette combines natural whites, soft greys, and Scandinavian timber, creating a timeless aesthetic. White vertical blade handrails extend across internal and external zones, blurring boundaries between indoors and outdoors. Thoughtful attention to curves, light, and materiality allows the house to feel expansive, welcoming, and cohesive.


Functionality and Family-Centered Living The Zaremba Residence balances form and function, ensuring that spaces meet the practical needs of a large family while maintaining privacy and comfort. The house features multiple living areas, bedrooms, and intimate nooks, all designed to foster family interaction while providing moments of solitude. Its strategic orientation, along with carefully designed balconies and terraces, strengthens connections to the surrounding coastal environment.



Sustainability and Timeless Design This coastal home demonstrates sustainable design principles through careful orientation, natural ventilation, and material selection. Its enduring aesthetics and thoughtful spatial planning ensure the residence remains a landmark within Buddina, inspiring future residential design in the region.



The Zaremba Residence is a testament to the power of architectural collaboration, creativity, and meticulous attention to detail, blending elegance, functionality, and coastal living in one iconic family home.



All the photographs are works of Brock Beazley
Popular Articles
Popular articles from the community
Gads Hill Early Learning Center by JGMA: Adaptive Reuse Shaping Community-Focused Educational Architecture
Adaptive reuse transforms fragmented structure into vibrant early learning center with playful façade, natural light, and community-focused sustainable design.
Free Architecture Competitions You Can Enter Right Now
No entry fees, real prizes. Here are the best free architecture competitions open for submissions in 2026.
Inverted Architecture Installation by Studio Link-Arc: Exploring the Intersection of Architecture and Living Organisms
Inverted Architecture Installation by Studio Link-Arc blends mycelium, sustainability, inverted design, ecological cycles, and urban adaptive architecture in Shenzhen.
Similar Reads
You might also enjoy these articles
The Ken Roberts Memorial Delineation Competition (Krob)
As the most senior architectural drawing competition currently in operation anywhere in the world, it draws hundreds of entries each year, awarding the very best submissions in a series of medium-based categories.
Waterfront Redevelopment and Urban Revitalization in Mumbai: Forging a New Dawn for Darukhana
A transformative waterfront redevelopment project reimagining Darukhana’s shipbreaking heritage into an inclusive urban future.
OUT-OF-MAP: A Call for Postcards on Feminist Narratives of Public Space
Rhizoma Design and Research Lab invites artists, designers, architects, researchers, and students to reflect on how feminist perspectives can reshape public space. Selected works will be exhibited in Barcelona, October 2026. Submissions open until 15 April 2026.
Documentation Work on Buddhist Wooden Temple
Architectural syncretism and cultural hybridity: A comparative study of the Buddhist temples in Chattogram Hill tracks
Explore Architecture Competitions
Discover active competitions in this discipline
The International Standard for Design Portfolios
The Global Benchmark for Architecture Dissertation Awards
The Global Benchmark for Graduation Excellence
Challenge to reimagine the Iron Throne
Comments (0)
Please login or sign up to add comments
No comments yet. Be the first to comment!