Architectural Brilliance Unveiled: Experience the Marvel of 'PHIVE' Civic Center by Manuelle Gautrand!
Is 'PHIVE' Civic Center by Manuelle Gautrand Redefining Modern Architecture with its Spectacular Design?

PHIVE Civic Center: A Revolutionary Architectural Marvel in Parramatta City"
In the bustling city of Parramatta, on the western side of Sydney, a groundbreaking architectural project is set to redefine the urban landscape and transform the city's civic core. Introducing PHIVE Civic Center, an extraordinary endeavour by acclaimed architect Manuelle Gautrand, destined to become a beacon of social, cultural, and economic activity at the heart of Parramatta's Central Business District.
Situated within the three-hectare Parramatta Square redevelopment precinct, PHIVE is a key component of the area's revitalization, aiming to create a vibrant community-oriented space that engages locals and visitors alike. As part of the Great Sydney region, Parramatta is an important business district, making the need for a modern and innovative civic centre all the more crucial.
The design competition for this visionary project was initiated by the City of Parramatta Council, emphasizing the highest standard of architectural, urban, and landscape design within the precinct. Manuelle Gautrand's winning proposal was hailed for its iconic and contextual scheme, presenting an exemplary architectural masterpiece that harmoniously blends Parramatta's history with a 21st-century solution.
One of the project's standout features is its unique relationship with the sun and climate. The architects sculpted the building's triangular volume to maximize sunlight and openness throughout the year, ensuring the adjacent central esplanade remains well-illuminated. The urban design prioritizes a generous public space that serves as a magnet for the community, offering an immersive experience that celebrates human connections.
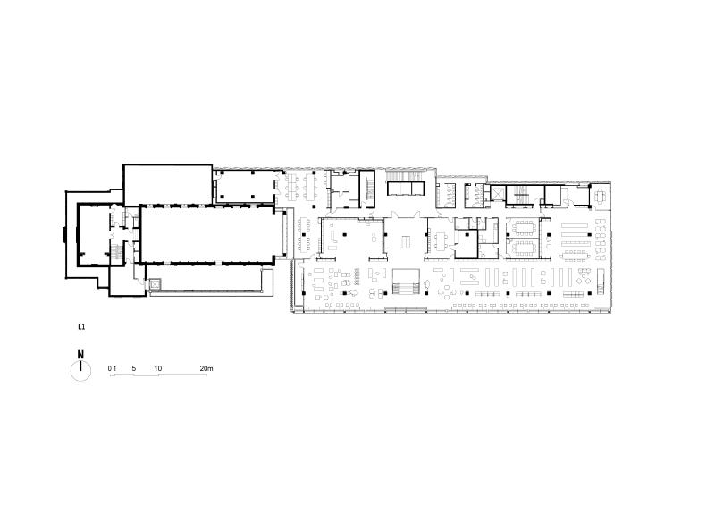
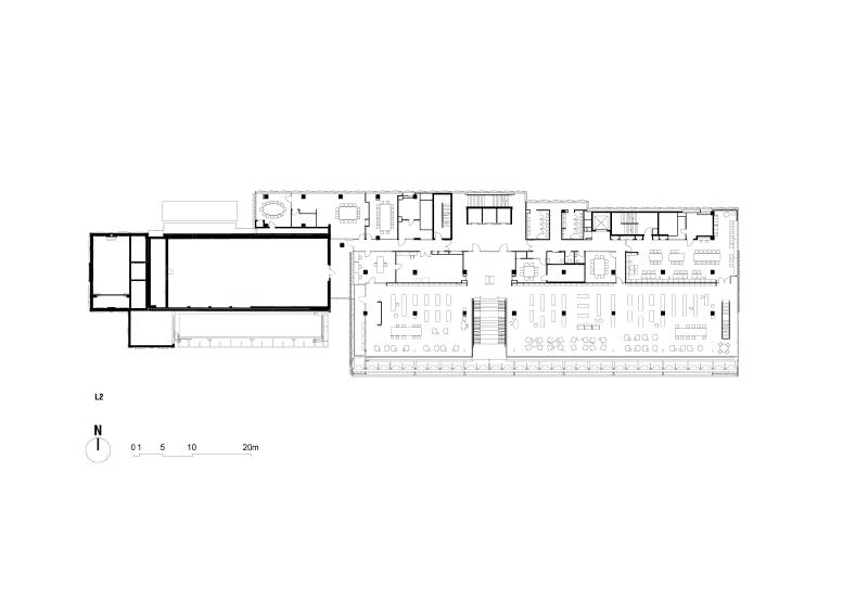
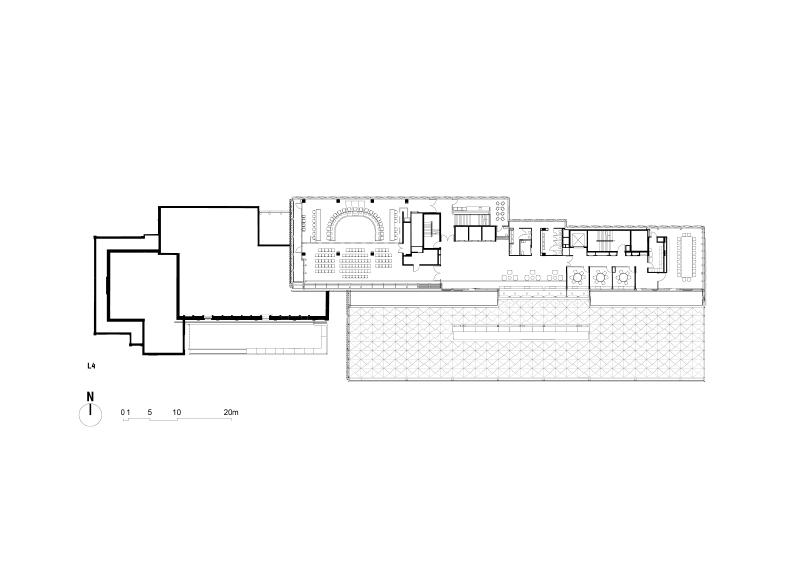
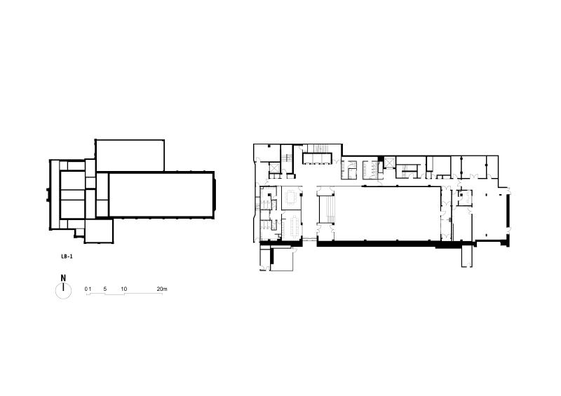
PHIVE Civic Center serves a multifaceted purpose, transcending the traditional concept of a library. While housing a world-class public library, the building also accommodates various community and exhibition spaces, the City of Parramatta's Council Chamber, offices, meeting rooms, and creative spaces for officials. It even boasts a Discovery Centre, cultural heritage spaces, and an Aboriginal Keeping Place, paying tribute to local Indigenous heritage.
Manuelle Gautrand's design brilliantly integrates the existing Parramatta Town Hall into the new project, further strengthening its historical relevance. The building reaches over the roofline of the town hall, creating a seamless connection between the old and the new and providing new activities for both elected officials and the community.
The envelope of PHIVE Civic Center is a masterpiece in itself, functioning as both a roof and a façade. The hundreds of folded panels not only open up breathtaking views but also serve as a sustainable skin, filtering light and protecting from excessive heat. The vibrant colour palette of reds, inspired by the local soil and flora, distinguishes the building from its surroundings, making it a standout architectural gem.
A triumph of sustainability, PHIVE Civic Center has earned a remarkable 6-star rating on Green Star accreditation, a rarity for public buildings. Passive thermal design and innovative natural ventilation methods ensure comfort without overreliance on air conditioning. The building's chimneys draw air through convection, optimizing airflow depending on weather conditions, and even functioning as a carbon-neutral structure.
The construction of the PHIVE Civic Center prioritized waste minimization and ecological preservation. The project involved the restoration and reuse of the existing heritage Town Hall building, while the Waste Management and Re-use Plan minimized waste generation during construction. The integration of stormwater filtration and rainwater harvesting further highlights the project's commitment to sustainability.
With its unprecedented design, harmonious integration with nature, and commitment to the community, PHIVE Civic Center stands as a testament to visionary architecture. As it emerges as a new landmark in Parramatta City, this exceptional project embodies the essence of a civic centre that celebrates culture, fosters connection and illuminates the life of its people.






















































CREDITS
DESIGN LEAD ARCHITECT: MANUELLE GAUTRAND ARCHITECTURE (PARIS)
ASSOCIATED AUSTRALIAN ARCHITECTS:DESIGN INC (SYDNEY)
LACOSTE & STEVENSON (SYDNEY)
Popular Articles
Popular articles from the community
Louis Malle Cinema: A Limestone Cultural Landmark Revitalizing Community Life in Prayssac
Limestone cinema extension with public forecourt, blending heritage and modern design to create flexible cultural spaces and strengthen community interaction.
The Ken Roberts Memorial Delineation Competition (Krob)
As the most senior architectural drawing competition currently in operation anywhere in the world, it draws hundreds of entries each year, awarding the very best submissions in a series of medium-based categories.
Solar Steam: A Climate-Responsive Architecture That Redefines the Monument
A climate-responsive memorial architecture that transforms heat, decay, and time into a living system reflecting humanity’s ecological impact.
Fifth NRE Jazz Club – De Bever Architecten: Eindhoven’s Revitalized Cultural Hub
Historic gas factory transformed into Fifth NRE Jazz Club blending modern sustainability, jazz culture, dining, and heritage architecture seamlessly.
Similar Reads
You might also enjoy these articles
SOM LAND Hotel by RooMoo: A Sustainable Retreat Rooted in Nature and Local Craft
Sustainable boutique hotel in Shanghai blending adaptive reuse, natural materials, vernacular craftsmanship, and slow living within a serene countryside landscape.
Zhuxi Wonderland: Reimagining Traditional Chinese Gardens by Doarchi Architects
Zhuxi Wonderland by Doarchi Architects reinterprets traditional Yangzhou gardens, integrating courtyards, pavilions, and tea houses in modern cultural design.
Doble Soga House: A Contemporary Brick Residence Rooted in Landscape in Quito, Ecuador
Brick house in Quito integrating nature, flexible living spaces, exposed materials, and rooftop terrace, creating warm contemporary architecture for modern family life.
Al Gharra Mosque in Medina Redefining Contemporary Islamic Architecture
Minimalist Medina mosque using concrete, light, and landscape to reinterpret Islamic worship spaces through symbolic spiritual transitions and contemporary architecture.
Explore Architecture Competitions
Discover active competitions in this discipline
The International Standard for Design Portfolios
The Global Benchmark for Architecture Dissertation Awards
The Global Benchmark for Graduation Excellence
Challenge to reimagine the Iron Throne
Comments (0)
Please login or sign up to add comments
No comments yet. Be the first to comment!