Mixed-Use Residential Design: Unveiling the Silom Residence by Yan Group
Exploring Silom Residence's blend of family-centric design and commercial space in Bangkok's dynamic Sathorn area.
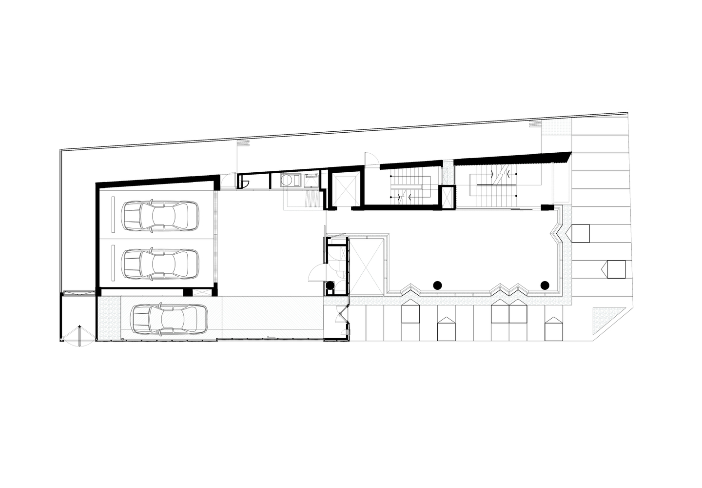
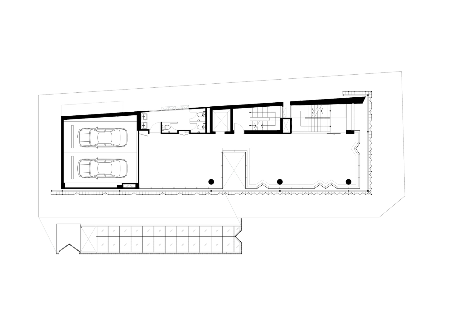
In the heart of Bangkok's Sathorn area, the Silom Residence stands as a testament to the evolving landscape of mixed-use residential design. Crafted by the Yan Group and spanning an area of 1200 m², this seven-story structure seamlessly combines commercial and residential functions to meet both the family’s desires and long-term business objectives. Completed in 2023, the Silom Residence is a pioneering project that redefines urban living in Bangkok.



Architectural Vision and Functionality
A Home for the Heart
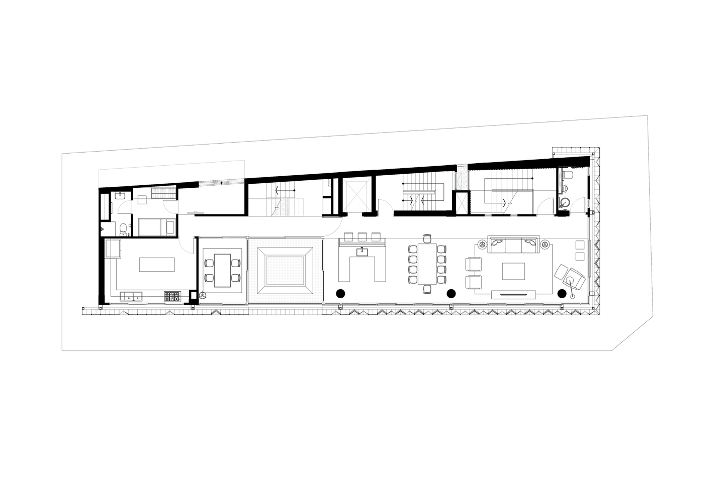
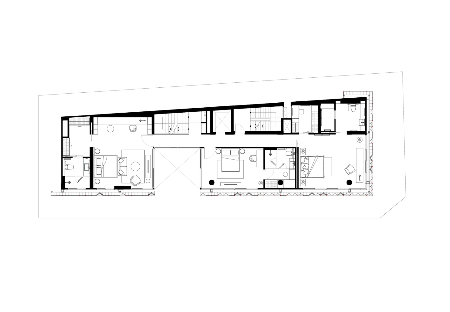
The Silom Residence was conceived with the vision of creating a family-centric space that encourages togetherness. Every aspect of the design, from spatial planning to individual room functionalities, was meticulously developed to ensure that each family member could find their own sense of "home" within the larger structure.


Blending Commercial and Residential Spaces
With a keen eye on sustainability and long-term value, the lower floors of the Silom Residence are dedicated to commercial use. This strategic design allows for a vibrant integration of public and private life, where retail spaces contribute to the building’s dynamism without compromising the privacy and tranquility of the residential areas above.



Innovative Design Features
Dynamic Façade System
The façade of the Silom Residence is a marvel of architectural innovation. Featuring a zigzag window design, it not only adds a unique aesthetic to the building but also incorporates an automatic close-and-open system for shading and ventilation, enhancing the living experience through technology.






Light and Space
Central to the residence is a family room that spans two floors, ending in a private garden that infuses the space with natural elements. This design choice creates an open, airy atmosphere that is both inviting and intimate. The vertical pattern wall, echoing the façade’s design, allows natural light to permeate the interior, highlighting the seamless flow between indoor and outdoor spaces.
The Silom Residence by Yan Group is a standout example of mixed-use residential design, pushing the boundaries of what is possible in urban architecture. By blending functional living spaces with commercial opportunities, the project not only meets the immediate needs of its inhabitants but also contributes to the broader narrative of sustainable and integrated urban development. As Bangkok continues to grow and evolve, the Silom Residence will undoubtedly serve as a beacon of innovative design and thoughtful urban planning.








All Photographs are the work of Panoramic Studio