Sustainable Architecture in Paraguay: A Closer Look at ME House by Equipo de Arquitectura
Exploring ME House by Equipo de Arquitectura, a sustainable, material-honest home integrating nature in Paraguay.
Sustainable Architecture in Paraguay
Sustainable architecture is becoming increasingly important in the global dialogue on climate change and environmental preservation. In Paraguay, a country known for its rich natural landscapes and diverse ecosystems, architects are embracing sustainable design principles to create spaces that harmonize with the environment. A prime example of this innovative approach is the ME House, designed by the renowned Equipo de Arquitectura.


The Vision Behind ME House
A Blend of Nature and Design
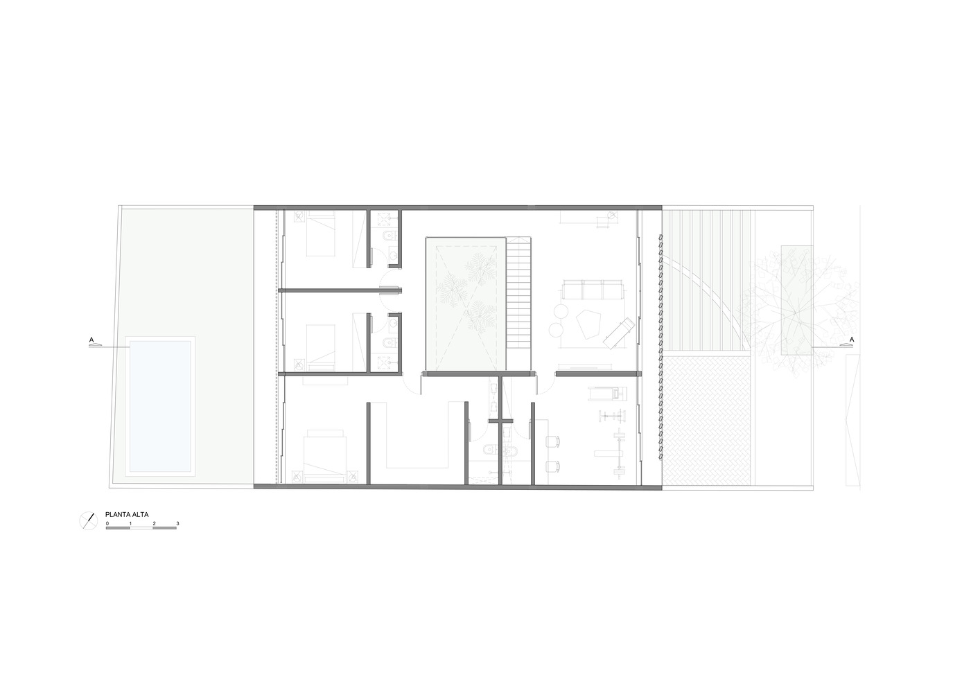
The ME House stands as a testament to the possibilities of integrating natural materials and sustainable design techniques into modern architecture. Nestled in the heart of Asunción, this 390 m² residence was conceptualized with the goal of creating a living space that embodies spatial amplitude, natural light, and cross ventilation, all within a typical urban lot measuring 12 x 30 meters.


Material Honesty and Environmental Integration
Equipo de Arquitectura's use of semi-pressed brick, polished concrete, and wood not only showcases material honesty but also supports the structure's sustainable ethos. These materials were chosen for their natural qualities, durability, and ability to create a cohesive and comfortable living environment. The design cleverly incorporates vegetation and an innovative facade that promotes privacy while facilitating natural ventilation.


Architectural Features and Sustainable Strategies
Innovative Use of Space and Materials
The ME House's layout and material selection reflect a deep understanding of sustainable architecture. The vertical elements constructed from semi-pressed brick allow for various formations, enhancing the house's aesthetic and structural integrity. Polished concrete floors and ceilings unify the space, providing a sleek yet environmentally friendly finish.


Thermal Comfort and Energy Efficiency
The design includes a double roof system and ceramic filters on the facade, which reduce solar heat gain and promote natural cooling. This strategic approach to thermal regulation ensures that the interior spaces remain comfortable throughout the year, reducing the need for artificial cooling and heating.


The Role of Vegetation
Integrating interior spaces with the exterior environment, the architects have made vegetation a central element of the ME House. Climbing plants along the facade and the presence of green spaces inside the house not only enrich the aesthetic appeal but also contribute to the building's overall sustainability by improving air quality and promoting biodiversity.


ME House as a Model for Sustainable Living
The ME House by Equipo de Arquitectura serves as a shining example of how sustainable architecture can be achieved in Paraguay. Through the use of natural materials, innovative design techniques, and a commitment to environmental integration, this project demonstrates the potential for modern architecture to contribute positively to our planet's future. As we move forward, the principles applied in the ME House will undoubtedly inspire more architects and builders to embrace sustainable practices in their projects, making sustainable architecture a standard rather than an exception.



All photographs are work of Federico Cairoli
Popular Articles
Popular articles from the community
Flamboyant House by Juliana Camargo + Prumo Projetos
Modern Brazilian house integrating existing tree, pool, and volumes with glass, wood, and transitional spaces blending interior, exterior, and landscape seamlessly.
Atelier Macri Concept Store Interior Design by CASE-REAL
Atelier Macri store features a "ko" counter, walnut wood details, cork displays, blending retail, gallery, and seamless customer experiences.
A Contemporary Take on Iranian Residential Architecture
A modern interior design in Mashhad that reinterprets brick, light, and spatial flow to create a warm, contemporary residential architecture.
On the Brooks House by Monsoon Collective – A Contemporary Kerala Home Rooted in Tradition
Kerala home blending tradition and modernity with water-inspired design, brick architecture, courtyard planning, and sustainable rainwater harvesting strategies.
Similar Reads
You might also enjoy these articles
Top 15 Architecture Competitions to Enter in 2026
From student-friendly idea competitions to prestigious international awards, here are the best architecture competitions open for entries in 2026. Updated regularly.
DIY & Engineering in Computational Design : Enter the BeeGraphy Design Awards
Showcase Your Creativity with Computational Design and Open Source Projects

Innovative Design Solutions: Award-Winning Projects from Recent Architecture Competitions
Exploring award-winning architectural projects shaping the future of design, sustainability, and community.
Explore Architecture Competitions
Discover active competitions in this discipline
The International Standard for Design Portfolios
The Global Benchmark for Architecture Dissertation Awards
The Global Benchmark for Graduation Excellence
Challenge to design mud housing for contemporary communities
Comments (0)
Please login or sign up to add comments
No comments yet. Be the first to comment!