09WOMEN Suwon Store: A Celebration of Inclusive Retail Store Design
09WOMEN Suwon Store exemplifies inclusive retail store design, blending fluid architecture, intuitive spatial planning, and diversity-driven aesthetics for a welcoming shopping experience.
Redefining Retail Through Inclusivity
09WOMEN Suwon Store, designed by SUBTEXT, reimagines the modern retail experience through a commitment to inclusivity and self-expression. Located in Suwon-si, South Korea, this 80-square-meter space is more than just a clothing store—it is a statement on diversity and body positivity. The design reflects a philosophy that every woman, regardless of size or shape, should have the freedom to express her style with confidence.



Architectural Concept: From Zero to Nine, A Space for Everyone
Originally rooted in group purchasing, 09WOMEN has evolved into a brand that champions inclusivity. The name now symbolizes a spectrum of identities, with each digit from 0 to 9 representing a unique style. This philosophy is embedded into the store’s design, where numbers and curves play a crucial role in shaping the spatial experience.


Curved architectural elements define the space, appearing in walls, fixtures, and signage. The smooth, flowing lines mirror the elegance of diverse body shapes, reinforcing the brand’s message of self-acceptance. Light installations shaped like numbers subtly guide customers through the store, creating a seamless and intuitive shopping journey.


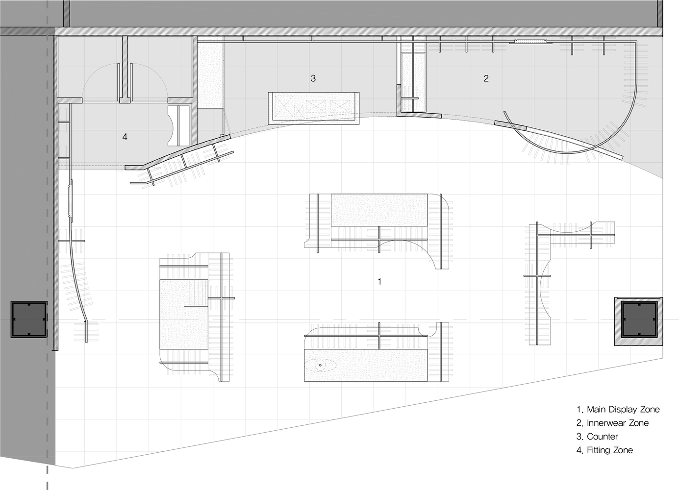
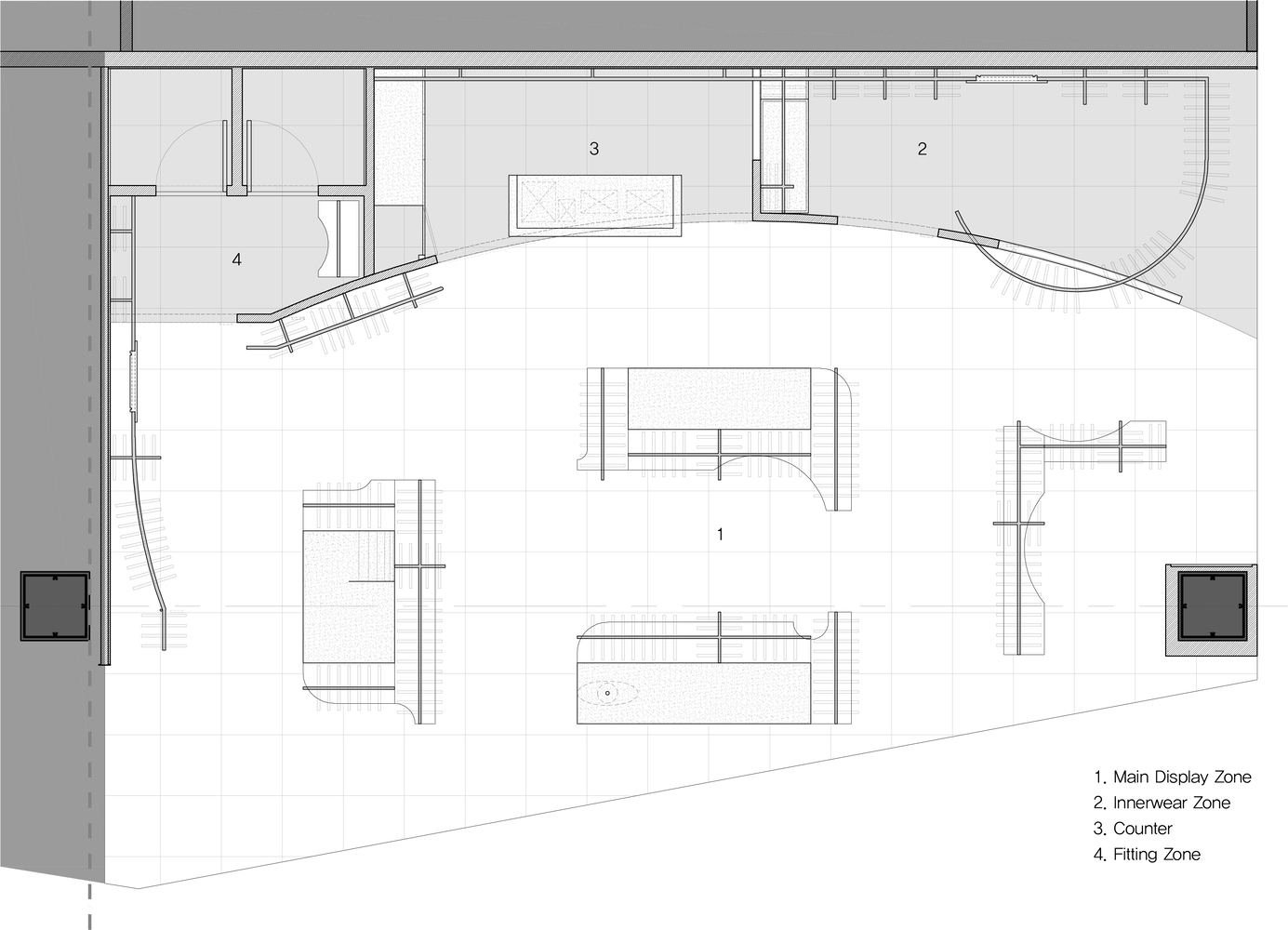
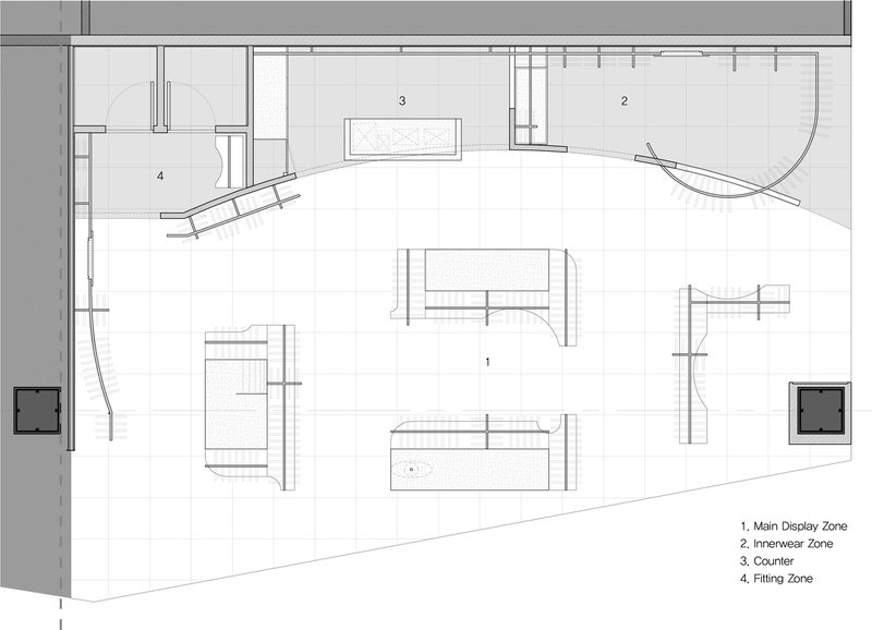
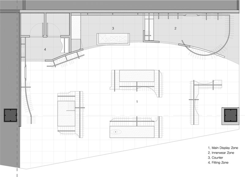
A Thoughtful Spatial Layout for Seamless Shopping
The store is carefully divided to enhance both aesthetic appeal and functionality. The front section showcases products on an elegant display wall, inviting customers to explore freely. The back area houses practical zones, including the counter, fitting rooms, and an intimate innerwear section, ensuring a well-structured yet fluid spatial organization.


Hangers extending from the walls blend effortlessly with the interior, forming a natural extension of the architecture. This seamless integration allows products to be displayed with clarity, reducing clutter while maintaining an inviting atmosphere. The design prioritizes accessibility, ensuring every shopper feels comfortable navigating the space.


A Palette That Reflects Diversity
The store’s color scheme plays a crucial role in reinforcing its message of inclusivity. A neutral beige palette dominates the interior, symbolizing the diverse range of skin tones and creating a welcoming, borderless aesthetic. The warm and earthy tones cultivate a sense of harmony, ensuring that the space feels universally inviting.



The lighting design further enhances the experience, with soft, diffused illumination that highlights the store’s architectural curves. By avoiding harsh contrasts, the lighting fosters a comfortable and inclusive environment, aligning with the brand’s commitment to self-empowerment.



Redefining Beauty Standards Through Design
09WOMEN Suwon Store is more than just a retail space—it is an architectural embodiment of evolving beauty standards. The design seamlessly integrates brand philosophy with spatial experience, ensuring that every visitor feels represented and valued. By embracing inclusive retail store design, SUBTEXT has crafted an environment that empowers women to celebrate their individuality while enjoying a seamless, immersive shopping experience.


Through thoughtful design, intuitive spatial planning, and a strong commitment to diversity, 09WOMEN sets a new benchmark for modern retail spaces. It proves that architecture can be a powerful tool in shaping cultural narratives, breaking down barriers, and redefining how beauty is perceived in the retail landscape.


All Photographs are works of Ki-Woong Hong
Popular Articles
Popular articles from the community
Solar Steam: A Climate-Responsive Architecture That Redefines the Monument
A climate-responsive memorial architecture that transforms heat, decay, and time into a living system reflecting humanity’s ecological impact.
Split House: A Compact Urban Home Blending Privacy, Light, and Flexible Living in Japan
Compact Japanese home featuring DOMA space, flexible café potential, passive lighting, privacy zoning, and sustainable urban living design.
Inverted Architecture Installation by Studio Link-Arc: Exploring the Intersection of Architecture and Living Organisms
Inverted Architecture Installation by Studio Link-Arc blends mycelium, sustainability, inverted design, ecological cycles, and urban adaptive architecture in Shenzhen.
Fifth NRE Jazz Club – De Bever Architecten: Eindhoven’s Revitalized Cultural Hub
Historic gas factory transformed into Fifth NRE Jazz Club blending modern sustainability, jazz culture, dining, and heritage architecture seamlessly.
Similar Reads
You might also enjoy these articles
The Ken Roberts Memorial Delineation Competition (Krob)
As the most senior architectural drawing competition currently in operation anywhere in the world, it draws hundreds of entries each year, awarding the very best submissions in a series of medium-based categories.
Waterfront Redevelopment and Urban Revitalization in Mumbai: Forging a New Dawn for Darukhana
A transformative waterfront redevelopment project reimagining Darukhana’s shipbreaking heritage into an inclusive urban future.
OUT-OF-MAP: A Call for Postcards on Feminist Narratives of Public Space
Rhizoma Design and Research Lab invites artists, designers, architects, researchers, and students to reflect on how feminist perspectives can reshape public space. Selected works will be exhibited in Barcelona, October 2026. Submissions open until 15 April 2026.
Documentation Work on Buddhist Wooden Temple
Architectural syncretism and cultural hybridity: A comparative study of the Buddhist temples in Chattogram Hill tracks
Explore Architecture Competitions
Discover active competitions in this discipline
The International Standard for Design Portfolios
The Global Benchmark for Architecture Dissertation Awards
The Global Benchmark for Graduation Excellence
Challenge to reimagine the Iron Throne
Comments (0)
Please login or sign up to add comments
No comments yet. Be the first to comment!