A Living School for a Changing Climate: Simone Veil School Complex, Tremblay-en-France by Gaëtan Le Penhuel Architectes
A sustainable school complex redefining the schoolhouse through shared spaces, natural materials, bioclimatic design, and community-oriented architecture.
Reimagining the Contemporary Schoolhouse
Completed in 2025, the Simone Veil School Complex by Gaëtan Le Penhuel Architectes embodies a progressive vision for educational architecture in the face of the climate emergency. Awarded the prestigious Équerre d’Argent 2025, the project departs from standardized school models, reinterpreting the idea of the “schoolhouse” as an open, shared, and environmentally responsible living environment.

Located in a calm residential neighborhood of detached houses on the southern edge of Tremblay-en-France, the complex is conceived not as an isolated institution but as a civic place—open to pupils, preschoolers, and the wider community.

A Compact yet Generous Educational Program
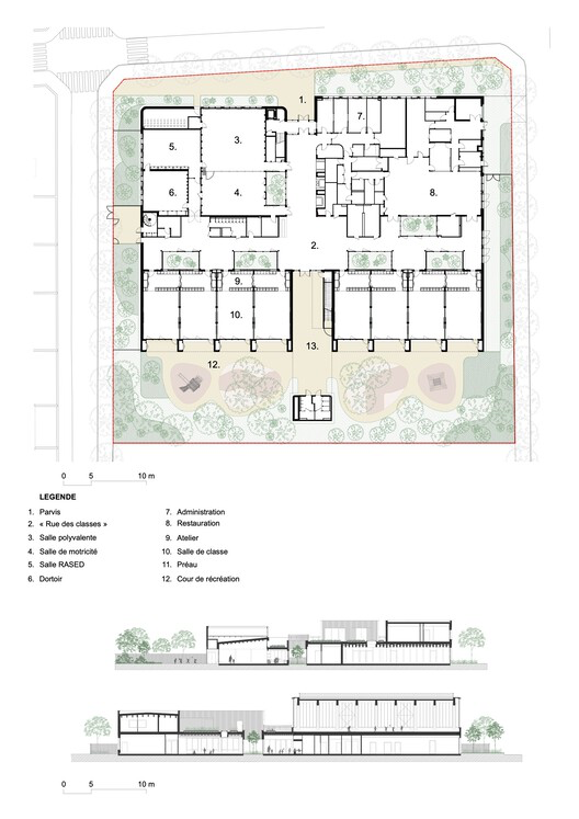
Within a footprint of 2,400 m², the school accommodates eight classrooms, a multipurpose room, a school restaurant, administrative offices, and a caretaker’s apartment. A distinctive feature is the rooftop playing field, shared with neighborhood associations, reinforcing the building’s role as a collective asset beyond school hours.


The city’s ambition was to replace the traditional leisure center model with expanded classrooms and shared common spaces. As a result, all areas of the school are collectively used by kindergarten and elementary pupils, allowing the same floor area to offer a more spacious, flexible, and comfortable learning environment.

Structuring the School Around Shared Spaces
At the heart of the complex lies a generous lobby oriented north–south, connecting the entrance directly to the playground. Far from being a simple circulation space, this lobby functions as a genuine living room for the school—a place for learning, exchange, and informal gathering.

Three alcoves with different spatial configurations punctuate this central space, encouraging diverse forms of appropriation and learning. These areas support alternative pedagogical practices, group work, and moments of calm within the daily rhythm of school life.


Two Axes, One Cohesive Whole
A second major axis—the “street of classrooms”—runs east to west through the building. Divided in two by a large interior play area, it organizes four classrooms on each side, each paired with a patio. Vestibules and cloakrooms mark the entrance to every classroom, integrating storage and playful elements that can be used for both educational and recreational activities.

At the intersection of the two main axes, the interior play area becomes the true center of the school. This generous, multipurpose space supports a wide range of uses: welcoming preschoolers in the morning and evening, hosting exhibitions and performances, and providing shelter during inclement weather while complementing the outdoor playground.


Classrooms Designed for Light, Air, and Flexibility
Each classroom is dual-aspect, benefiting from abundant natural light and cross-ventilation. To the north, patios bring in soft daylight and frame calm, shared wooden spaces between adjacent classrooms. To the south, classrooms open directly onto the playground, supporting more collective and active learning modes.


Every classroom also enjoys access to a “private” outdoor play area overlooking the shared playground. Shaded transitional spaces blur the boundary between inside and outside, extending the classroom into the landscape and improving circulation flows throughout the school.


Landscape as a Learning Tool
The playground, shaded by a line of trees, is shared between kindergarten and elementary pupils. Conceived as a green setting, it encourages outdoor play, discovery, and interaction with nature. On the roof, a dedicated biodiversity area includes vegetable-growing tubs and large picnic tables, supporting hands-on learning related to ecology and food production.


The rooftop sports field is accessible during recess, promoting physical activity while reinforcing the idea of the roof as an active, inhabited surface rather than a technical leftover.

Making Sustainability Visible
Environmental commitment is central to the project and deliberately expressed through material choices and building performance. Load-bearing stone façades sourced from the Bonneuil-en-Valois quarry—less than 60 km from the site—provide strong thermal inertia while giving the building a sculptural, enduring presence.


Between classrooms, mud bricks integrated into the wooden structure highlight the use of natural and bio-sourced materials. Patios distributed throughout the plan ensure excellent daylighting, natural ventilation, and comfortable humidity levels across all spaces.


The building goes beyond energy neutrality: photovoltaic panels on the roof of the sports area generate more energy than the school consumes. The remaining roof surfaces are planted, improving thermal performance, retaining rainwater, and offering pleasant views to neighboring residents.

A School as a Shared, Sustainable Habitat
The Simone Veil School Complex demonstrates how educational architecture can respond simultaneously to pedagogical evolution, environmental responsibility, and social openness. By transforming circulation spaces into living areas, integrating landscape into daily learning, and making sustainability tangible, the project proposes a school that is not only a place of instruction, but a shared habitat—one that prepares children to inhabit a changing world.


All the Photographs are works of Vladimir de Mollerat du Jeu