Accessible Motel Architecture: Nuu Auge Suite by Rodapé Arquitetura
A redefined motel suite prioritizing accessibility, inclusivity, and intimacy, showcasing Rodapé Arquitetura’s innovative approach to modern design.
Rethinking the Motel Experience
The Nuu Auge Suite, designed by Rodapé Arquitetura and led by architect Luciana Ligeiro, redefines the traditional concept of motels in Brazil. Located in Tatuapé, Brazil, this innovative project challenges the boundaries of motel design by emphasizing accessibility, inclusivity, and a reimagined approach to intimacy. Completed in 2024, the suite combines research-driven architecture with a focus on user diversity, transforming the motel experience into one that is light, playful, and accommodating to all.



Research as the Foundation of Design
Rodapé Arquitetura approached the Nuu Motel project with a unique methodology rooted in research. This comprehensive process delved into the cultural and architectural history of Brazilian motels, analyzing common perceptions and reinterpreting them to create a contemporary and inclusive design. The goal was to move beyond the singular focus on sex and to redefine the motel space as a platform for diverse forms of intimacy and pleasure.


The research revealed that anonymity and privacy are core elements of the Brazilian motel experience. By preserving these characteristics while introducing innovative design elements, the project re-signifies the role of motels as spaces for exploration and experimentation, accommodating various needs and desires.


Accessibility Beyond Standards
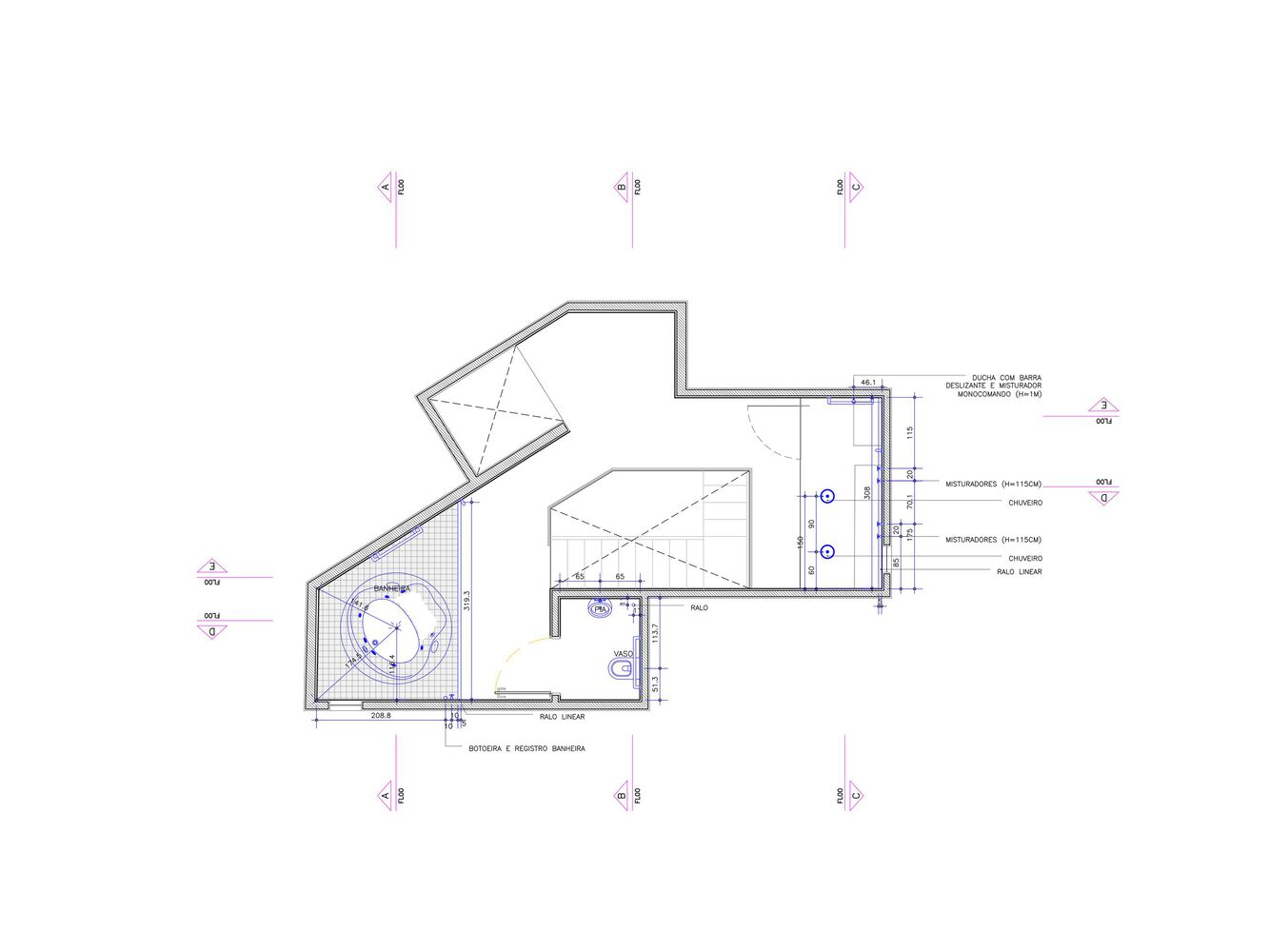
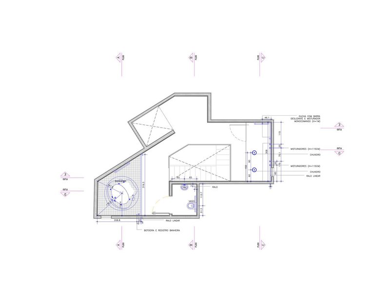
A significant challenge of the Nuu Auge Suite was addressing accessibility in a way that transcends the basic parameters set by technical standards such as ABNT. The design prioritizes the relationship between bodies and space, recognizing that a truly accessible space must cater to the diverse ways people exist and experience intimacy.


In this suite, accessibility is redefined to include not only physical ease of use but also the freedom to experiment and engage in varied practices. The design incorporates features that support a wide range of sexual performances and body types, ensuring inclusivity and comfort.


Materials and Space as Extensions of the Body
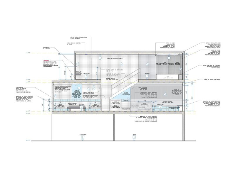
The suite's design explores the potential of material elements such as glass, mirrors, and beds to act as extensions of the human body. These architectural features function as "prosthetics," enhancing the body's capacity for movement, interaction, and pleasure. By blurring the boundaries between the body and its environment, the design creates a dynamic space that encourages exploration and redefines intimacy.


The interplay of materials is central to this concept. Glass walls create a sense of openness while maintaining privacy. Mirrors amplify the perception of space and invite users to engage with their surroundings in unconventional ways. Every element of the suite is carefully curated to challenge traditional norms and expand possibilities for interaction.


A Space for Plurality and Experimentation
The Nuu Auge Suite is designed as a platform for plural occupations and appropriations, accommodating diverse identities, orientations, and practices. The architecture challenges conventional notions of gender and sexuality, offering a space that embraces fluidity and individuality.


The suite’s spatial layout encourages users to interact with their environment and with each other. By breaking down barriers between inside and outside, public and private, the design fosters a sense of freedom and experimentation. The result is a motel suite that is not just a room but an immersive experience that adapts to the needs of its occupants.



Crafting an Inclusive Vision
Rodapé Arquitetura’s vision for the Nuu Auge Suite highlights the importance of inclusivity in contemporary architecture. The project demonstrates how thoughtful design can transform a space into one that is welcoming and empowering for all users. By prioritizing accessibility, inclusivity, and experimentation, the suite serves as a model for future projects that seek to redefine traditional spaces.



Through innovative use of materials, reinterpreted design elements, and a commitment to research-driven architecture, the Nuu Auge Suite exemplifies how motels can evolve to meet the needs of a changing society. It is a space where intimacy and architecture converge, offering an environment that is both functional and transformative.

All Photographs are works of Carolina Lacaz
Popular Articles
Popular articles from the community
Inverted Architecture Installation by Studio Link-Arc: Exploring the Intersection of Architecture and Living Organisms
Inverted Architecture Installation by Studio Link-Arc blends mycelium, sustainability, inverted design, ecological cycles, and urban adaptive architecture in Shenzhen.
Split House: A Compact Urban Home Blending Privacy, Light, and Flexible Living in Japan
Compact Japanese home featuring DOMA space, flexible café potential, passive lighting, privacy zoning, and sustainable urban living design.
Fifth NRE Jazz Club – De Bever Architecten: Eindhoven’s Revitalized Cultural Hub
Historic gas factory transformed into Fifth NRE Jazz Club blending modern sustainability, jazz culture, dining, and heritage architecture seamlessly.
Free Architecture Competitions You Can Enter Right Now
No entry fees, real prizes. Here are the best free architecture competitions open for submissions in 2026.
Similar Reads
You might also enjoy these articles
The Ken Roberts Memorial Delineation Competition (Krob)
As the most senior architectural drawing competition currently in operation anywhere in the world, it draws hundreds of entries each year, awarding the very best submissions in a series of medium-based categories.
Waterfront Redevelopment and Urban Revitalization in Mumbai: Forging a New Dawn for Darukhana
A transformative waterfront redevelopment project reimagining Darukhana’s shipbreaking heritage into an inclusive urban future.
OUT-OF-MAP: A Call for Postcards on Feminist Narratives of Public Space
Rhizoma Design and Research Lab invites artists, designers, architects, researchers, and students to reflect on how feminist perspectives can reshape public space. Selected works will be exhibited in Barcelona, October 2026. Submissions open until 15 April 2026.
Documentation Work on Buddhist Wooden Temple
Architectural syncretism and cultural hybridity: A comparative study of the Buddhist temples in Chattogram Hill tracks
Explore Architecture Competitions
Discover active competitions in this discipline
The International Standard for Design Portfolios
The Global Benchmark for Architecture Dissertation Awards
The Global Benchmark for Graduation Excellence
Challenge to reimagine the Iron Throne
Comments (0)
Please login or sign up to add comments
No comments yet. Be the first to comment!