Bertrand Taquet Architects Ascends to New Heights with the Enchanting Belvedere Staircase
Can Bertrand Taquet Architects' Belvedere Stairs redefine the concept of architectural elegance?

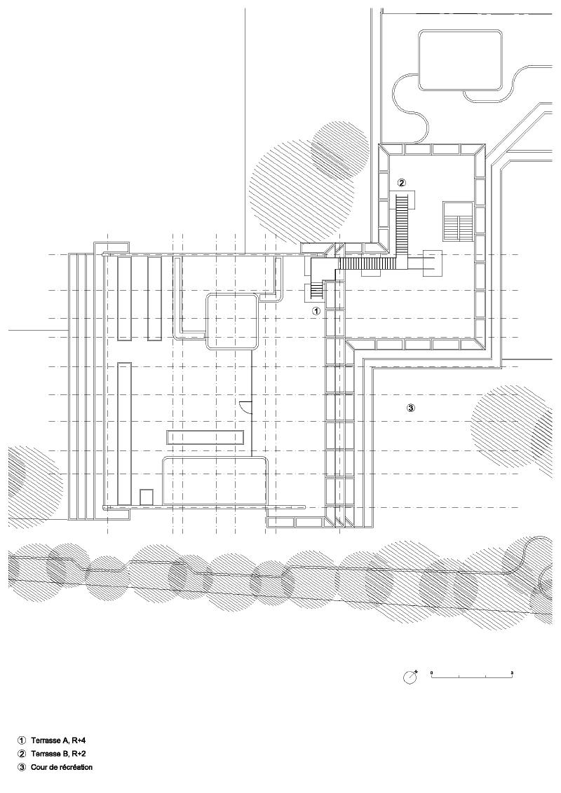
The Dunois school group was constructed in the latter half of the 1970s. It is situated in the Chevaleret district, a representation of the "slab urbanism" that was prevalent at the time. The school is bordered by the "Pyramides" towers, iconic structures of the 13th arrondissement of Paris. The school complex is designed in a staircase formation, with each level set back from the one below. The building was designed by the DTACC agency. The stairs are a major element of the architecture, serving a functional purpose while also offering multiple possibilities in its design. This major element can even be interpreted as an allegory of architecture, encompassing technicality, use, design, poetry and all other components of architectural thinking. Examples of this are the iconic staircases of Mies Van Der Rohe and Le Corbusier.
The Dunois staircase provides independent access to the "urban farm" roof developed and maintained by the association "Les fourmis qui Jardine". This structure features two flights of steps positioned perpendicularly, creating an easy pathway and offering a general view of all the green roofs. The tripod structure ensures its own stability, avoiding the need for major hooks that would affect the structure of the building, while also reducing installation costs. Furthermore, the tripod echoes the existing pyramid shape of the building and its sloping façade. The association is developing its activity on the roofs of the Dunois school group, providing a unique vertical landscape in the 13th arrondissement of Paris.
Linking two distinct areas, a two-flight staircase is constructed from a school whose facades are covered in vegetation. The white powder-coated staircase has a simple form that blends into the diverse environment. This useful and self-supporting object meets the need for lightness due to the low bearing capacity of the slabs it rests on. The aim is to create a strong element that stands out in the urban landscape. The lighting necessary to meet accessibility regulations is located in the stair stringers, giving it an almost ethereal appearance in periods without natural light.

















Architects: Bertrand Taquet Architectes
Year: 2022
Photographs: Antoine Seguin
Lead Architect: Bertrand Taquet
Contractor: Général Métal Edition
Popular Articles
Popular articles from the community
On the Brooks House by Monsoon Collective – A Contemporary Kerala Home Rooted in Tradition
Kerala home blending tradition and modernity with water-inspired design, brick architecture, courtyard planning, and sustainable rainwater harvesting strategies.
Louis Malle Cinema: A Limestone Cultural Landmark Revitalizing Community Life in Prayssac
Limestone cinema extension with public forecourt, blending heritage and modern design to create flexible cultural spaces and strengthen community interaction.
Atelier Macri Concept Store Interior Design by CASE-REAL
Atelier Macri store features a "ko" counter, walnut wood details, cork displays, blending retail, gallery, and seamless customer experiences.
An Miên Lumière Cafe by xưởng xép, Ho Chi Minh City, Vietnam
An industrial-inspired café where layered steel and warm light create a dynamic, immersive environment shaped by reflection, depth, and perception.
Similar Reads
You might also enjoy these articles
The Ken Roberts Memorial Delineation Competition (Krob)
As the most senior architectural drawing competition currently in operation anywhere in the world, it draws hundreds of entries each year, awarding the very best submissions in a series of medium-based categories.
A Contemporary Take on Iranian Residential Architecture
A modern interior design in Mashhad that reinterprets brick, light, and spatial flow to create a warm, contemporary residential architecture.
Franche-Comté Advanced School of Engineering by Dominique Coulon & associés, Besançon
A flexible engineering school immersed in woodland, combining concrete minimalism, adaptable spaces, and natural light to support evolving educational environments.
Documentation Work on Buddhist Wooden Temple
Architectural syncretism and cultural hybridity: A comparative study of the Buddhist temples in Chattogram Hill tracks
Explore Architecture Competitions
Discover active competitions in this discipline
The International Standard for Design Portfolios
The Global Benchmark for Architecture Dissertation Awards
The Global Benchmark for Graduation Excellence
Challenge to design a portable theatre
Comments (0)
Please login or sign up to add comments
No comments yet. Be the first to comment!