BRITA 131 Art Space by Jiangjie Office: Rethinking Urban Art Space Design in Hangzhou
A transformative urban art space in Hangzhou that redefines gallery design through openness, flexibility, and community integration.
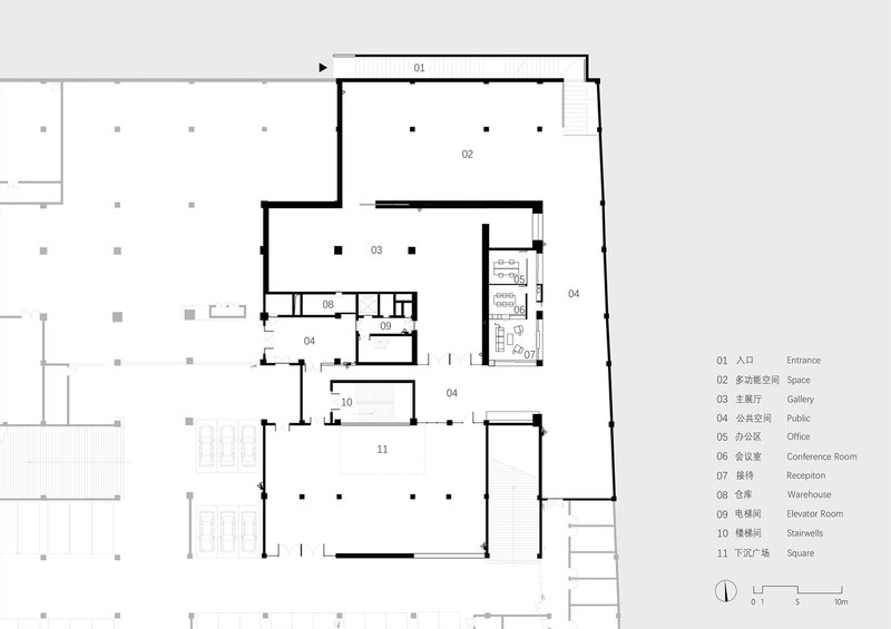
BRITA 131 Art Space, located in Hangzhou’s Xihu District, represents a new paradigm in urban art space design. Designed by Jiangjie Office, this 2,000 m² adaptive reuse project transforms a long-abandoned underground structure into a vibrant, multi-functional cultural hub within the broader BAC Art Community. With a vision to dissolve boundaries between art and the city, the project establishes a new spatial typology for exhibition spaces rooted in openness, flexibility, and interaction.




A Non-Profit Vision Rooted in the Urban Fabric
Initiated by founder Xiao Jun, BRITA 131 Art Space is more than a gallery—it is a public platform for creative dialogue. Situated within a once-derelict building, the space is embedded in a 17.48-acre site that integrates art teaching, creative offices, a design hotel, commercial street, and communal amenities. Within this context, the art space becomes a critical node for connecting young artists with the wider public, integrating art into daily life.





Spatial Transformation as Urban Strategy
The design by Jiangjie Office treats the intervention not as an isolated architectural gesture but as an urban strategy. Two key ground-level buildings—the Entrance Glass House and B131 Café—activate the pedestrian flow, engaging with the neighborhood and creating seamless transitions from street to gallery. A sunken courtyard replaces a disused bicycle ramp on the south side, allowing daylight to flood into the underground levels and establishing a versatile outdoor venue for performances, openings, and casual encounters.





Reframing the Entry: A Colonnaded Ritual
On the north side, a former bicycle path has been transformed into the museum’s primary entry. The heavy steel frame was removed, replaced by a trapezoidal roof supported by 23 rhythmic columns. This colonnade offers a ceremonial threshold while visually connecting the entrance with the adjacent café across the street, enabling the exhibition space to function as part of a social urban circuit, rather than as a cloistered institution.





Underground Flexibility and Curatorial Freedom
The underground gallery space features a zigzag circulation system, comprising two flexible exhibition halls. The design reflects a minimal intervention approach, respecting the original site’s spatial constraints while introducing a layout conducive to contemporary curatorial practices. Unlike traditional white cubes, this gallery supports informal gatherings, social interactions, and experimental displays. The zigzag form encourages visitors to discover the art through movement, breaking away from rigid chronological narratives and offering a more personal, fluid viewing experience.


Blurring Boundaries Between City and Culture
BRITA 131 is not confined by the idea of a conventional museum. Its design actively blurs the lines between architecture and city life, between formal exhibitions and casual social engagement. The Entrance Plaza, the sunken courtyard, and the B131 Café work together to create a continuous public realm that is welcoming to both art-goers and passersby. This inclusive strategy not only enhances foot traffic but redefines the museum as a part of everyday life.



Material Restraint and Constructive Precision
The material palette of BRITA 131 is deliberately restrained—exposed concrete, granular finishes, and simple steel structures emphasize the site’s raw character while highlighting the architectural clarity of the intervention. Every element is precisely constructed to support a flexible program, allowing the architecture to become a durable yet subtle canvas for art and interaction. The spatial tone is relaxed and informal, reflective of the gallery’s mission to cultivate a young and accessible art environment.




A Model for Future Urban Art Space Design
Through its careful balancing of public openness, curatorial adaptability, and architectural subtlety, BRITA 131 sets a new benchmark for urban art space design. It demonstrates how art institutions can integrate meaningfully with their urban surroundings, supporting not just cultural consumption but community formation and spontaneous gathering. Rather than being a static museum, BRITA 131 is a dynamic social condenser, where architecture and art are tools for fostering civic life.


All Photographs are works of Wen Studio
Popular Articles
Popular articles from the community
Fifth NRE Jazz Club – De Bever Architecten: Eindhoven’s Revitalized Cultural Hub
Historic gas factory transformed into Fifth NRE Jazz Club blending modern sustainability, jazz culture, dining, and heritage architecture seamlessly.
Split House: A Compact Urban Home Blending Privacy, Light, and Flexible Living in Japan
Compact Japanese home featuring DOMA space, flexible café potential, passive lighting, privacy zoning, and sustainable urban living design.
Inverted Architecture Installation by Studio Link-Arc: Exploring the Intersection of Architecture and Living Organisms
Inverted Architecture Installation by Studio Link-Arc blends mycelium, sustainability, inverted design, ecological cycles, and urban adaptive architecture in Shenzhen.
Similar Reads
You might also enjoy these articles
Free Architecture Competitions You Can Enter Right Now
No entry fees, real prizes. Here are the best free architecture competitions open for submissions in 2026.
Top 15 Architecture Competitions to Enter in 2026
From student-friendly idea competitions to prestigious international awards, here are the best architecture competitions open for entries in 2026. Updated regularly.
DIY & Engineering in Computational Design : Enter the BeeGraphy Design Awards
Showcase Your Creativity with Computational Design and Open Source Projects

Innovative Design Solutions: Award-Winning Projects from Recent Architecture Competitions
Exploring award-winning architectural projects shaping the future of design, sustainability, and community.
Explore Architecture Competitions
Discover active competitions in this discipline
The International Standard for Design Portfolios
The Global Benchmark for Architecture Dissertation Awards
The Global Benchmark for Graduation Excellence
Challenge to reimagine the Iron Throne
Comments (0)
Please login or sign up to add comments
No comments yet. Be the first to comment!