Cabin 3PR By R21 Arkitekter
Modular Norwegian timber cabin featuring a flexible 3×3 grid, exposed structure, and sustainable design integrated harmoniously within forest landscape.
Compact Cabin Architecture Rooted in Flexibility and Sustainability
Cabin 3PR, also known as “Tre på rad,” by R21 Arkitekter is a contemporary Norwegian cabin designed to unite architectural quality, spatial flexibility, and environmental sustainability within a compact footprint. Set within Norway’s natural landscape, the project reflects a growing movement in Scandinavian architecture that prioritizes minimal environmental impact, modular construction, and honest material expression.
The concept began with a simple yet ambitious goal: to design a compact, adaptable cabin that maximizes spatial experience while remaining environmentally responsible. The result is a refined timber structure that merges functionality with strong tectonic clarity.


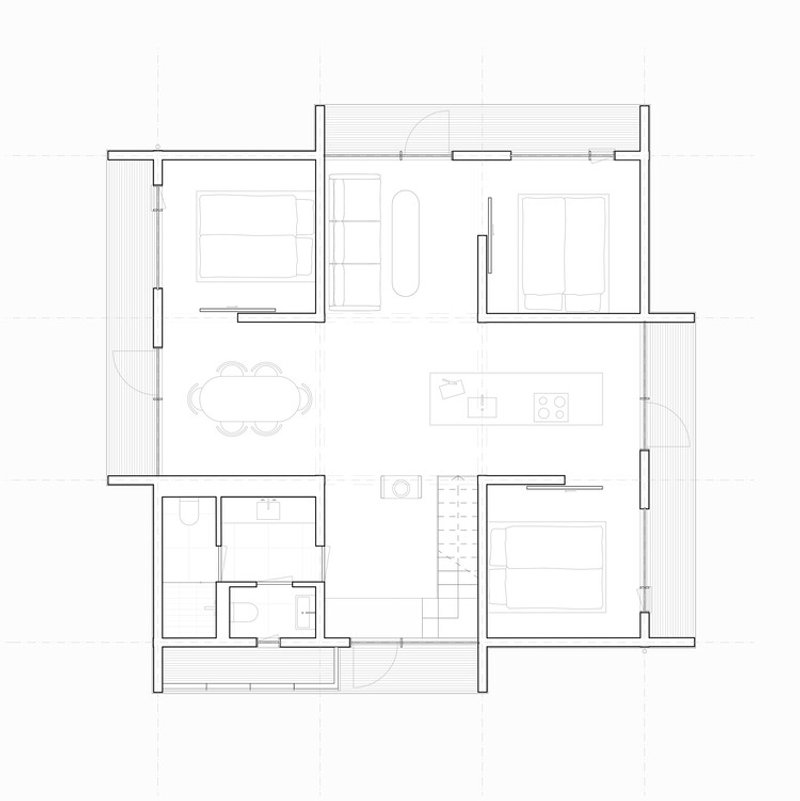
Modular Design: The 3×3 System
At the heart of Cabin 3PR is a modular 3×3 unit system. This carefully developed grid forms the spatial and structural logic of the building. The module can be mirrored or rotated, allowing the cabin to respond intelligently to varying site conditions — whether shaped by sunlight, views, topography, access routes, or surrounding forest density.
This modular cabin architecture approach offers remarkable flexibility. It enables adaptation to different plots across Norway’s diverse terrains, from wooded landscapes to open clearings, while maintaining architectural consistency.
The design demonstrates how modular housing systems can deliver both efficiency and strong aesthetic character, redefining how small-scale residential cabins are conceived.


Structure as Architecture
A defining quality of Cabin 3PR is its structural honesty. The load-bearing timber framework is not hidden behind layers of finishing; instead, it defines the building’s identity. Beams, joints, and wooden surfaces are clearly articulated, expressing the logic of construction.
This approach aligns with principles of tectonic architecture — where structure and form are inseparable. The cabin’s formal coherence emerges directly from its construction method, ensuring clarity and authenticity throughout the project.
Nothing is concealed. Every architectural decision responds to the truth of materials and structure, creating a building that feels both grounded and timeless.


Material Palette and Interior Atmosphere
Wood dominates both exterior and interior spaces, reinforcing the cabin’s connection to its natural Norwegian context. The timber façade blends seamlessly into the forest setting, while the interior reveals warm wooden surfaces, exposed beams, and clean detailing.
The kitchen and living areas maintain a minimalist Scandinavian design language. Natural light filters through precisely positioned openings, enhancing the warmth of the wood and emphasizing the cabin’s spatial proportions.
The compact plan does not compromise comfort; instead, it intensifies the spatial experience through proportion, material continuity, and thoughtful detailing.


Sustainable Scandinavian Cabin Design
Cabin 3PR embodies sustainable cabin architecture principles:
- Compact footprint to reduce land impact
- Modular construction for efficiency
- Timber as a renewable primary material
- Adaptability to different site orientations
- Long-term durability through honest construction
By integrating sustainability into both concept and construction, R21 Arkitekter demonstrates how modern Norwegian cabins can balance environmental responsibility with architectural refinement.


Architectural Significance
Cabin 3PR stands as a contemporary example of Scandinavian modular cabin design. Through its 3×3 grid system, structural clarity, and timber tectonics, the project offers a flexible and sustainable solution for small-scale residential architecture in Norway.
It proves that compact architecture, when carefully designed, can achieve spatial richness, aesthetic integrity, and environmental sensitivity without excess.


All the photographs are works of
Ruben Ratkusic