Caffè Nazionale by AMAA: A Masterpiece of Historic Café Restoration Architecture in Italy
A richly layered restoration project blending history, materiality, and theatrical design in Arzignano’s iconic Caffè Nazionale by AMAA.
Embracing Memory and Modernity in Arzignano
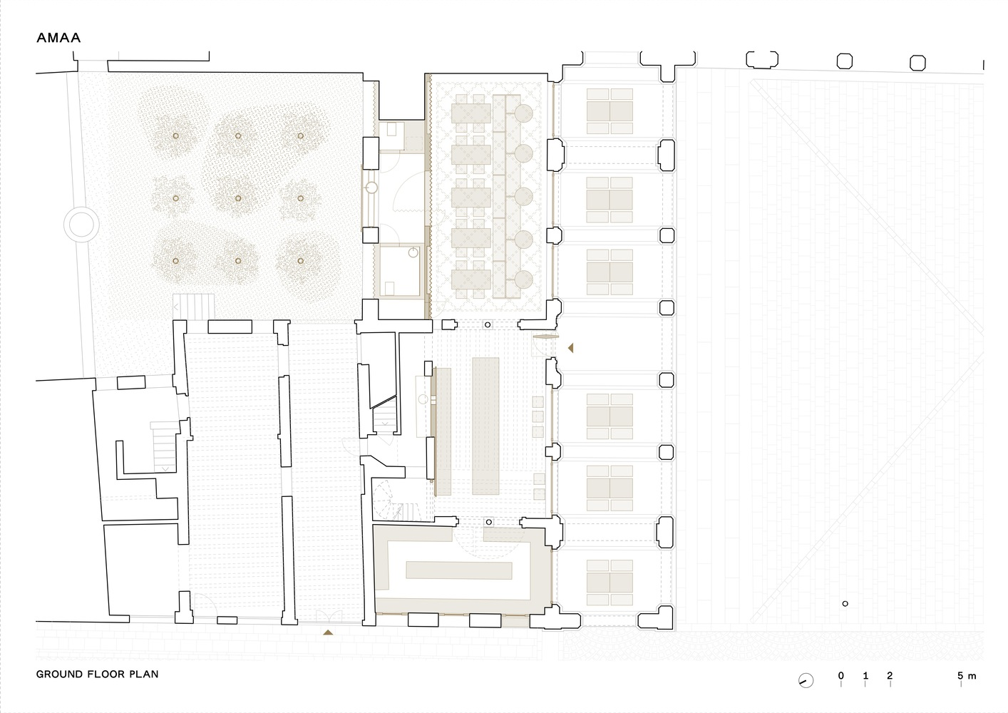
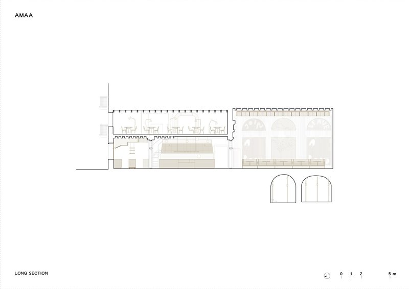
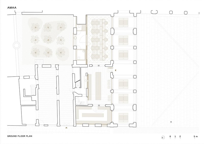
In the heart of Arzignano, Northern Italy, the recently restored Caffè Nazionale is a compelling example of historic café restoration architecture that bridges the past and present. Designed by AMAA - Collaborative Office For Research And Development, the 565-square-meter project revives a cultural landmark by intricately weaving historical memory with modern materiality, spatial transitions, and artistic collaboration.




A Civic Dialogue Through Architecture
Located beneath the colonnade of the 19th-century City Hall by Antonio Caregaro Negrin, the entrance of Caffè Nazionale creates a civic threshold between the square and the interior space. AMAA establishes an active dialogue with Arzignano’s urban fabric, transforming the café into both a public interface and a layered narrative environment. The pivoting entrance door, forged in burnished iron with a green serpentine marble handle by artist Alessandro Neretti (Nero), is the only opaque feature along the façade—an intentional sculptural gesture signaling transformation.



Layers of Time: A Theatrical Sequence of Spaces
Within the café, history unfolds through a sequence of spatial vignettes akin to theatrical sets. Fragments from past interventions coexist with AMAA’s refined design strategies. A standout element is the stainless steel pleated wall that functions as a modern curtain, filtering views of the internal courtyard while acting as a stage for temporary artworks by Stefan Marx. These theatrical layers reflect the architectural team’s deep engagement with time, place, and performative spatiality.




Material Memory and Acoustic Intimacy
AMAA’s use of historic café restoration architecture principles is evident in their approach to materials and surfaces. The original mosaic floor and restored coffered ceiling—crafted from multilayered wood for both acoustic and lighting control—contrast with exposed and unfinished areas. These raw surfaces intentionally preserve signs of aging, transforming imperfections into visual narratives that enrich the space.




A Seamless Indoor-Outdoor Relationship
At the core of the spatial sequence is a birch garden—a metaphysical and sensory retreat nestled within the interior courtyard. Acting as a final stage in the theatrical progression, the garden is visible from multiple vantage points within the café, reinforcing AMAA’s concept of architectural layering and environmental continuity.



Artisanal Craft and Custom Furnishing
AMAA’s collaboration with artists and craftsmen yields a unified design language throughout the café. The custom-built tables and benches—developed with artist Nero and inspired by New York subway benches and Donald Judd’s minimalism—introduce a contemporary rhythm that echoes the space’s layered temporality. Larger tables define the restaurant zones, while smaller ones extend outward to engage the public square, blurring the edge between interior hospitality and urban life.



The Art of Incompletion
Caffè Nazionale is not polished to perfection; rather, it is celebrated for its deliberate unfinishedness. AMAA’s architectural language embraces construction visibility, transparency of process, and respect for decay. From exposed structural junctions to partitions that reveal rather than disguise, every design move honors the authenticity of the site and its continuous evolution.



Image and Process as Design Tools
Photography in this project, curated as part of the design process, documents the café’s transformation rather than only its completed form. This aligns with AMAA’s philosophy of treating images and physical models as iterative design tools, enriching their evolving research on the “unfinished” and spatial storytelling.

A Living Palimpsest of Architecture
Caffè Nazionale by AMAA is a benchmark in historic café restoration architecture, offering a model of how memory, material honesty, and urban connectivity can converge in a contemporary hospitality space. Rather than imposing a singular vision, the project invites users into a layered, immersive experience that resonates with time, place, and public life.

All Photographs are works of Mikael Olsson
Popular Articles
Popular articles from the community
Alton Cliff House: A Harmonious Retreat by f2a Architecture in Lake Country, Canada
Alton Cliff House blends corten steel, prefabrication, and sustainable design, creating a luxurious, energy-efficient retreat perched on Canadian cliffs.
Split House: A Compact Urban Home Blending Privacy, Light, and Flexible Living in Japan
Compact Japanese home featuring DOMA space, flexible café potential, passive lighting, privacy zoning, and sustainable urban living design.
The Ken Roberts Memorial Delineation Competition (Krob)
As the most senior architectural drawing competition currently in operation anywhere in the world, it draws hundreds of entries each year, awarding the very best submissions in a series of medium-based categories.
Similar Reads
You might also enjoy these articles
Free Architecture Competitions You Can Enter Right Now
No entry fees, real prizes. Here are the best free architecture competitions open for submissions in 2026.
Top 15 Architecture Competitions to Enter in 2026
From student-friendly idea competitions to prestigious international awards, here are the best architecture competitions open for entries in 2026. Updated regularly.
DIY & Engineering in Computational Design : Enter the BeeGraphy Design Awards
Showcase Your Creativity with Computational Design and Open Source Projects

Innovative Design Solutions: Award-Winning Projects from Recent Architecture Competitions
Exploring award-winning architectural projects shaping the future of design, sustainability, and community.
Explore Architecture Competitions
Discover active competitions in this discipline
The International Standard for Design Portfolios
The Global Benchmark for Architecture Dissertation Awards
The Global Benchmark for Graduation Excellence
Challenge to reimagine the Iron Throne
Comments (0)
Please login or sign up to add comments
No comments yet. Be the first to comment!