Cakeology Cafe and Bakery: A Masterpiece of Innovative Cafe Design
Exploring Cakeology Cafe and Bakery's innovative design that marries the art of baking with modern architecture.
In the heart of Dubai, a new landmark emerges, redefining the essence of coffee shops through its groundbreaking design and conceptual brilliance. Cakeology Cafe and Bakery, envisioned and brought to life by the innovative architectural firm Tee Vee Eff, stands as a testament to the evolving landscape of cafe culture and design. With its opening in 2024, this 65 square meter space not only offers a fresh perspective on cafe design but also elevates the customer experience to an art form.

The Genesis of Cakeology Cafe and Bakery
The design of Cakeology Cafe and Bakery is a deliberate and thoughtful ode to the science and art of baking. Architects Rima Chalha and Tarlan Vaziri Farhani have ingeniously mapped the cafe's layout to mimic the cake-making process itself. From the moment patrons step through the door, they embark on a culinary journey that mirrors the stages of baking, culminating in the presentation of the final product. This approach not only enriches the customer experience but also serves as an educational tool, demystifying the complexities of baking.


The Heart of the Cafe
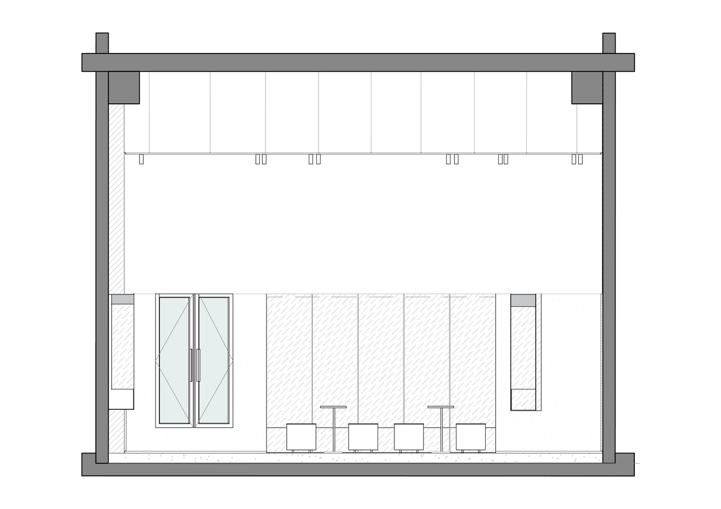
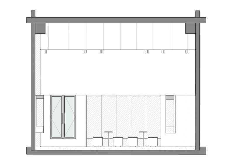
Central to the cafe's design is the coffee and pastry bar, illuminated by a bespoke translucent 3D stretch ceiling. This striking feature not only serves as the main lighting source but also symbolizes the beating heart of Cakeology. Surrounding this focal point, the cafe employs a pebbled finish and stainless steel elements to create a cohesive and tactile environment. The use of subdued-colored furniture adds warmth to the space, while built-in display boxes offer glimpses into the various stages of the baking process.


A Journey Through Design
As patrons navigate through the cafe, they are guided by the strategic placement of furniture and fixtures, designed to facilitate natural circulation and wayfinding. The journey concludes in a gallery-like space, where the fruits of the baking process are displayed in stainless steel boxes, echoing the industrial aesthetic of the cafe. This space is not just a place to savor delectable pastries and coffee; it's an invitation to appreciate the precision, creativity, and beauty of baking.


Redefining Cafe Culture
Cakeology Cafe and Bakery by Tee Vee Eff is more than just a coffee shop; it's a pioneering venture into the realm of innovative cafe design. Through its thoughtful layout, attention to detail, and commitment to quality, the cafe sets a new standard for the industry. It stands as a beacon of innovation in Dubai, inviting patrons to not only indulge in its offerings but to immerse themselves in an unparalleled architectural experience.
In a city known for its architectural marvels, Cakeology Cafe and Bakery adds another layer to Dubai's rich tapestry, blending the art of baking with cutting-edge design. As we look to the future of cafe culture, it's clear that spaces like Cakeology will lead the way, offering not just a cup of coffee, but a journey into the heart of creativity and design.


All the photographs are work of Oculis Project
Popular Articles
Popular articles from the community
The Ken Roberts Memorial Delineation Competition (Krob)
As the most senior architectural drawing competition currently in operation anywhere in the world, it draws hundreds of entries each year, awarding the very best submissions in a series of medium-based categories.
Louis Malle Cinema: A Limestone Cultural Landmark Revitalizing Community Life in Prayssac
Limestone cinema extension with public forecourt, blending heritage and modern design to create flexible cultural spaces and strengthen community interaction.
Flamboyant House by Juliana Camargo + Prumo Projetos
Modern Brazilian house integrating existing tree, pool, and volumes with glass, wood, and transitional spaces blending interior, exterior, and landscape seamlessly.
Treehouse Apartment: A Warm Timber Interior Blending Craft, Play, and Contemporary Living
Warm timber apartment with integrated treehouse, combining natural materials, craftsmanship, and playful design to create a flexible, family-oriented living environment.
Similar Reads
You might also enjoy these articles
Architectural Competition: Create a Luxury Waterfront Community in the UAE!
Mira Developments announces an open competition for the pre-concept design of Mira Coral Bay in Ras Al Khaimah, UAE
Parametric Design: What Can You Learn from the 1st Workshop of Beegraphy?
Discover the Fundamentals and Advanced Techniques of Parametric Design
Feast of flight factory
A new ecological order with sustainable food resources-insects
Beyond Blueprints : How Architecture Presentation Boards Define The Design Narratives?
Unveiling the Art and Strategy Behind Architectural Storytelling
Explore Architecture Competitions
Discover active competitions in this discipline
The International Standard for Design Portfolios
The Global Benchmark for Architecture Dissertation Awards
The Global Benchmark for Graduation Excellence
Challenge to reimagine the Iron Throne
Comments (0)
Please login or sign up to add comments
No comments yet. Be the first to comment!