Camellia Complex: Estudio I LZ's Mixed-Use Solution for High-Density Urban Living in Villa Allende
A compact mixed-use complex combining six two-bedroom homes and a transparent commercial unit, maximizing space, light, and urban connectivity in Villa Allende.
Located in the evolving urban fabric of Villa Allende, Argentina, the Camellia Residential and Commercial Complex by Estudio I LZ reinterprets compact living through a thoughtful balance of density, comfort, and contemporary spatial design. Completed in 2021 and spanning 430 m², the project integrates six two-bedroom homes with a dedicated commercial unit, creating a mixed-use development that aligns with the city’s growing demand for central, efficient, and connected living spaces.

Urban Context & Design Approach
Set on a 600 m² plot north of Villa Allende’s central district, the complex is surrounded by residential architecture undergoing continuous renewal. Its privileged location—steps away from shops, services, and public infrastructure—makes it ideal for young families, professionals, and local businesses seeking proximity and convenience.



The design challenge was to achieve high-quality architecture within a compact footprint, ensuring comfort, functionality, and spatial generosity without compromising density. Estudio I LZ accomplished this by organizing the units into a single staggered volume, subtly stepping along the natural slope of the street. This move generates visual rhythm, varied shadows, and a façade that resonates with the topographic character of the site.

Residential Units: Spatial Efficiency & Domestic Comfort
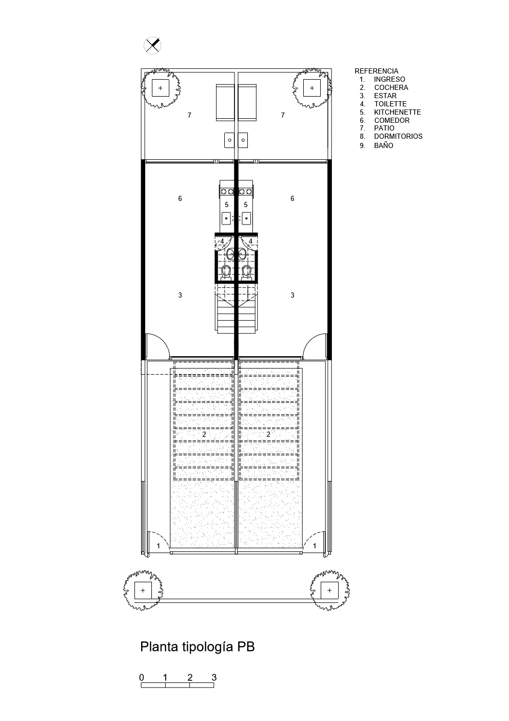
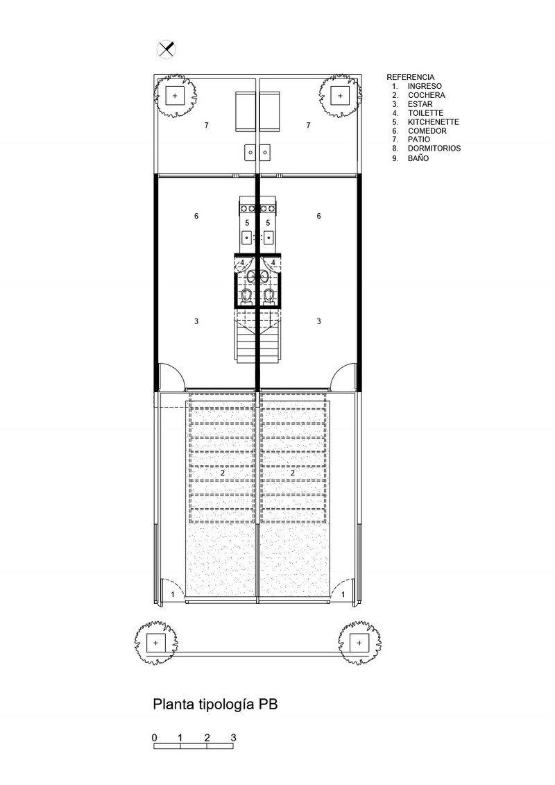
Each of the six homes measures 65 m², distributed across two levels:
- Upper Floor (Private Zone)Two bedrooms and a well-appointed bathroom shape an intimate, quiet space shielded from street activity.
- Ground Floor (Social Zone)A fluid, flexible layout integrates the kitchen, dining, and living areas into a continuous “tube-like” space that visually and functionally connects the front and rear courtyards.The front courtyard, also used as a garage, references the traditional entrance patios found in local housing.The rear patio offers private outdoor space for recreation, greenery, or relaxation.
- The front courtyard, also used as a garage, references the traditional entrance patios found in local housing.
- The rear patio offers private outdoor space for recreation, greenery, or relaxation.


This dual-courtyard strategy enhances natural light, cross ventilation, and spatial expansion—elements essential in compact living typologies.

Commercial Space: Transparency & Urban Activation
Facing the street corner, the 70 m² commercial unit introduces openness and activity. Designed as a transparent glass box, it completes the block’s corner, anchors the complex visually, and provides flexibility for various business programs. A mezzanine increases its versatility, while two service bathrooms support functional use.



Materiality & Architectural Language
The project's architectural language is rooted in simplicity, uniformity, and natural expression:
- White façades create visual calm, unity, and spaciousness.
- Granite mosaic, wood, and brick flooring introduce authenticity, durability, and texture.
- A traditional load-bearing masonry system paired with a metal roof structure ensures robustness, cost-efficiency, and ease of maintenance.


Subtle volumetric shifts on the upper floor generate a dynamic play of light and shadow, enhancing the development’s character while maintaining coherence across the ensemble.


An Urban Housing Model for Contemporary Living
The Camellia Complex emerges as a thoughtful response to the evolving needs of Villa Allende’s central district. By combining compact housing, commercial functionality, and contextual sensitivity, Estudio I LZ delivers a model that optimizes land use while respecting residential quality. Its clean lines, balanced material palette, and intelligent spatial sequencing exemplify human-centered, scalable architecture for growing urban environments.


All the Photographs are works of Gonzalo Viramonte