Coastal Architecture Design: The Rockbound House by Omar Gandhi Architect
Exploring the Rockbound House by Omar Gandhi Architect, a masterpiece of coastal architecture design blending resilience, innovation, and harmony with the Atlantic coastline.
A Refuge Amidst the Atlantic
The Rockbound House was envisioned as a sanctuary from the tumultuous world, a place of calm and connection to the shifting panorama of the bay designed by Omar Gandhi Architect. Positioned atop a rocky bluff, it offers unrivaled views of the ocean, islands, and the distant Peggy's Cove Lighthouse, all while safeguarding against the region's notorious winds and storms.


Resilient Design for a Changing Climate
The cornerstone of this project lies in its resilient design, ensuring the structure's durability against the unpredictable weather patterns characteristic of coastal environments. The architects selected materials that naturally weather over time, allowing the house to age gracefully and merge seamlessly with its natural setting. The strategic orientation of the living spaces parallels the water's edge, capturing panoramic views that celebrate the site's unique location.



Innovative Solutions Behind the Scenes
Engineering Excellence
The hidden genius of Rockbound House lies in its structural engineering. A challenge presented itself during construction with the discovery of a seam in the bedrock. A collaborative effort between the engineers and architects led to the implementation of a micro-pile system, ingeniously redistributing the building's load to ensure its stability against hurricane-force winds while maintaining an aesthetic of elegance and grace.



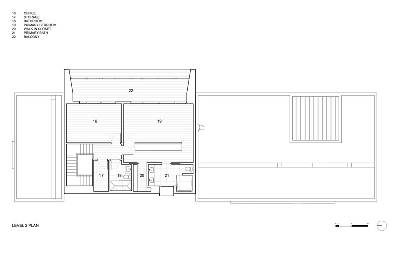
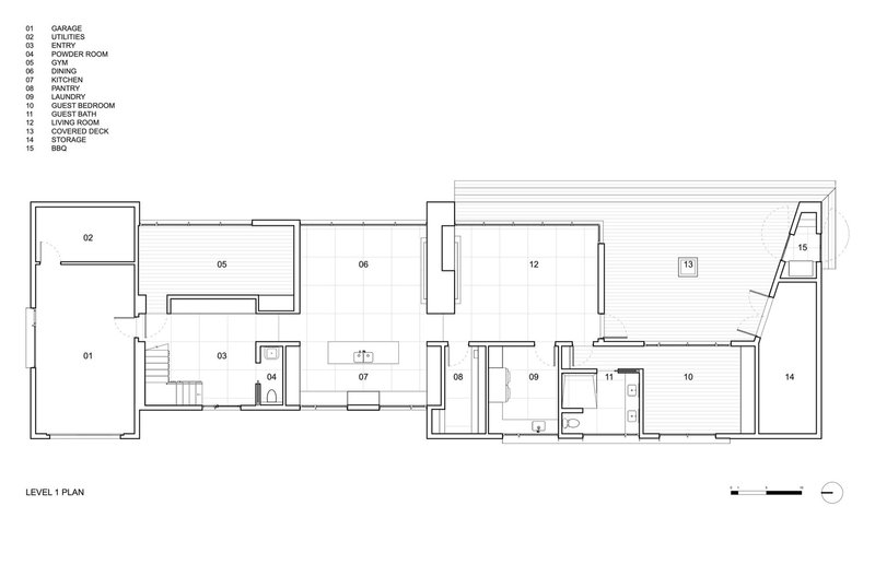
A Seamless Indoor-Outdoor Experience
Privacy and Views Intertwined
From the approach, Rockbound House presents a reserved facade, gradually revealing its openness and connection to the landscape. The transition from the entrance to the interior spaces unveils expansive views of the bay, with interior design elements that reflect the natural colors and textures of the coastal environment.



Living with the Landscape
The design incorporates large, covered decks that extend the living spaces into the outdoors, blending the boundaries between the interior and the natural world. The elevated bedroom volume offers a secluded retreat, fully immersed in the coastal scenery, providing a sense of floating above the rugged terrain.



Collaboration at the Core
A Vision Realized Through Teamwork
The realization of Rockbound House was a symphony of collaboration among a dedicated team of builders, consultants, and the clients themselves. Innovative design solutions, from steel-framed windows to hidden garage doors, were born from this collective effort, each detail meticulously planned to complement the architecture's overall narrative.






Conclusion: A Beacon of Coastal Architecture Design
The Rockbound House stands as a beacon of coastal architecture design, embodying the principles of resilience, integration with nature, and innovative engineering. It reflects the power of architecture to create spaces that are not only visually stunning but also deeply connected to their environment, offering a blueprint for future projects in challenging coastal settings. Through the vision of Omar Gandhi Architect and the collaboration of all involved, Rockbound House has become an iconic retreat that redefines coastal living.




All photographs are work of Ema Peter Photography
Popular Articles
Popular articles from the community
Inverted Architecture Installation by Studio Link-Arc: Exploring the Intersection of Architecture and Living Organisms
Inverted Architecture Installation by Studio Link-Arc blends mycelium, sustainability, inverted design, ecological cycles, and urban adaptive architecture in Shenzhen.
Treehouse Apartment: A Warm Timber Interior Blending Craft, Play, and Contemporary Living
Warm timber apartment with integrated treehouse, combining natural materials, craftsmanship, and playful design to create a flexible, family-oriented living environment.
The Ken Roberts Memorial Delineation Competition (Krob)
As the most senior architectural drawing competition currently in operation anywhere in the world, it draws hundreds of entries each year, awarding the very best submissions in a series of medium-based categories.
A Contemporary Take on Iranian Residential Architecture
A modern interior design in Mashhad that reinterprets brick, light, and spatial flow to create a warm, contemporary residential architecture.
Similar Reads
You might also enjoy these articles
Top 15 Architecture Competitions to Enter in 2026
From student-friendly idea competitions to prestigious international awards, here are the best architecture competitions open for entries in 2026. Updated regularly.
DIY & Engineering in Computational Design : Enter the BeeGraphy Design Awards
Showcase Your Creativity with Computational Design and Open Source Projects

Innovative Design Solutions: Award-Winning Projects from Recent Architecture Competitions
Exploring award-winning architectural projects shaping the future of design, sustainability, and community.
Explore Architecture Competitions
Discover active competitions in this discipline
The International Standard for Design Portfolios
The Global Benchmark for Architecture Dissertation Awards
The Global Benchmark for Graduation Excellence
Challenge to reimagine the Iron Throne
Comments (0)
Please login or sign up to add comments
No comments yet. Be the first to comment!